Verkocht Wageningen

Vossenlaan 1

€ 850.000,- k.k.

Omschrijving

Vossenlaan 1, 6705 CD Wageningen; Aan de rand in de mooie bosrijke villawijk Wageningen Hoog ligt deze vrijstaande villa op een ruim perceel van 1.770 m². Wageningen Hoog staat bekend om de mooie lommerrijke lanen aan de rand van de bossen met grote villa’s op ruime percelen. Het centrum van...

lees verder

Kenmerken

  • Status Verkocht
  • Vraagprijs € 850.000,- k.k.
  • Bouwjaar 1953
  • Woonoppervlakte 94m²
  • Aantal kamers 6
Meer kenmerken

Omschrijving

Vossenlaan 1, 6705 CD Wageningen;

Aan de rand in de mooie bosrijke villawijk Wageningen Hoog ligt deze vrijstaande villa op een ruim perceel van 1.770 m².

Wageningen Hoog staat bekend om de mooie lommerrijke lanen aan de rand van de bossen met grote villa’s op ruime percelen. Het centrum van Bennekom ligt op circa 2 km afstand en het centrum van Wageningen op ca. 3 km.
De vele faciliteiten van Wageningen zijn per fiets goed bereikbaar.

De woning heeft op de begane grond o.a. een woonkamer, twee slaapkamers en zijn er op de verdieping nog eens 3 slaapkamers aanwezig.

Netto woonoppervlakte: ca. 94 m²
Bergvliering: ca. 21 m²
Inhoud: ca. 428 m³
Bouwjaar: 1953
Perceeloppervlakte: 1.770 m².

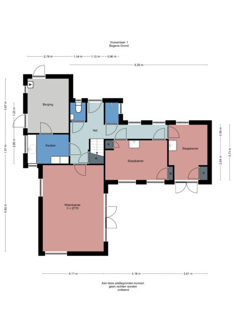
Indeling:
Entree, hal met de authentieke jaren ’50 vloertegels die ook aanwezig zijn in de keuken, toilet en doucheruimte.
Woonkamer met openslaande tuindeuren en de authentieke doorgeefkast naar de keuken.
Dichte keuken met de oorspronkelijke keukeninrichting. Aansluitend de ruime berging met de C.V.-gas combiketel en de groepenkast. Er zijn twee deuren aanwezig die toegang bieden tot de tuin.

Vanuit de hal is verder bereikbaar: de kelder, de toiletruimte, doucheruimte, en twee slaapkamers die beide zijn voorzien van een wastafel en vaste kasten.

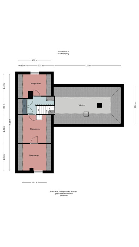
Verdieping:
Overloop met vaste kasten, totaal zijn er drie slaapkamers aanwezig, deur met toegang tot de bergvliering.

De royaal rondom gelegen tuin biedt privacy en er is voldoende ruimte voor het parkeren van meerdere auto’s.

Verwarming via een C.V.-gas combiketel, Nefit uit 2007

In de koopovereenkomst zullen de volgende clausules worden opgenomen:
• Artikel Niet zelf-bewoningsclausule / Feitelijk gebruik
Koper is ermee bekend dat verkoper het verkochte nooit zelf feitelijk heeft gebruikt en dat verkoper derhalve koper niet kan informeren over eigenschappen respectievelijk gebreken aan het verkochte waarvan verkoper op de hoogte zou kunnen zijn geweest als hij het verkochte zelf feitelijk had gebruikt. In verband hiermee zijn partijen, in afwijking van artikel 6.3. van deze koopakte en artikel 7:17 lid 1 en 2 BW, overeengekomen dat dergelijke eigenschappen respectievelijk gebreken voor rekening en risico van koper komen en dat hier bij de vaststelling van de koopsom rekening mee is gehouden. Koper vrijwaart verkoper voor alle eventuele aanspraken van derden.

• Artikel Ouderdomsclausule
Het is koper bekend dat de onroerende zaak oorspronkelijk gebouwd is omstreeks 1953, hetgeen betekent dat de eisen die aan de bouwkwaliteit gesteld mogen worden aanzienlijk lager liggen dan bij nieuwe woningen. In afwijking van artikel 6.3. van deze koopakte en artikel 7:17 lid 1 en 2 BW komt het geheel of ten dele ontbreken van één of meer eigenschappen van de onroerende zaak voor normaal en bijzonder gebruik en het eventueel anderszins niet-beantwoorden van de zaak aan de overeenkomst voor rekening en risico van koper.

• Artikel Asbest onbekend
6.4.3. Aan verkoper is niet bekend of dat in de onroerende zaak asbest is verwerkt.
6.4.3.1. In de onroerende zaak kunnen asbesthoudende stoffen / materialen aanwezig zijn. Indien deze worden verwijderd dienen door koper maatregelen en voorzieningen te worden getroffen die de wetgeving voorschrijft. Koper verklaart met deze wetgeving bekend te zijn en aanvaardt alle aansprakelijkheid en gevolgen die uit de aanwezigheid van asbest en/of de verwijdering van asbest uit de onroerende zaak kan voortvloeien. In afwijking van artikel 6.3. van deze koopakte en artikel 7:17 lid 1 en 2 BW komt het geheel of ten dele ontbreken van één of meer eigenschappen van de onroerende zaak voor normaal en bijzonder gebruik en het eventueel anderszins niet-beantwoorden van de zaak aan de overeenkomst als gevolg van de aanwezigheid van enig asbest in welke samenstelling en/of op welke plaats dan ook voor rekening en risico van koper.
Bij het vaststellen van de koopsom is hier rekening mee gehouden.

• Artikel Olietank
Bij de gemeente Wageningen zijn er geen gegevens bekend dat er in het perceel Vossenlaan 1 een ondergrondse olietank aanwezig is of is geweest.

• Artikel Meetinstructies
De oppervlakte van de woning is opgemeten aan de hand van de (BBMI) Meetinstructie. Deze meetinstructie is een afgeleide van de NEN2580. De meetinstructie is bedoeld om een meer eenduidige manier van meten toe te passen voor het geven van een indicatie van de gebruikersoppervlakte. De meetinstructie sluit verschillen in meetuitkomsten niet volledig uit, door bijvoorbeeld interpretatieverschillen, afrondingen of beperkingen bij het uitvoeren van de meting. De oppervlakte is een indicatie en de juistheid ervan wordt niet gegarandeerd. Koper is in de gelegenheid gesteld de woning en het perceel na te meten.

• Artikel Lijst van zaken
Er is geen lijst van zaken aanwezig.
De woning is zo goed als leeg.

• Disclaimer
Deze informatie is door ons met de nodige zorgvuldigheid samengesteld. Onzerzijds wordt echter geen enkele aansprakelijkheid aanvaard voor enige onvolledigheid, onjuistheid of anderszins, dan wel de gevolgen daarvan. Alle opgegeven maten en oppervlakten zijn indicatief.

• Koperonderzoeksplicht
Barten Tiemessen NVM Makelaars B.V. heeft de opdracht tot verkoop van het onderhavige object. Hoewel gestreefd is naar een zo nauwkeurig mogelijke inventarisatie van de beschikbare gegevens, moet er van uitgegaan worden dat het bovenstaande slechts indicatief is. De gegevens (bedragen, jaartallen, omschrijvingen etc) zijn soms verkregen door mondelinge informatie, soms zijn ze vanuit het geheugen opgediept. De koper heeft zijn eigen onderzoeksplicht naar alle zaken die voor hem van belang zijn en kan zich nimmer beroepen op onbekendheid met feiten die hij zelf had kunnen waarnemen of die kenbaar waren uit de openbare registers. Desgewenst kan koper zich laten begeleiden door een adviseur of een bouwkundige bij de aankoop.

Kenmerken

  • Status Verkocht
  • Vraagprijs € 850.000,- k.k.
  • Aanvaarding In overleg

Bouwvorm

  • Bouwvorm Bestaande bouw
  • Bouwjaar 1953
  • Ligging Aan bosrand, aan rustige weg, in bosrijke omgeving

Indeling

  • Woonoppervlakte 94m2
  • Inhoud 428m3
  • Aantal kamers 6
  • Aantal woonlagen 3
  • Perceeloppervlakte 1770m2

Energie

  • Energieklasse F
  • Energie einddatum 04-25-2027
  • Isolatie Geen isolatie
  • Warmwater Cv ketel
  • Verwarming Cv ketel
  • Bouwjaar C.V.-Ketel 2007
  • Combiketel Ja
  • Brandstof Gas
  • Eigendom Eigendom

Buitenruimte

  • Tuin Tuin rondom
  • Hoofdtuin Tuin rondom

Bergruimte

  • Schuur / Berging

Parkeergelegenheid

  • Garage Geen garage

Brochure

close

Reageren op deze woning

Afspraak maken

    Vossenlaan 1, Wageningen

    Geïnteresseerd geraakt?

    Wacht niet langer en plan direct een bezichtiging met ons in. U kunt ons tijdens kantooruren bereiken op 0317 - 422600 of stuur een e-mail naar info@barten- tiemessen.nl

    reageer op deze woning