Wageningen

Voorburglaan 44

€ 589.000,- k.k.

Omschrijving

Voorburglaan 44, 6709 TS Wageningen; Royale en energiezuinige middenwoning gelegen in de geliefde wijk Nieuw Kortenoord. De woning is aan de achterzijde uitgebouwd en beschikt over een moderne, complete keuken en badkamer. De zonnige tuin is gelegen op het zuidwesten en voorzien van een vrijstaande houten berging en achterom. In...

lees verder

Kenmerken

  • Status Beschikbaar
  • Vraagprijs € 589.000,- k.k.
  • Bouwjaar 2018
  • Woonoppervlakte 139m²
  • Aantal kamers 6
Meer kenmerken

Omschrijving

Voorburglaan 44, 6709 TS Wageningen;

Royale en energiezuinige middenwoning gelegen in de geliefde wijk Nieuw Kortenoord. De woning is aan de achterzijde uitgebouwd en beschikt over een moderne, complete keuken en badkamer. De zonnige tuin is gelegen op het zuidwesten en voorzien van een vrijstaande houten berging en achterom.

In de nabije omgeving vindt u kinderspeelplaatsen, scholen en sportaccommodaties. De woonwijk Nieuw Kortenoord is groen en ruim opgezet, zeer kind- en fietsvriendelijk en je bent zo in de binnenstad van Wageningen. Vanuit deze woning stap je zo het prachtige stiltegebied in met zijn schat aan flora en fauna.

Duurzaam wonen:
Alle woningen in Nieuw Kortenoord zijn voorzien van een energiezuinig verwarmingssysteem door middel van warmte en koudeopslag in de bodem. Dat betekent standaard overal vloerverwarming en lage stookkosten. Het moderne systeem voorziet in zowel warmte als koeling. Je geniet het hele jaar door van maximaal wooncomfort en draagt een steentje bij aan een beter milieu zonder dat je daar verder iets aan hoeft te doen.

Bouwjaar: 2019, woonoppervlak: 139 m², inhoud: 504 m³, perceel: 148 m²

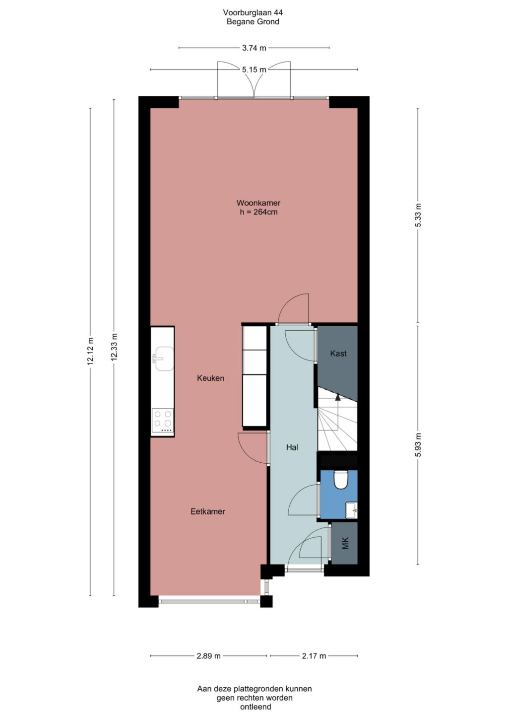
Indeling:
Begane grond: entree, hal met meterkast, trapkast met de opstelling van de warmtepomp en extra bergruimte, toilet met fonteintje. De uitgebouwde woonkamer is gesitueerd aan de achterzijde en beschikt over mooie grote raampartijen en openslaande terrasdeuren naar de achtertuin. Aan de voorzijde van de woning bevindt zich de eetkamer. De luxe en modern uitgevoerde keuken is centraal in de woning gesitueerd en voorzien van diverse inbouwapparatuur, te weten: een koel-/vriescombinatie, oven, inductiekookplaat, afzuigkap, Quooker en een vaatwasser.

Eerste verdieping: overloop, ruime slaapkamer aan de voorzijde van de woning en beschikt over toegang tot het balkon, tweede ruime tweepersoonsslaapkamer, derde slaapkamer. De moderne badkamer is voorzien van een inloopdouche, dubbele wastafel, designradiator en een tweede toilet.

Tweede Verdieping: overloop, vierde en vijfde slaapkamers met een een dakraam en een waskamer met aansluiting voor een wasmachine en droger.

De achtertuin, gelegen op het zuidwesten en voorzien van een vrijstaande houten berging en achterom, is verzorgd aangelegd met zowel een terras als een gazon.

Bijzonderheden:
– Zeer royale uitgebouwde middenwoning;
– Maar liefst 6 slaapkamers;
– Extra veel bergruimte;
– Gelegen in het geliefde “Nieuw Kortenoord”;
– Ruime woonkamer met openslaande deuren naar de achtertuin;
– De gehele woning beschikt over vloerverwarming. Dit energiezuinige systeem kan ook koelen en zorgt voor een aangenaam klimaat in zowel de winter als de zomer;
– Onderhoudsvrij aangelegde tuin op het zuidwesten;
– Praktische bergvliering;
– Energielabel A, geldig tot 24 mei 2028;
– Aanvaarding in overleg.

DISCLAIMER:
* Deze informatie is door ons met de nodige zorgvuldigheid samengesteld. Onzerzijds wordt echter geen enkele aansprakelijkheid aanvaard voor enige onvolledigheid, onjuistheid of anderszins, dan wel de gevolgen daarvan. Alle opgegeven maten en oppervlakten zijn indicatief.

* Barten Tiemessen NVM Makelaars B.V. heeft de opdracht tot verkoop van het onderhavige object. Hoewel gestreefd is naar een zo nauwkeurig mogelijke inventarisatie van de beschikbare gegevens, moet er van uitgegaan worden dat het bovenstaande slechts indicatief is. De gegevens (bedragen, jaartallen, omschrijvingen etc) zijn soms verkregen door mondelinge informatie, soms zijn ze vanuit het geheugen opgediept. De koper heeft zijn eigen onderzoeksplicht naar alle zaken die voor hem van belang zijn en kan zich nimmer beroepen op onbekendheid met feiten die hij zelf had kunnen waarnemen of die kenbaar waren uit de openbare registers. Desgewenst kan koper zich laten begeleiden door een adviseur of een bouwkundige bij de aankoop.

Kenmerken

  • Status Beschikbaar
  • Vraagprijs € 589.000,- k.k.
  • Aanvaarding In overleg

Bouwvorm

  • Bouwvorm Bestaande bouw
  • Bouwjaar 2018
  • Ligging

Indeling

  • Woonoppervlakte 139m2
  • Inhoud 504m3
  • Aantal kamers 6
  • Aantal woonlagen 4
  • Perceeloppervlakte 148m2

Energie

  • Energieklasse A
  • Energie einddatum 05-24-2028
  • Isolatie Volledig geisoleerd
  • Warmwater Centrale voorziening, aardwarmte
  • Verwarming Vloerverwarming geheel, warmtepomp, aardwarmte
  • Combiketel Nee

Buitenruimte

  • Tuin Achtertuin, voortuin

Parkeergelegenheid

  • Garage Geen garage

Brochure

close

Reageren op deze woning

Afspraak maken

    Voorburglaan 44, Wageningen

    Geïnteresseerd geraakt?

    Wacht niet langer en plan direct een bezichtiging met ons in. U kunt ons tijdens kantooruren bereiken op 0317 - 422600 of stuur een e-mail naar info@barten- tiemessen.nl

    reageer op deze woning