Verkocht onder voorbehoud Renkum

Veldheimweg 38

€ 595.000,- k.k.

Omschrijving

Veldheimweg 38, 6871 CD Renkum; Aan een rustige straat, aan de rand van het dorp gelegen, royale twee-onder-een-kapwoning met een aangebouwde stenen garage en een parkeerplaats op eigen terrein. Uniek is de kantoorruimte aan huis, perfect voor thuiswerken, een eigen praktijk of studio. Hierdoor zijn werk en privé uitstekend te...

lees verder

Kenmerken

  • Status Onder voorbehoud verkocht
  • Vraagprijs € 595.000,- k.k.
  • Bouwjaar 1958
  • Woonoppervlakte 138m²
  • Aantal kamers 5
Meer kenmerken

Omschrijving

Veldheimweg 38, 6871 CD Renkum;

Aan een rustige straat, aan de rand van het dorp gelegen, royale twee-onder-een-kapwoning met een aangebouwde stenen garage en een parkeerplaats op eigen terrein. Uniek is de kantoorruimte aan huis, perfect voor thuiswerken, een eigen praktijk of studio. Hierdoor zijn werk en privé uitstekend te combineren, met behoud van rust en privacy.

Deze royale helft van een dubbel woonhuis onderscheidt zich direct door de uitzonderlijke lichtinval en de prachtige grote raampartijen die de woning een open en ruimtelijk gevoel geven. De combinatie van comfort, functionaliteit en stijl maakt dit een heerlijk huis om in te wonen én te werken.

De woning beschikt over drie royale slaapkamers, ideaal voor een gezin of voor wie graag extra ruimte heeft voor logees of hobby’s. Dankzij de aanwezige airconditioning is het hier het hele jaar door aangenaam wonen.

Buiten is het optimaal genieten onder de overkapping: een fijne plek om in alle seizoenen te ontspannen, te dineren of gezellig samen te zijn met vrienden en familie.

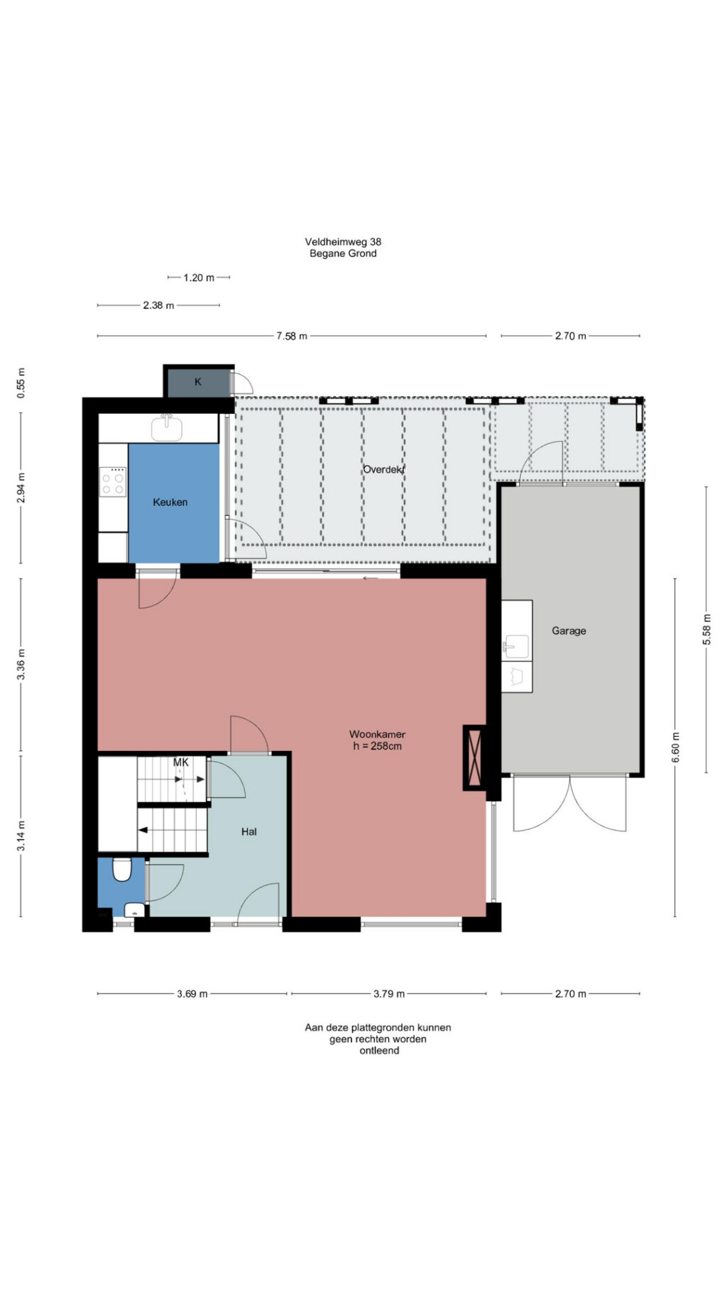
Netto woonoppervlakte: ca. 138 m², kantoor: ca. 9 m², perceeloppervlakte: 301 m², bouwjaar: 1958.

Indeling:
Begane grond: entree, hal, toilet met fontein, een mooie ruime en lichte woonkamer met een haard. Via de schuifpui betreedt u de achtertuin met de overkapping. Dichte keuken met een L-vormige keukenopstelling met inbouwapparatuur, te weten: inductie kookplaat, RVS afzuigschouw, combi-oven, koelkast, vaatwasser en een Quooker. Via de keuken bereikt u ook de achtertuin.

1e verdieping: overloop, met afgesloten ruimte voor wasmachine, twee royale slaapkamers welke beide aan de achterzijde van het woonhuis zijn gelegen met toegang tot het balkon. De slaapkamers zijn voorzien van mooie kledingkasten. Luxe badkamer met een ruime inloopdouche, wastafelmeubel en een tweede toilet.

2e verdieping: ruime voorzolder/overloop, derde slaapkamer. De beide ruimtes hebben een dakkapel die zorgt voor een grote hoeveelheid aan extra ruimte en daglicht. Verder hebben de beide ruimtes extra bergruimte die netjes is weggewerkt achter de knieschotten.

Kelder: praktische kelder die uitermate geschikt is als provisieruimte. Dankzij de koele en stabiele temperatuur is de kelder ideaal voor het opslaan van levensmiddelen, wijn of andere voorraden.

Kantoor:
In de achtertuin bevindt zich de stenen multifunctionele ruimte. Ideaal in gebruik te nemen als kantoor-, praktijk-, of hobbyruimte. Airconditioning is aanwezig. Dankzij de openslaande deuren is er veel natuurlijk licht en directe verbinding met buiten, wat bijdraagt aan een prettige en inspirerende werkomgeving.

Diverse:
– Energielabel A;
– Diverse inbouwspots die de woning een luxe uitstraling geven;
– Stille airconditioning aanwezig in de woonkamer, badkamer en in de kantoorruimte;
– Neutrale kleuren en mooie lichte vloeren;
– Een grote dakkapel aanwezig op de 2e verdieping;
– Isolatie: volledig dubbele beglazing, vloerisolatie en muurisolatie;
– Verwarming via C.V. -combiketel (bouwjaar 2014) en airconditioning (bouwjaar 2023);
– 14 zonnepanelen zijn aanwezig;
– Een waterontharder is aanwezig;
– Rolluiken: zonzijde woonkamer en eerste verdieping rondom.

Kortom, een lichte, ruime en veelzijdige woning die uitblinkt in wooncomfort en mogelijkheden.

* Disclaimer
Deze informatie is door ons met de nodige zorgvuldigheid samengesteld. Onzerzijds wordt echter geen enkele aansprakelijkheid aanvaard voor enige onvolledigheid, onjuistheid of anderszins, dan wel de gevolgen daarvan. Alle opgegeven maten en oppervlakten zijn indicatief.

* Koperonderzoeksplicht
Barten Tiemessen NVM Makelaars B.V. heeft de opdracht tot verkoop van het onderhavige object. Hoewel gestreefd is naar een zo nauwkeurig mogelijke inventarisatie van de beschikbare gegevens, moet er van uitgegaan worden dat het bovenstaande slechts indicatief is. De gegevens (bedragen, jaartallen, omschrijvingen etc.) zijn soms verkregen door mondelinge informatie, soms zijn ze vanuit het geheugen opgediept. De koper heeft zijn eigen onderzoeksplicht naar alle zaken die voor hem van belang zijn en kan zich nimmer beroepen op onbekendheid met feiten die hij zelf had kunnen waarnemen of die kenbaar waren uit de openbare registers. Desgewenst kan koper zich laten begeleiden door een adviseur of een bouwkundige bij de aankoop.

Kenmerken

  • Status Onder voorbehoud verkocht
  • Vraagprijs € 595.000,- k.k.
  • Aanvaarding In overleg

Bouwvorm

  • Bouwvorm Bestaande bouw
  • Bouwjaar 1958
  • Ligging Aan rustige weg, in woonwijk, in bosrijke omgeving

Indeling

  • Woonoppervlakte 138m2
  • Inhoud 553m3
  • Aantal kamers 5
  • Aantal woonlagen 4
  • Perceeloppervlakte 301m2

Energie

  • Energieklasse A
  • Energie einddatum 01-07-2036
  • Isolatie Muurisolatie, vloerisolatie, dubbel glas
  • Warmwater Cv ketel
  • Verwarming Cv ketel
  • Bouwjaar C.V.-Ketel 2014
  • Combiketel Ja
  • Brandstof Gas
  • Eigendom Eigendom

Buitenruimte

  • Tuin Achtertuin, voortuin
  • Hoofdtuin Achtertuin
  • Oppervlakte hoofdtuin 143m2 (13.0m bij 11.0m)
  • Ligging hoofdtuin Noord
  • Kwaliteit tuin Verzorgd

Parkeergelegenheid

  • Garage Aangebouwd steen
  • Parkeerfaciliteiten Water

Brochure

close

Reageren op deze woning

Afspraak maken

    Veldheimweg 38, Renkum

    Geïnteresseerd geraakt?

    Wacht niet langer en plan direct een bezichtiging met ons in. U kunt ons tijdens kantooruren bereiken op 0317 - 422600 of stuur een e-mail naar info@barten- tiemessen.nl

    reageer op deze woning