Verkocht onder voorbehoud Wageningen

Rooseveltweg 453

€ 419.000,- k.k.

Omschrijving

Rooseveltweg 453, 6707 GR Wageningen; Op de zevende verdieping ligt dit mooie gemoderniseerde ROYAAL & LICHT DRIEKAMERAPPARTEMENT van 103 m² met een ruim balkon en een eigen berging in de onderbouw. Het appartement is gelegen in een verzorgd complex en is op loopafstand van het stadscentrum, supermarkten, centraal busstation en...

lees verder

Kenmerken

  • Status Onder voorbehoud verkocht
  • Vraagprijs € 419.000,- k.k.
  • Bouwjaar 1975
  • Woonoppervlakte 103m²
  • Aantal kamers 3
Meer kenmerken

Omschrijving

Rooseveltweg 453, 6707 GR Wageningen;

Op de zevende verdieping ligt dit mooie gemoderniseerde ROYAAL & LICHT DRIEKAMERAPPARTEMENT van 103 m² met een ruim balkon en een eigen berging in de onderbouw.

Het appartement is gelegen in een verzorgd complex en is op loopafstand van het stadscentrum, supermarkten, centraal busstation en gezellige uitgaansgelegenheden.
Het complex is voorzien van een afgesloten entree met een lift en intercominstallatie.
Een eigen berging is aanwezig in de onderbouw en er is parkeergelegenheid op eigen terrein rondom het complex.

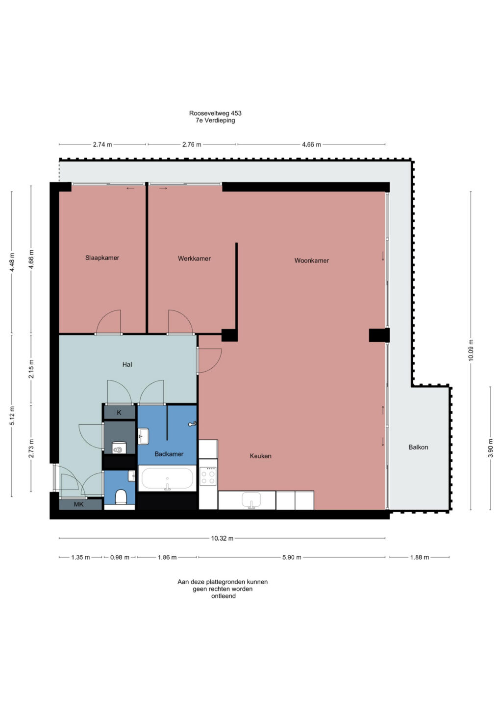
Bouwjaar: 1975, woonoppervlakte: circa 103 m², inhoud: circa 314 m²

Indeling;
Entree, een ruime hal, een lichte royale woonkamer van maar liefst 52 m² met mooie grote raampartijen en schuifpuien die toegang bieden tot het balkon.
De open keuken heeft een luxe keukenopstelling met inbouwapparatuur, te weten: 4-pits inductiekookplaat, combi-oven met magnetronfunctie, koelkast, vriezer en een RVS afzuigschouw.
Vanuit de woonkamer is er toegang tot de werkkamer van ca 13 m² en die voorzien is van een schuifpui. De werkkamer kan eventueel worden teruggebracht als een separate slaapkamer.
Via de hal is verder bereikbaar; een ruime twee-persoonsslaapkamer (ca. 13 m²) eveneens met een schuifpui, badkamer met een ligbad, inloopdouche, handdoekradiator en een wastafel, een bergkast met de nieuwe C.V.-combiketel, toiletruimte met een zwevend closet en een wastafel.

Bijzonderheden;
– Alle kamers zijn voorzien van grote raampartijen met schuifpui die allen toegang geven tot het riante balkon;
– De woonkamer met keuken en de twee kamers zijn voorzien van een mooie lichte parketvloer;
– De hal is voorzien van inbouwspots die een luxe uitstraling geven;
– “Het appartement heeft een gunstige ligging ten opzichte van de zon;
– Nieuwe zonneschermen met elektrische bediening zijn in geplaatst in 2024;
– Praktische inpandige bergkast met de C.V.-ketelopstelling en aansluiting voor wasmachine en droger;
– Bijdrage VVE Servicekosten bedragen thans € 250,95 per maand;
– Het appartement wordt verwarmd via een nieuwe C.V.-gas combi-ketel, bouwjaar 2025;
– HR++ beglazing geplaatst in 2024;
– Energielabel B, geldig tot 08-10-2035;
– Berging in de onderbouw;
– Oplevering: in overleg.

Disclaimer:
* Deze informatie is door ons met de nodige zorgvuldigheid samengesteld. Onzerzijds wordt echter geen enkele aansprakelijkheid aanvaard voor enige onvolledigheid, onjuistheid of anderszins, dan wel de gevolgen daarvan. Alle opgegeven maten en oppervlakten zijn indicatief.

Kopersonderzoekplicht:
* Barten Tiemessen NVM Makelaars B.V. heeft de opdracht tot verkoop van het onderhavige object. Hoewel gestreefd is naar een zo nauwkeurig mogelijke inventarisatie van de beschikbare gegevens, moet er van uitgegaan worden dat het bovenstaande slechts indicatief is. De gegevens (bedragen, jaartallen, omschrijvingen etc) zijn soms verkregen door mondelinge informatie, soms zijn ze vanuit het geheugen opgediept. De koper heeft zijn eigen onderzoeksplicht naar alle zaken die voor hem van belang zijn en kan zich nimmer beroepen op onbekendheid met feiten die hij zelf had kunnen waarnemen of die kenbaar waren uit de openbare registers. Desgewenst kan koper zich laten begeleiden door een adviseur of een bouwkundige bij de aankoop.

Kenmerken

  • Status Onder voorbehoud verkocht
  • Vraagprijs € 419.000,- k.k.
  • Aanvaarding In overleg

Bouwvorm

  • Soort appartement Portiekflat
  • Bouwvorm Bestaande bouw
  • Bouwjaar 1975
  • Ligging In woonwijk

Indeling

  • Woonoppervlakte 103m2
  • Inhoud 314m3
  • Aantal kamers 3
  • Aantal woonlagen 1

Energie

  • Energieklasse B
  • Energie einddatum 10-08-2035
  • Isolatie Dubbel glas
  • Warmwater Cv ketel
  • Verwarming Cv ketel
  • Bouwjaar C.V.-Ketel 2025
  • Combiketel Ja
  • Brandstof Gas
  • Eigendom Eigendom

Buitenruimte

  • Tuin Geen tuin

Bergruimte

  • Schuur / Berging

Parkeergelegenheid

  • Garage Geen garage

Brochure

close

Reageren op deze woning

Afspraak maken

    Rooseveltweg 453, Wageningen

    Geïnteresseerd geraakt?

    Wacht niet langer en plan direct een bezichtiging met ons in. U kunt ons tijdens kantooruren bereiken op 0317 - 422600 of stuur een e-mail naar info@barten- tiemessen.nl

    reageer op deze woning