Verkocht onder voorbehoud Wageningen

Roghorst 136

€ 425.000,- k.k.

Omschrijving

Roghorst 136, 6708 KR Wageningen; Deze leuke ruime eengezinswoning (tussenwoning) heeft een lichte woonkamer, vier slaapkamers en een diepe achtertuin. Roghorst is een geliefde woonwijk waar het leven rustig, groen en aangenaam is met een gemoedelijke sfeer. Deze leuke wijk combineert het beste: door de aanwezigheid van een kindvriendelijke omgeving...

lees verder

Kenmerken

  • Status Onder voorbehoud verkocht
  • Vraagprijs € 425.000,- k.k.
  • Bouwjaar 1976
  • Woonoppervlakte 116m²
  • Aantal kamers 5
Meer kenmerken

Omschrijving

Roghorst 136, 6708 KR Wageningen;

Deze leuke ruime eengezinswoning (tussenwoning) heeft een lichte woonkamer, vier slaapkamers en een diepe achtertuin.

Roghorst is een geliefde woonwijk waar het leven rustig, groen en aangenaam is met een gemoedelijke sfeer.
Deze leuke wijk combineert het beste: door de aanwezigheid van een kindvriendelijke omgeving én de nabijheid van vele belangrijke voorzieningen.

De aanwezigheid van de basisschool Piekschool in de wijk maakt het voor jonge gezinnen een ideale plek om hun kinderen op te laten groeien. Bovendien liggen het voortgezet onderwijs Pantarijn, Campus Universiteit, winkelcentrum Tarthorst en sportaccommodaties ook binnen handbereik.

Bovendien zijn de Wageningse binnenstad en de uiterwaarden van de Rijn op korte fietsafstand.
Kortom, een fijne eengezinswoning op een plek waar je je snel thuis voelt.

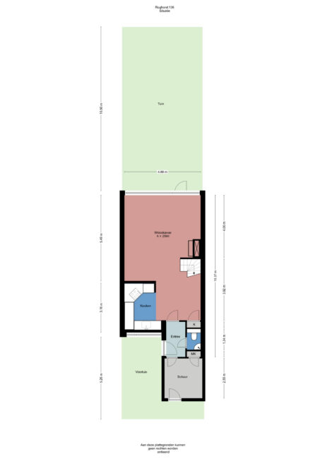
Netto woonoppervlakte: ca. 116 m², berging: ca. 6 m², perceeloppervlakte: 128 m², bouwjaar: 1976.

Indeling:
Begane grond: entree, hal met toegang tot de aangebouwde stenen berging, toilet met fontein, een heerlijke lichte woonkamer met een open haard en een deur naar de achtertuin. De open keuken bevindt zich aan de voorzijde van de woonkamer en is voorzien van een U-vormige keukenopstelling met inbouwapparatuur, te weten: elektrische kookplaat, RVS afzuigschouw, oven, koelkast en een vaatwasser.

1e verdieping: overloop, badkamer met een ligbad met douche, wastafel en een tweede toilet, riante slaapkamer (ca. 14 m²) met een bergkamer waar de wasmachine aansluiting aanwezig is. De slaapkamer heeft toegang tot het balkon aan de voorzijde van het woonhuis, slaapkamer 2 (ca. 9 m²) en slaapkamer 3 (ca. 9 m²).

2e verdieping: overloop, slaapkamer 4 (ca. 12 m²) met een dakraam en extra bergruimte achter knieschotten, praktische bergruimte met de C.V.-gas combiketel.

Bijzonderheden:
– Gelegen in de geliefde woonwijk Roghorst;
– Ruime eengezinswoning;
– Vier slaapkamers;
– Woonkamer met veel lichtinval;
– Diepe achtertuin met achterom;
– De aangebouwde stenen berging is inpandig te bereiken;
– Energielabel C.

Disclaimer
Deze informatie is door ons met de nodige zorgvuldigheid samengesteld. Onzerzijds wordt echter geen enkele aansprakelijkheid aanvaard voor enige onvolledigheid, onjuistheid of anderszins, dan wel de gevolgen daarvan. Alle opgegeven maten en oppervlakten zijn indicatief.

Koperonderzoeksplicht
Barten Tiemessen NVM Makelaars B.V. heeft de opdracht tot verkoop van het onderhavige object. Hoewel gestreefd is naar een zo nauwkeurig mogelijke inventarisatie van de beschikbare gegevens, moet er van uitgegaan worden dat het bovenstaande slechts indicatief is. De gegevens (bedragen, jaartallen, omschrijvingen etc) zijn soms verkregen door mondelinge informatie, soms zijn ze vanuit het geheugen opgediept. De koper heeft zijn eigen onderzoeksplicht naar alle zaken die voor hem van belang zijn en kan zich nimmer beroepen op onbekendheid met feiten die hij zelf had kunnen waarnemen of die kenbaar waren uit de openbare registers. Desgewenst kan koper zich laten begeleiden door een adviseur of een bouwkundige bij de aankoop.

Kenmerken

  • Status Onder voorbehoud verkocht
  • Vraagprijs € 425.000,- k.k.
  • Aanvaarding In overleg

Bouwvorm

  • Bouwvorm Bestaande bouw
  • Bouwjaar 1976
  • Ligging Aan rustige weg, in centrum

Indeling

  • Woonoppervlakte 116m2
  • Inhoud 418m3
  • Aantal kamers 5
  • Aantal woonlagen 3
  • Perceeloppervlakte 128m2

Energie

  • Energieklasse C
  • Energie einddatum 08-07-2035
  • Isolatie Dakisolatie, gedeeltelijk dubbel glas
  • Warmwater Cv ketel
  • Verwarming Cv ketel
  • Bouwjaar C.V.-Ketel 2007
  • Combiketel Ja
  • Brandstof Gas
  • Eigendom Eigendom

Buitenruimte

  • Tuin Achtertuin, voortuin
  • Hoofdtuin Achtertuin
  • Oppervlakte hoofdtuin 51m2 (10.5m bij 4.9m)
  • Ligging hoofdtuin Oost
  • Kwaliteit tuin Verzorgd

Bergruimte

  • Schuur / Berging

Parkeergelegenheid

  • Garage Geen garage

Brochure

close

Reageren op deze woning

Afspraak maken

    Roghorst 136, Wageningen

    Geïnteresseerd geraakt?

    Wacht niet langer en plan direct een bezichtiging met ons in. U kunt ons tijdens kantooruren bereiken op 0317 - 422600 of stuur een e-mail naar info@barten- tiemessen.nl

    reageer op deze woning