Verkocht Ede

Pelotonlaan 20

€ 595.000,- k.k.

Omschrijving

Pelotonlaan 20, 6711 WL Ede Duurzaam en high-end wonen aan de Edesche bosrand. Een prachtig afgewerkte en energiezuinige woning (104 m²) met warmtepomp, 12 zonnepanelen en uitstekende isolatie. Aan de rand van het Sysseltse Bos en op steenworp afstand van de Ginkelse Heide ligt deze instapklare, duurzame en high-end afgewerkte...

lees verder

Kenmerken

  • Status Verkocht
  • Vraagprijs € 595.000,- k.k.
  • Bouwjaar 2024
  • Woonoppervlakte 104m²
  • Aantal kamers 4
Meer kenmerken

Omschrijving

Pelotonlaan 20, 6711 WL Ede

Duurzaam en high-end wonen aan de Edesche bosrand. Een prachtig afgewerkte en energiezuinige woning (104 m²) met warmtepomp, 12 zonnepanelen en uitstekende isolatie.

Aan de rand van het Sysseltse Bos en op steenworp afstand van de Ginkelse Heide ligt deze instapklare, duurzame en high-end afgewerkte tussenwoning met drie slaap-/werkkamers. De woning heeft een luxe afwerking en een zonnig terras aan de achterzijde gesitueerd op het westen.

Het World Food Center groeit uit tot een levendige, nieuwe wijk in Ede. Een unieke plek waar alles draait om voedsel, waar de natuur van de Veluwe naadloos overgaat in de stad en waar de rijke militaire geschiedenis duidelijk zichtbaar blijft. Eén van de buurten binnen dit gebied is De Gelderse Stadstuin – een groene, ontspannen woonomgeving met het bos letterlijk om de hoek.

Hier woon je in alle rust, terwijl je toch binnen enkele minuten wandelen bij het centrum van Ede of het bus- en treinstation Ede-Wageningen staat. Dankzij de gunstige ligging zijn steden als Arnhem, Utrecht en Amsterdam uitstekend bereikbaar, zowel met de trein als met de auto. Met de trein ben je in minder dan een half uur in Utrecht en in nog geen uur sta je op Amsterdam Centraal. Met de auto zorgt de Generaal Hackettlaan voor een goede verbinding met de N224, richting de A12 en A30.

In de wijk zijn voldoende speelgelegenheden voor kinderen gecreëerd. Tevens zijn er diverse (basis)scholen en opvang op fietsafstand bereikbaar.
Wonen in deze wijk is populair, vanwege de ligging en het duurzame karakter. Hier ervaar je alle voordelen van een duurzame (nieuwbouw)woning.

Bouwjaar: 2024, Woonoppervlakte: circa 104 m², Inhoud: circa 356 m³, Perceeloppervlakte: 72 m²

Indeling
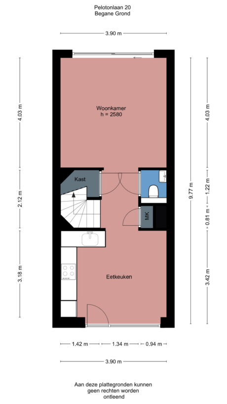
Begane grond
Bij binnenkomst stap je direct in de stijlvolle open keuken. De gehele benedenverdieping heeft een verlaagd plafond met ingebouwde, dimbare spots, wat zorgt voor een warme en moderne sfeer. Er ligt – net als in de rest van de woning – een visgraat pvc-vloer met vloerverwarming en -koeling. De keuken is hoogwaardig afgewerkt in een hoekopstelling met composiet blad en luxe inbouwapparatuur: inductiekookplaat, afzuigkap, combi-oven, vaatwasser, koel-/vriescombinatie en een Quooker.

Aan de achterzijde bevindt zich de sfeervolle woonkamer met uitzicht op de gezamenlijke binnentuin. Een schuifpui geeft toegang tot het zonnige privéterras op het westen. Door de westelijke ligging valt hier de hele middag tot in de avond het zonlicht naar binnen. In het hart van de woning vind je de trapopgang, een handige bergkast, de meterkast en een stijlvol afgewerkte toiletruimte met wandcloset en fonteintje.

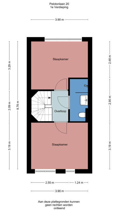
Eerste verdieping
Op de eerste verdieping zijn twee comfortabele slaapkamers en een moderne badkamer te vinden, bereikbaar via de overloop. Ook hier ligt een visgraat pvc-vloer met vloerverwarming en -koeling. De stijlvol afgewerkte badkamer is voorzien van een inloopdouche, een wandcloset en een wastafelmeubel.

Tweede verdieping
Op de tweede verdieping bevindt zich de derde slaap/- werkkamer. Echter kan je op deze verdieping gemakkelijk een vierde slaap/- werkkamer creëren. De afwerking van vloer, wanden en plafond is gelijk aan die van de andere verdiepingen. Hier bevindt zich tevens een royale inpandige berging met de warmtepomp, het boilervat, ventilatiesysteem met warmteterugwinning, de omvormer voor de 12 zonnepanelen en aansluitingen voor wasapparatuur.

Exterieur
Het zonnige terras aan de achterzijde is uitgerust met een buitenkeuken – de perfecte plek om te barbecueën tijdens lange zomeravonden. Tevens heb je toegang tot de collectieve tuin, met onder andere een moestuin die fungeert als een multifunctionele centrale plek.

Bijzonderheden
– High-end afwerking en volledig instapklaar
– Privé parkeerplek en berging in naastgelegen gebouw (servicekosten €35,- p/m);
– Uitstekend geïsoleerde woning, energielabel A+++;
– Zeer lage energiekosten door de 12 zonnepanelen (SolarEdge omvormer);
– Vloerverwarming en -topkoeling op alle verdiepingen;
– Gelegen aan de bosrand van het Sysseltse Bos en vlak bij de Ginkelse Heide;
– Op loopafstand van bus- en treinstation, centrum, JorisBrood en andere voorzieningen;
– Mechanisch CO2-gestuurd ventilatiesysteem met warmteterugwinning;
– Hardhouten kozijnen met HR+++ glas;
– Collectieve tuin, welke fungeert als een multifunctionele centrale plek voor de bewoners.

Aanvaarding in overleg

* Disclaimer
Deze informatie is door ons met de nodige zorgvuldigheid samengesteld. Onzerzijds wordt echter geen enkele aansprakelijkheid aanvaard voor enige onvolledigheid, onjuistheid of anderszins, dan wel de gevolgen daarvan. Alle opgegeven maten en oppervlakten zijn indicatief.

* Koperonderzoeksplicht
Barten Tiemessen NVM Makelaars B.V. heeft de opdracht tot verkoop van het onderhavige object. Hoewel gestreefd is naar een zo nauwkeurig mogelijke inventarisatie van de beschikbare gegevens, moet er van uitgegaan worden dat het bovenstaande slechts indicatief is. De gegevens (bedragen, jaartallen, omschrijvingen etc) zijn soms verkregen door mondelinge informatie, soms zijn ze vanuit het geheugen opgediept. De koper heeft zijn eigen onderzoeksplicht naar alle zaken die voor hem van belang zijn en kan zich nimmer beroepen op onbekendheid met feiten die hij zelf had kunnen waarnemen of die kenbaar waren uit de openbare registers. Desgewenst kan koper zich laten begeleiden door een adviseur of een bouwkundige bij de aankoop.

Kenmerken

  • Status Verkocht
  • Vraagprijs € 595.000,- k.k.
  • Aanvaarding In overleg

Bouwvorm

  • Bouwvorm Bestaande bouw
  • Bouwjaar 2024
  • Ligging In woonwijk

Indeling

  • Woonoppervlakte 104m2
  • Inhoud 356m3
  • Aantal kamers 4
  • Aantal woonlagen 3
  • Perceeloppervlakte 72m2

Energie

  • Energieklasse A ppp
  • Energie einddatum 05-30-2034
  • Isolatie Volledig geisoleerd
  • Warmwater Aardwarmte
  • Verwarming Vloerverwarming geheel, warmtepomp, warmte terugwininstallatie
  • Combiketel Nee

Buitenruimte

  • Tuin Achtertuin

Bergruimte

  • Schuur / Berging

Parkeergelegenheid

  • Garage Geen garage

Brochure

close

Reageren op deze woning

Afspraak maken

    Pelotonlaan 20, Ede

    Geïnteresseerd geraakt?

    Wacht niet langer en plan direct een bezichtiging met ons in. U kunt ons tijdens kantooruren bereiken op 0317 - 422600 of stuur een e-mail naar info@barten- tiemessen.nl

    reageer op deze woning