Bennekom

Park Zuidereng - bouwnr 1 ONG

€ 975.000,- k.k.

Omschrijving

Project Park Zuidereng in Bennekom De laatste woning: * Bezichtigingen zijn mogelijk op afspraak via Barten Tiemessen NVM Makelaars B.V. * * Bouwnummer 01 - het betreft een casco hoekwoning. * Bouw is reeds gestart! Een prachtig moderne boswoning in het nieuwe project 'Park Zuidereng' op een historisch landgoed. Bij...

lees verder

Kenmerken

  • Status Beschikbaar
  • Vraagprijs € 975.000,- k.k.
  • Bouwjaar 2025
  • Woonoppervlakte 175m²
  • Aantal kamers 4
Meer kenmerken

Omschrijving

Project Park Zuidereng in Bennekom

De laatste woning:

* Bezichtigingen zijn mogelijk op afspraak via Barten Tiemessen NVM Makelaars B.V. *
* Bouwnummer 01 – het betreft een casco hoekwoning.
* Bouw is reeds gestart!

Een prachtig moderne boswoning in het nieuwe project ‘Park Zuidereng’ op een historisch landgoed.
Bij deze hoekwoning behoort tevens een eigen berging en 2 eigen parkeerplaatsen (nrs 1+2)

Park Zuidereng wordt bijzonder in al zijn facetten. Hier woont u straks luxueus, comfortabel en duurzaam op een fantastische plek aan de rand van sfeervol Bennekom.

Op dit historische landgoed wordt gerealiseerd:
* 5 nieuwbouwappartementen met een historische uitstraling;
* 5 nieuwbouwappartementen in een modern complex;
* 5 boswoningen waarvan nog 1 hoekwoning te koop wordt aangeboden (de overige 4 boswoningen zijn reeds verkocht)
* een ondergrondse parkeergarage op het landgoed.

Bouwnummer 01 CASCO OPLEVERING:
De hoekwoning wordt ‘casco’ opgeleverd zonder keuken, badkamer en sanitair.

“Een groen, duurzaam en exclusief plan”

Park Zuidereng is een voormalig landgoed op de grens van Bennekom en Wageningen aan de Heelsumseweg. De bestaande villa Zuidereng en de in 2002 aan deze villa gebouwde kantoorvleugel aan de achterzijde is niet meer in gebruik. Het project bestaat in hoofdlijnen uit de herontwikkeling van het landgoed en ‘Villa Zuidereng’, zodat deze bijzondere plek weer in ere wordt hersteld. Een belangrijke kwaliteit van het plan is het respecteren van de bestaande villa en het behouden van zo veel mogelijk bomen en groen op het perceel. Het herstellen van het groene lommerrijke karakter van het landgoed vormt het vertrekpunt van het plan. Hier woont u straks midden in het groen met alle voorzieningen vlakbij.

Duurzaam en energiezuinig wonen in Park Zuidereng:
In Park Zuidereng woont u in een energiezuinige en kwalitatief hoogwaardige woning waarbij veel aandacht is voor duurzaamheid, lage onderhoudskosten en de toepassing van slimme energieoplossingen. Zo zuinig en comfortabel woonde u nog nooit.

Verwarming en elektriciteit:
De woningen worden gasloos opgeleverd. Een warmtepomp verzorgt de vloerverwarming die u in elke kamer afzonderlijk kunt regelen. Ook zorgt de pomp voor koeling in de zomer. Zo kunt u 365 dagen per jaar genieten van een heerlijk comfortabel binnenklimaat. Daarnaast heeft iedere woning zonnepanelen die zorgen voor de elektriciteit in huis. Daarbij zijn de woningen optimaal geïsoleerd en voorzien van HR++ glas.

Onderhoudsarm:
Kiezen voor nieuwbouw heeft tal van voordelen. Naast veel wooncomfort en lage energielasten zorgen de toegepaste hoogwaardige bouwmaterialen ervoor dat uw woning maar weinig onderhoud behoeft.

Lage energierekening:
Een duurzame woning is goed voor het milieu, maar ook voor uw portemonnee.
Dankzij alle energiezuinige toepassingen en installaties kunt u flink besparen op uw energierekening.
En dat is zeker in deze tijd van oplopende energielasten een prettig idee.

De locatie:
De ligging van Park Zuidereng is geweldig. Midden in het groen, maar toch met alle voorzieningen in de buurt. Voor uw dagelijkse boodschappen kunt u terecht in het winkelhart van Bennekom en ook de gezellige binnensteden van Ede en Wageningen zijn vlakbij.
Pak de fiets, de auto of het OV en u kunt alle kanten op. Bent u een echte natuurliefhebber?
Dan daagt de groene woonomgeving van Park Zuidereng uit tot eindeloos wandelen, fietsen en ontdekken.
Geniet van het Hoekelumse Bos, Landgoed de Lieskamp of het Renkums Beekdal. Het leven is goed in Park Zuidereng.

Kenmerken

  • Status Beschikbaar
  • Vraagprijs € 975.000,- k.k.
  • Aanvaarding In overleg

Bouwvorm

  • Bouwvorm Nieuwbouw
  • Bouwjaar 2025
  • Ligging Aan bosrand, beschutte ligging, in bosrijke omgeving

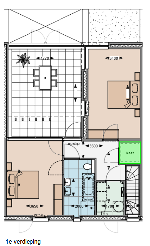
Indeling

  • Woonoppervlakte 175m2
  • Inhoud 568m3
  • Aantal kamers 4
  • Aantal woonlagen 3

Energie

  • Energieklasse A ppp
  • Energie einddatum 03-03-2033
  • Isolatie Volledig geisoleerd
  • Warmwater Aardwarmte
  • Verwarming Vloerverwarming geheel, warmtepomp
  • Combiketel Nee

Buitenruimte

  • Tuin Achtertuin, patio atrium, zonneterras
  • Hoofdtuin Achtertuin
  • Oppervlakte hoofdtuin 36m2 (5.4m bij 6.7m)
  • Ligging hoofdtuin Zuidoost

Parkeergelegenheid

  • Garage Parkeerkelder

Brochure

close

Reageren op deze woning

Afspraak maken

    Park Zuidereng – bouwnr 1 0ong, Bennekom

    Geïnteresseerd geraakt?

    Wacht niet langer en plan direct een bezichtiging met ons in. U kunt ons tijdens kantooruren bereiken op 0317 - 422600 of stuur een e-mail naar info@barten- tiemessen.nl

    reageer op deze woning