Verkocht Renkum

Nieuweweg 14

€ 1.050.000,- k.k.

Omschrijving

Nieuweweg 14, 6871 CB Renkum; Deze bijzondere vrijstaande villa 'Zonnewende' uit 1903 ademt historie, grandeur en rust uit maar biedt tegelijk volop ruimte en flexibiliteit voor modern wonen, werken aan huis of een zelfstandig gastenverblijf. De villa ligt op een prachtige locatie, aan een mooie lommerrijke weg, in het groene...

lees verder

Kenmerken

  • Status Verkocht
  • Vraagprijs € 1.050.000,- k.k.
  • Bouwjaar 1903
  • Woonoppervlakte 254m²
  • Aantal kamers 11
Meer kenmerken

Omschrijving

Nieuweweg 14, 6871 CB Renkum;

Deze bijzondere vrijstaande villa ‘Zonnewende’ uit 1903 ademt historie, grandeur en rust uit maar biedt tegelijk volop ruimte en flexibiliteit voor modern wonen, werken aan huis of een zelfstandig gastenverblijf.

De villa ligt op een prachtige locatie, aan een mooie lommerrijke weg, in het groene hart van Renkum met volop prachtig natuurgebied zoals de bossen en het uitgestrekte Renkums Beekdal. Maar ook is de dorpskern met een groot aanbod aan winkels direct binnen handbereik.

De woning ligt op een royaal perceel van maar liefst 2.425 m² met aan de achterzijde vele parkeermogelijkheden. Daar bevindt zich ook de vrijstaande houten kapschuur (bouwjaar 2013) met garage/berging met een smeerput en een ruime bergzolder.

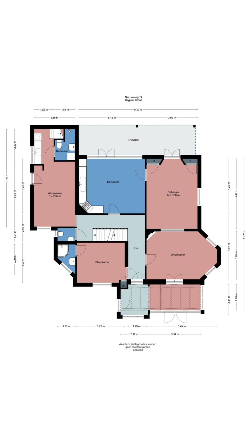
Indeling woonhuis:

Begane grond:
Bij de entree wordt je direct warm onthaald door de prachtige kleurrijke glas-in-lood ramen en de granitovloer. Zodra je doorloopt naar de hal is de toon direct gezet: authentiek; prachtige vloertegels, sierplafonds, paneeldeuren, lambrisering, imposante trapopgang naar de verdieping. Toilet met fontein.

Dan betreed je de kamer-en-suite met hoge plafonds met ornamenten en schuifdeuren. De voorkamer (zitkamer) heeft een natuurstenen schouw met een houtkachel. Via openslaande deuren kom je in een indrukwekkende serre. Een ruimte die verbinding heeft met het groen rondom de woning. De serre heeft openslaande deuren en sfeervolle roedenramen. Grote ramen zorgen voor veel daglicht. Vanuit de woonvertrekken zicht op de tuin en groen rondom.
De achterkamer is voorzien van inbouwkasten en een statige nis met hoge openslaande tuindeuren.

Riante eetkeuken met openslaande tuindeuren die toegang geeft tot de overdekte veranda. De veranda is een klassiek sfeervol element. Een perfecte plek om te genieten van het buitenleven met de gemakken van de keuken en woning binnen handbereik.

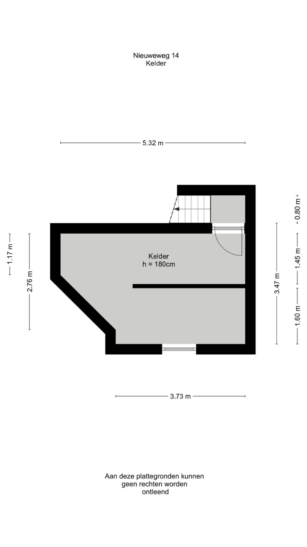
Verder bevindt zicht op de begane grond nog een slaapkamer met een eigen badkamer. Vanuit de hal is de kelder te bereiken. Een ideale koele plek voor het opslaan van provisie.

Naar de 1e verdieping:
Maar eerst een tussenverdieping met een bergzolder en wasmachine aansluiting.

1e Verdieping: overloop, riante badkamer voorzien van een douchehoek, ligbad, toilet en een wastafelmeubel. Doorloop naar een 2e bergzolder met de opstelling van de C.V.-combiketel.
Vanuit de overloop zijn er royale 4 slaapkamers aanwezig. Een separate kamer met trapopgang naar de 2e verdieping.

2e verdieping: slaapkamer met twee dakramen die zorgen voor voldoende daglicht en een wastafel. Hier ook een 3e bergzolder.

Zelfstandig appartement/gastenverblijf:
Deze aangebouwde ruimte is gelegen op de begane grond en heeft een eigen entree. Woonkamer met een keuken, badkamer met een douche, wastafel, toilet en wasmachine aansluiting. Via een trap die leidt naar de verdieping is de slaapkamer aanwezig. Ook heeft het gastenverblijf een eigen C.V.-combiketel

Netto woonoppervlakte: ca. 254 m², overige inpandige bergruimte: ca. 16 m², houten garage met overkapping: ca. 109 m², bouwkundige inhoud: ca. 1.139 m³, perceeloppervlakte: 2.425 m².

Isolatie voorzieningen aanwezig:
* gevelisolatie (aan de binnenzijde zijn voorzetwanden met steenwol vulling)
* dakisolatie (steenwol)
* grotendeels dubbel glas

Buitenonderhoud woning:
De buitenzijde van de woning is circa 25 % gerestaureerd en vervangen.

Verwarming:
Zowel het woonhuis als het gastenverblijf hebben een eigen C.V.-gas combiketel, Nefit Proline.

DISCLAIMER:
* Deze informatie is door ons met de nodige zorgvuldigheid samengesteld. Onzerzijds wordt echter geen enkele aansprakelijkheid aanvaard voor enige onvolledigheid, onjuistheid of anderszins, dan wel de gevolgen daarvan. Alle opgegeven maten en oppervlakten zijn indicatief.

* Barten Tiemessen NVM Makelaars B.V. heeft de opdracht tot verkoop van het onderhavige object. Hoewel gestreefd is naar een zo nauwkeurig mogelijke inventarisatie van de beschikbare gegevens, moet er van uitgegaan worden dat het bovenstaande slechts indicatief is. De gegevens (bedragen, jaartallen, omschrijvingen etc) zijn soms verkregen door mondelinge informatie, soms zijn ze vanuit het geheugen opgediept. De koper heeft zijn eigen onderzoeksplicht naar alle zaken die voor hem van belang zijn en kan zich nimmer beroepen op onbekendheid met feiten die hij zelf had kunnen waarnemen of die kenbaar waren uit de openbare registers. Desgewenst kan koper zich laten begeleiden door een adviseur of een bouwkundige bij de aankoop.

Kenmerken

  • Status Verkocht
  • Vraagprijs € 1.050.000,- k.k.
  • Aanvaarding In overleg

Bouwvorm

  • Bouwvorm Bestaande bouw
  • Bouwjaar 1903
  • Ligging Aan bosrand, aan rustige weg

Indeling

  • Woonoppervlakte 254m2
  • Inhoud 1139m3
  • Aantal kamers 11
  • Aantal woonlagen 4
  • Perceeloppervlakte 2425m2

Energie

  • Energieklasse E
  • Energie einddatum 09-10-2035
  • Isolatie Dakisolatie, muurisolatie, grotendeels dubbelglas
  • Warmwater Cv ketel
  • Verwarming Cv ketel
  • Bouwjaar C.V.-Ketel 2011
  • Combiketel Ja
  • Brandstof Gas
  • Eigendom Eigendom

Buitenruimte

  • Tuin Tuin rondom
  • Hoofdtuin Tuin rondom
  • Kwaliteit tuin Verzorgd

Parkeergelegenheid

  • Garage Vrijstaand hout, parkeerplaats

Brochure

close

Reageren op deze woning

Afspraak maken

    Nieuweweg 14, Renkum

    Geïnteresseerd geraakt?

    Wacht niet langer en plan direct een bezichtiging met ons in. U kunt ons tijdens kantooruren bereiken op 0317 - 422600 of stuur een e-mail naar info@barten- tiemessen.nl

    reageer op deze woning