Verkocht onder voorbehoud Wageningen

Mondriaanlaan 94

€ 589.000,- k.k.

Omschrijving

Mondriaanlaan 94, 6708 NL te Wageningen In de geliefde woonwijk "Noordwest" ligt deze uitgebouwde hoekwoning. De moderne woning beschikt over een ruime, speels ingedeelde woonkamer met gashaard, kantoorruimte, vier slaapkamers en een diepe tuin. In de nabijheid bevinden zich meerdere faciliteiten waaronder scholen, een winkelcentrum en sportcentra. Tevens bevindt het...

lees verder

Kenmerken

  • Status Onder voorbehoud verkocht
  • Vraagprijs € 589.000,- k.k.
  • Bouwjaar 1991
  • Woonoppervlakte 131m²
  • Aantal kamers 7
Meer kenmerken

Omschrijving

Mondriaanlaan 94, 6708 NL te Wageningen

In de geliefde woonwijk “Noordwest” ligt deze uitgebouwde hoekwoning. De moderne woning beschikt over een ruime, speels ingedeelde woonkamer met gashaard, kantoorruimte, vier slaapkamers en een diepe tuin. In de nabijheid bevinden zich meerdere faciliteiten waaronder scholen, een winkelcentrum en sportcentra. Tevens bevindt het stadscentrum van Wageningen zich op enkele fietsminuten afstand.

Perceeloppervlakte: 204 m², woonoppervlakte circa 131 m², inhoud ca. 465 m³, bouwjaar 1991.

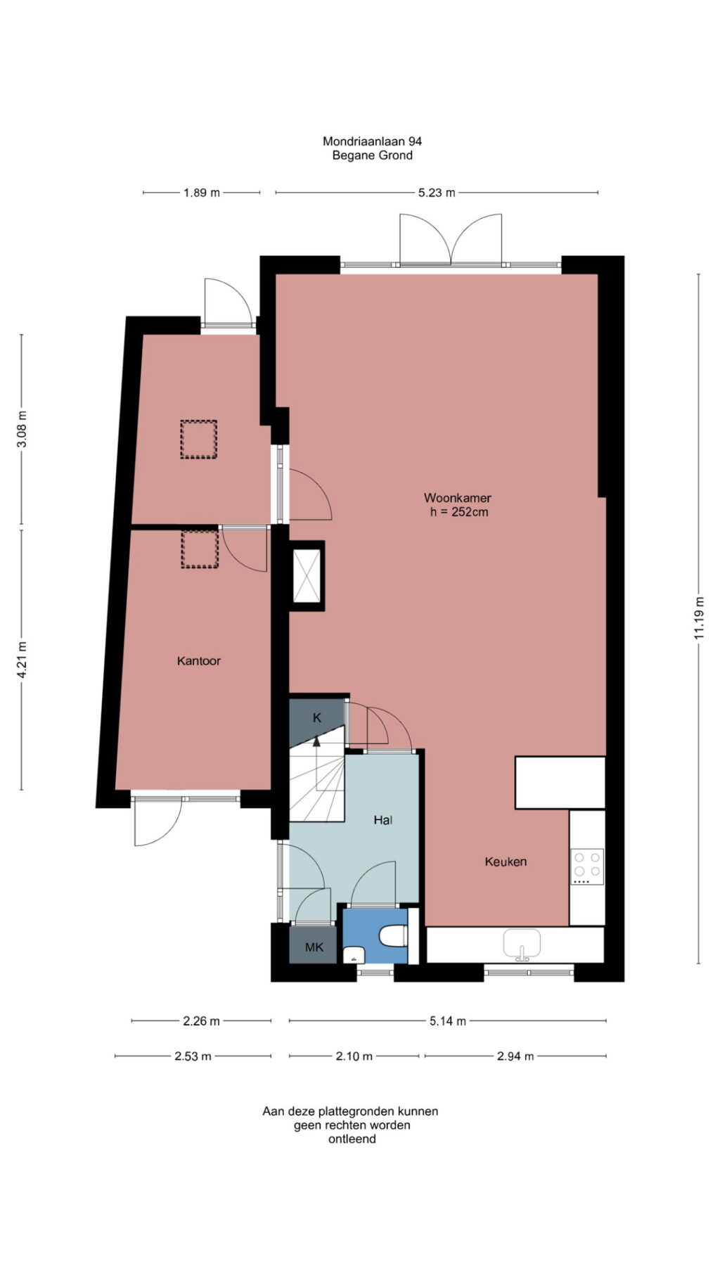
Indeling:
Via de hal betreedt u de woning. Hier bevinden zich de meterkast, de trapopgang naar de verdiepingen en een toiletruimte met fonteintje. Aan de voorzijde van de woning is de keuken gesitueerd, welke in 2020 volledig is vernieuwd. De keuken heeft een witte afwerking en beschikt over een gezellig barretje. De inbouwapparatuur, eveneens uit 2020, bestaat uit een inductiekookplaat, afzuigkap, combi-oven/magnetron, koel-/vriescombinatie en een vaatwasser.

De woonkamer is in 2020 uitgebouwd en heeft een praktische indeling. De gashaard zorgt voor extra sfeer en comfort. De pvc-vloer loopt vanuit de keuken door in de woonkamer, waardoor de begane grond een mooi en samenhangend geheel vormt. De openslaande deuren zorgen voor een prettige verbinding tussen binnen en buiten. Dankzij de grote raampartijen aan de achterzijde is de woonkamer heerlijk licht.

Moderne taatsdeuren geven toegang tot de aangrenzende ruimtes. Aan de zijkant van de woning is een werkruimte gerealiseerd, wat de woning zeer geschikt maakt voor thuiswerken of het uitoefenen van een praktijk aan huis.

Eerste verdieping:
De overloop geeft toegang tot drie slaapkamers. Eén slaapkamer is gelegen aan de voorzijde van de woning. De overige twee slaapkamers bevinden zich aan de achterzijde en beschikken over extra bergruimte achter de knieschotten. Twee dakramen zorgen voor een prettige daglichtinval.
De modern betegelde badkamer is voorzien van een douche, een dubbele wastafel en een toilet. Het raam zorgt voor natuurlijke ventilatie en extra daglicht.

Tweede verdieping:
Op de zolderverdieping bevindt zich de vierde slaapkamer. Deze kamer is eveneens voorzien van een dakraam en knieschotten voor extra bergruimte. Op de overloop bevinden zich de aansluitingen voor de cv-installatie en de wasmachine.

Tuin:
De woning beschikt over een onderhoudsvriendelijke tuin, gelegen op het noordoosten. In 2021 zijn een nieuwe schuur en een veranda geplaatst. De veranda biedt een fijne plek voor het creëren van een loungehoek en de schuur is ideaal voor het stallen van fietsen en het opbergen van tuinspullen.

Bijzonderheden:
– Uitgebouwde en lichte woning;
– Keuken volledig vernieuwd in 2020;
– Woonkamer uitgebouwd in 2020;
– Vier slaapkamers aanwezig;
– Praktische werkruimte, ideaal voor thuiswerken of praktijk aan huis;
– Onderhoudsvriendelijke tuin met veranda en berging (2021);
– Energielabel A, geldig tot 09-01-2036;

Aanvaarding in overleg.

Koperonderzoeksplicht:
* Barten Tiemessen NVM Makelaars B.V. heeft de opdracht tot verkoop van het onderhavige object. Hoewel gestreefd is naar een zo nauwkeurig mogelijke inventarisatie van de beschikbare gegevens, moet er van uitgegaan worden dat het bovenstaande slechts indicatief is. De gegevens (bedragen, jaartallen, omschrijvingen etc) zijn soms verkregen door mondelinge informatie, soms zijn ze vanuit het geheugen opgediept. De koper heeft zijn eigen onderzoeksplicht naar alle zaken die voor hem van belang zijn en kan zich nimmer beroepen op onbekendheid met feiten die hij zelf had kunnen waarnemen of die kenbaar waren uit de openbare registers. Desgewenst kan koper zich laten begeleiden door een adviseur of een bouwkundige bij de aankoop.

Disclaimer:
* Deze informatie is door ons met de nodige zorgvuldigheid samengesteld. Onzerzijds wordt echter geen enkele aansprakelijkheid aanvaard voor enige onvolledigheid, onjuistheid of anderszins, dan wel de gevolgen daarvan. Alle opgegeven maten en oppervlakten zijn indicatief.

Kenmerken

  • Status Onder voorbehoud verkocht
  • Vraagprijs € 589.000,- k.k.
  • Aanvaarding In overleg

Bouwvorm

  • Bouwvorm Bestaande bouw
  • Bouwjaar 1991
  • Ligging Aan rustige weg, in woonwijk

Indeling

  • Woonoppervlakte 131m2
  • Inhoud 465m3
  • Aantal kamers 7
  • Aantal woonlagen 3
  • Perceeloppervlakte 204m2

Energie

  • Energieklasse A
  • Energie einddatum 01-09-2036
  • Isolatie Dakisolatie, muurisolatie, vloerisolatie, driedubbel glas, hr glas
  • Warmwater Cv ketel
  • Verwarming Cv ketel, vloerverwarming gedeeltelijk
  • Bouwjaar C.V.-Ketel 2018
  • Combiketel Ja
  • Brandstof Gas
  • Eigendom Huur

Buitenruimte

  • Tuin Achtertuin, voortuin
  • Hoofdtuin Achtertuin
  • Oppervlakte hoofdtuin 88m2 (12.0m bij 7.3m)
  • Ligging hoofdtuin Noordoost
  • Kwaliteit tuin Fraai aangelegd

Parkeergelegenheid

  • Garage Geen garage

Brochure

close

Reageren op deze woning

Afspraak maken

    Mondriaanlaan 94, Wageningen

    Geïnteresseerd geraakt?

    Wacht niet langer en plan direct een bezichtiging met ons in. U kunt ons tijdens kantooruren bereiken op 0317 - 422600 of stuur een e-mail naar info@barten- tiemessen.nl

    reageer op deze woning