Verkocht Renkum

Lindelaan 9

€ 850.000,- k.k.

Omschrijving

Lindelaan 9, 6871 DW te Renkum In een prachtige, groene omgeving van Renkum staat deze ROYAAL VRIJSTAANDE VILLA, die onder architectuur is gebouwd. De woning is gelegen op een ruim perceel van circa 1.200 m² en beschikt over een fraaie, beschutte tuin die veel privacy biedt. De woning biedt een...

lees verder

Kenmerken

  • Status Verkocht
  • Vraagprijs € 850.000,- k.k.
  • Bouwjaar 1968
  • Woonoppervlakte 175m²
  • Aantal kamers 6
Meer kenmerken

Omschrijving

Lindelaan 9, 6871 DW te Renkum

In een prachtige, groene omgeving van Renkum staat deze ROYAAL VRIJSTAANDE VILLA, die onder architectuur is gebouwd. De woning is gelegen op een ruim perceel van circa 1.200 m² en beschikt over een fraaie, beschutte tuin die veel privacy biedt.

De woning biedt een bijzonder ruimtelijk gevoel dankzij de hoge plafonds en de stijlvolle vide-opgang naar de eerste verdieping. De grote raampartijen zorgen voor veel natuurlijke lichtinval, waardoor de ruimtes extra ruim en open aanvoelen. Daarnaast beschikt de woning over een slaapkamer op de begane grond.

Perceeloppervlakte circa 1200 m², woonoppervlakte circa 175 m², bouwjaar 1968 en energielabel B

Indeling
Begane grond:
Via de entree, waar zich het toilet met wastafel en de meterkast bevinden, betreedt u de lichte en ruime living. De open indeling verbindt de woonkamer en keuken tot één geheel, waardoor er een fijne en royale leefruimte ontstaat. De grote raampartijen en schuifpui zorgen voor veel lichtinval en bieden een fraai uitzicht op de tuin. De open haard zorgt hierbij voor een warm en huiselijk gevoel.

De moderne keuken is geplaatst langs twee wanden en beschikt daarnaast over een praktisch kookeiland. De keuken is voorzien van vloerverwarming, openslaande deuren naar de tuin en diverse inbouwapparatuur, waaronder een vaatwasser, inductiekookplaat, oven, combi-oven/magnetron, koelkast, vriezer en een Quooker.

Vanuit de living is tevens een werkkamer bereikbaar, ideaal voor thuiswerken of als rustige leesruimte. De bijkeuken is voorzien van een extra keukenblok en toegang tot de kelder. De voormalige garage is omgebouwd tot een slaapkamer op de begane grond, voorzien van airconditioning.

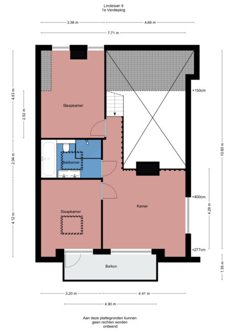
Eerste verdieping:
Via de trap bereikt u de vide, vanwaar u een fraai uitzicht heeft op de living beneden. Op de vide is een praktische werkkamer gecreëerd. Eventueel kan deze ruimte worden omgevormd tot een extra slaapkamer, waardoor het totaal uitkomt op drie slaapkamers op de eerste verdieping. De verdieping beschikt over twee ruime slaapkamers. De slaapkamer aan de voorzijde is voorzien van een dakraam en biedt bovendien toegang tot een balkon, waar u kunt genieten van de avondzon. Beide kamers en vide zijn voorzien van airconditioning.

De badkamer is ingericht met een dubbele wastafel met bijpassend wastafelmeubel, een ligbad, een inloopdouche en een zwevend toilet. Dankzij het dakraam beschikt de ruimte over aangenaam daglicht. De badkamer is voorzien van vloerverwarming.

Tuin:
In de tuin bevindt zich een praktische houten berging, ideaal voor het opbergen van bijvoorbeeld tuingereedschap en fietsen. De royale tuin heeft een gunstige zonligging en is ingericht met moestuin, fruitbomen, kas en vijver. De kippen scharrelen vrolijk rond in hun ren, waardoor u kunt genieten van verse groenten uit eigen tuin en een vers eitje in de ochtend.

Bijzonderheden:
– Ideaal gelegen ten opzichte van voorzieningen in het dorp en uitvalswegen;
– De woning ligt op steenworp afstand van het natuurgebied Noordberg, de Uiterwaarden en de bossen;
– Slaapkamer op de begane grond;
– De hoge plafonds en de vide geven een ruimtelijk gevoel;
– Diverse werkplekken voor de thuiswerker;
– Ruim perceel van 1.200 m²;
– Voorzien van 22 zonnepanelen, vloerverwarming en airconditioning;
– Energielabel B geldig tot 05-11-2035;
– Aanvaarding in overleg.

* Disclaimer
Deze informatie is door ons met de nodige zorgvuldigheid samengesteld. Onzerzijds wordt echter geen enkele aansprakelijkheid aanvaard voor enige onvolledigheid, onjuistheid of anderszins, dan wel de gevolgen daarvan. Alle opgegeven maten en oppervlakten zijn indicatief.

* Koperonderzoeksplicht
Barten Tiemessen NVM Makelaars B.V. heeft de opdracht tot verkoop van het onderhavige object. Hoewel gestreefd is naar een zo nauwkeurig mogelijke inventarisatie van de beschikbare gegevens, moet er van uitgegaan worden dat het bovenstaande slechts indicatief is. De gegevens (bedragen, jaartallen, omschrijvingen etc.) zijn soms verkregen door mondelinge informatie, soms zijn ze vanuit het geheugen opgediept. De koper heeft zijn eigen onderzoeksplicht naar alle zaken die voor hem van belang zijn en kan zich nimmer beroepen op onbekendheid met feiten die hij zelf had kunnen waarnemen of die kenbaar waren uit de openbare registers. Desgewenst kan koper zich laten begeleiden door een adviseur of een bouwkundige bij de aankoop.

Kenmerken

  • Status Verkocht
  • Vraagprijs € 850.000,- k.k.
  • Aanvaarding In overleg

Bouwvorm

  • Bouwvorm Bestaande bouw
  • Bouwjaar 1968
  • Ligging Aan rustige weg, in bosrijke omgeving

Indeling

  • Woonoppervlakte 175m2
  • Inhoud 677m3
  • Aantal kamers 6
  • Aantal woonlagen 2
  • Perceeloppervlakte 1200m2

Energie

  • Energieklasse B
  • Energie einddatum 11-05-2035
  • Isolatie Dakisolatie, muurisolatie, vloerisolatie, dubbel glas
  • Warmwater Cv ketel
  • Verwarming Cv ketel, vloerverwarming gedeeltelijk
  • Bouwjaar C.V.-Ketel 2016
  • Combiketel Ja
  • Brandstof Gas
  • Eigendom Eigendom

Buitenruimte

  • Tuin Tuin rondom
  • Hoofdtuin Tuin rondom
  • Kwaliteit tuin Normaal

Parkeergelegenheid

  • Garage Geen garage

Brochure

close

Reageren op deze woning

Afspraak maken

    Lindelaan 9, Renkum

    Geïnteresseerd geraakt?

    Wacht niet langer en plan direct een bezichtiging met ons in. U kunt ons tijdens kantooruren bereiken op 0317 - 422600 of stuur een e-mail naar info@barten- tiemessen.nl

    reageer op deze woning