Verkocht Wageningen

Lawickse Allee 76

€ 410.000,- k.k.

Omschrijving

Lawickse Allee 76 te Wageningen Op loopafstand van het gezellige stadscentrum van Wageningen ligt dit verrassend ruime VIERKAMER-HOEKAPPARTEMENT (maisonnette) met groot balkon op het zuiden. Het appartement is gelegen op de derde en vierde woonlaag van het kleinschalige appartementencomplex “Nieuw Lawick” en biedt u een heerlijk vrij uitzicht en optimale...

lees verder

Kenmerken

  • Status Verkocht
  • Vraagprijs € 410.000,- k.k.
  • Bouwjaar 1979
  • Woonoppervlakte 146m²
  • Aantal kamers 3
Meer kenmerken

Omschrijving

Lawickse Allee 76 te Wageningen

Op loopafstand van het gezellige stadscentrum van Wageningen ligt dit verrassend ruime VIERKAMER-HOEKAPPARTEMENT (maisonnette) met groot balkon op het zuiden. Het appartement is gelegen op de derde en vierde woonlaag van het kleinschalige appartementencomplex “Nieuw Lawick” en biedt u een heerlijk vrij uitzicht en optimale privacy. Aan de achterzijde van het appartementencomplex is de bijbehorende berging gesitueerd en is er parkeerruimte aanwezig voor de bewoners van het complex.

Bouwjaar: 1979, woonoppervlakte: ca. 146 m², bouwkundige inhoud: ca. 512 m³.

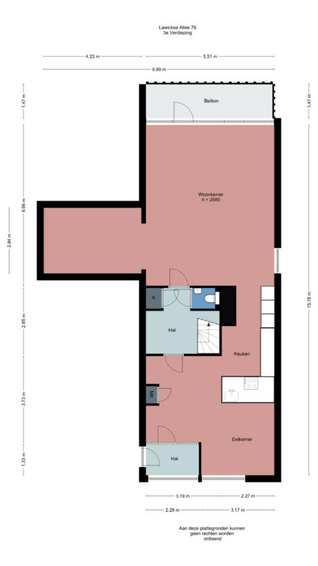
Indeling: entree, hal, eetkamer, meterkast, open (leef)keuken voorzien van diverse inbouwapparatuur, zoals koelkast/vriezer, oven, magnetron, vaatwasser en kookplaat (BORA), tussenhal, toilet met fontein, werkkast, royale lichte woonkamer met een aparte open werkkamer. De woonkamer is voorzien van een deur naar een ruim en zonnig terras op het zuiden.
Verdieping: overloop, twee royale slaapkamers waarvan één met een inloopkast (hierin bevindt zich tevens de CV-opstelling), badkamer voorzien van riante inloopdouche, toilet, dubbele wastafel en designradiator.

Bijzonderheden:
– Aantrekkelijke woonlocatie, gelegen aan fraaie laan met monumentale panden en nabij alle voorzieningen;
– Ruim en rustig gelegen appartement;
– Extra lichtinval door zijraam in woonkamer;
– Voldoende parkeergelegenheid aan zowel voor- als achterzijde van het complex;
– De VvE gaat dit jaar een aantal energiebesparende maatregelen treffen, waaronder het vervangen van glas en voor het grootste gedeelte de kozijnen, het aanbrengen van vloerisolatie en gevelisolatie;
– Het appartement wordt volledig voorzien van kunststof kozijnen met triple glas (HR+++) (planning mei – oktober 2025);
– De servicekosten bedragen thans voor het appartement € 328,17 per maand (incl. € 166,67 duurzaamheidslening VvE);
– Afgesloten hoofdentree, intercom en lift aanwezig;
– Er is een separate berging/schuur aanwezig;
– Actieve en financieel gezonde Vereniging van Eigenaars.
Aanvaarding in overleg.

Extra informatie:
* Disclaimer:
Deze informatie is door ons met de nodige zorgvuldigheid samengesteld. Onzerzijds wordt echter geen enkele aansprakelijkheid aanvaard voor enige onvolledigheid, onjuistheid of anderszins, dan wel de gevolgen daarvan. Alle opgegeven maten en oppervlakten zijn indicatief.

* Koperonderzoeksplicht:
Barten Tiemessen NVM Makelaars B.V. heeft de opdracht tot verkoop van het onderhavige object. Hoewel gestreefd is naar een zo nauwkeurig mogelijke inventarisatie van de beschikbare gegevens, moet er van uitgegaan worden dat het bovenstaande slechts indicatief is. De gegevens (bedragen, jaartallen, omschrijvingen etc) zijn soms verkregen door mondelinge informatie, soms zijn ze vanuit het geheugen opgediept. De koper heeft zijn eigen onderzoeksplicht naar alle zaken die voor hem van belang zijn en kan zich nimmer beroepen op onbekendheid met feiten die hij zelf had kunnen waarnemen of die kenbaar waren uit de openbare registers. Desgewenst kan koper zich laten begeleiden door een adviseur of een bouwkundige bij de aankoop.

*Opkoopbescherming:
Het appartement is gelegen in De Buurt-West, hier is de opkoopbescherming is van toepassing.
Per 17 februari 2022 voert de gemeente Wageningen een opkoopbescherming in. Dit betekent dat een woning niet mag worden gekocht om daarna te verhuren. Wie de woning koopt, moet hier in principe zelf in gaan wonen (zelfbewoningsplicht). De opkoopbescherming geldt niet voor alle wijken in Wageningen en ook niet voor alle prijsklassen. Het geldt alleen voor huizen met een WOZ-waarde minder dan € 355.000 in de wijken: Binnenstad/Centrum, Boven- en Benedenbuurt, De Buurt-West en de Nude.

De landelijke Opkoopwet verplicht gemeenten een aantal uitzonderingen te maken. Deze maken het toch mogelijk de koopwoning te verhuren. Deze uitzonderingen zijn:

– Verhuur aan 1e of 2e graad familieleden. Bijvoorbeeld uw zoon of dochter. Of broer of kleinkind.
– Verhuur voor maximaal 1 jaar als u zelf al 12 maanden of langer in de woning woont. Bijvoorbeeld als u een jaar naar het buitenland gaat.
– Verhuur van woonruimte die zich bevindt in een winkel, kantoor of bedrijfsruimte.

Als uw situatie zo’n uitzondering is, kunt u via deze website van de gemeente Wageningen een vergunning aanvragen. (vergunning tijdelijke verhuur van woning (opkoopwet) aanvragen).
Wij verwijzen u naar de website van de gemeente Wageningen voor meer informatie.

Kenmerken

  • Status Verkocht
  • Vraagprijs € 410.000,- k.k.
  • Aanvaarding In overleg

Bouwvorm

  • Soort appartement Maisonnette
  • Bouwvorm Bestaande bouw
  • Bouwjaar 1979
  • Ligging In centrum, vrij uitzicht

Indeling

  • Woonoppervlakte 146m2
  • Inhoud 512m3
  • Aantal kamers 3
  • Aantal woonlagen 2

Energie

  • Energieklasse B
  • Energie einddatum 02-10-2035
  • Isolatie Dakisolatie, gedeeltelijk dubbel glas
  • Warmwater Cv ketel
  • Verwarming Cv ketel
  • Bouwjaar C.V.-Ketel 2014
  • Combiketel Ja
  • Brandstof Gas
  • Eigendom Eigendom

Buitenruimte

  • Tuin Geen tuin

Bergruimte

  • Schuur / Berging

Parkeergelegenheid

  • Garage Geen garage

Brochure

close

Reageren op deze woning

Afspraak maken

    Lawickse Allee 76, Wageningen

    Geïnteresseerd geraakt?

    Wacht niet langer en plan direct een bezichtiging met ons in. U kunt ons tijdens kantooruren bereiken op 0317 - 422600 of stuur een e-mail naar info@barten- tiemessen.nl

    reageer op deze woning