Bennekom

Langhoven 32

€ 775.000,- k.k.

Omschrijving

Langhoven 32, 6721 SK Bennekom Deze royale 2-onder-1-kapwoning is gelegen in een kindvriendelijke, populaire en autoluwe wijk in Bennekom. Diverse voorzieningen zoals basisscholen, medisch centrum en het gezellige dorpscentrum bevinden zich op loopafstand. Ook bos en landelijk gebied liggen direct nabij. De ruim opgezette woonwijk kenmerkt zich door veel groen...

lees verder

Kenmerken

  • Status Verkocht onder voorbehoud
  • Vraagprijs € 775.000,- k.k.
  • Bouwjaar 1976
  • Woonoppervlakte 184m²
  • Aantal kamers 6
Meer kenmerken

Omschrijving

Langhoven 32, 6721 SK Bennekom

Deze royale 2-onder-1-kapwoning is gelegen in een kindvriendelijke, populaire en autoluwe wijk in Bennekom. Diverse voorzieningen zoals basisscholen, medisch centrum en het gezellige dorpscentrum bevinden zich op loopafstand. Ook bos en landelijk gebied liggen direct nabij. De ruim opgezette woonwijk kenmerkt zich door veel groen en diverse speelveldjes.

De woning biedt volop leefruimte, beschikt over maar liefst vijf slaapkamers en een aangebouwde stenen garage. Daarnaast is de ligging gunstig ten opzichte van Wageningen University & Research en uitvalswegen richting Arnhem, Utrecht en Amersfoort zijn uitstekend bereikbaar.

Bouwjaar: 1977, woonoppervlakte: ca. 184 m², inhoud: ca. 637 m³, perceeloppervlakte: 347 m².

Indeling:
Begane grond: ruime entree, hal met trapopgang naar de verdieping, meterkast en toiletruimte met fonteintje. De royale woonkamer is voorzien van een sfeervolle open haard en een ruime eethoek. De woning is aan de achterzijde uitgebouwd wat zorgt voor een ruimtelijk en licht geheel.

De open keuken is voorzien van diverse inbouwapparatuur, waaronder een inductiekookplaat, afzuigkap, vaatwasser en Quooker. De combi-oven en de koel-/vriescombinatie zijn fraai verwerkt in een wandkast. Vanuit de keuken is de praktische trapkast/provisieruimte bereikbaar.

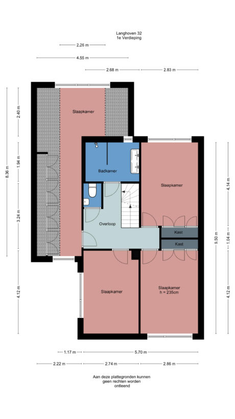
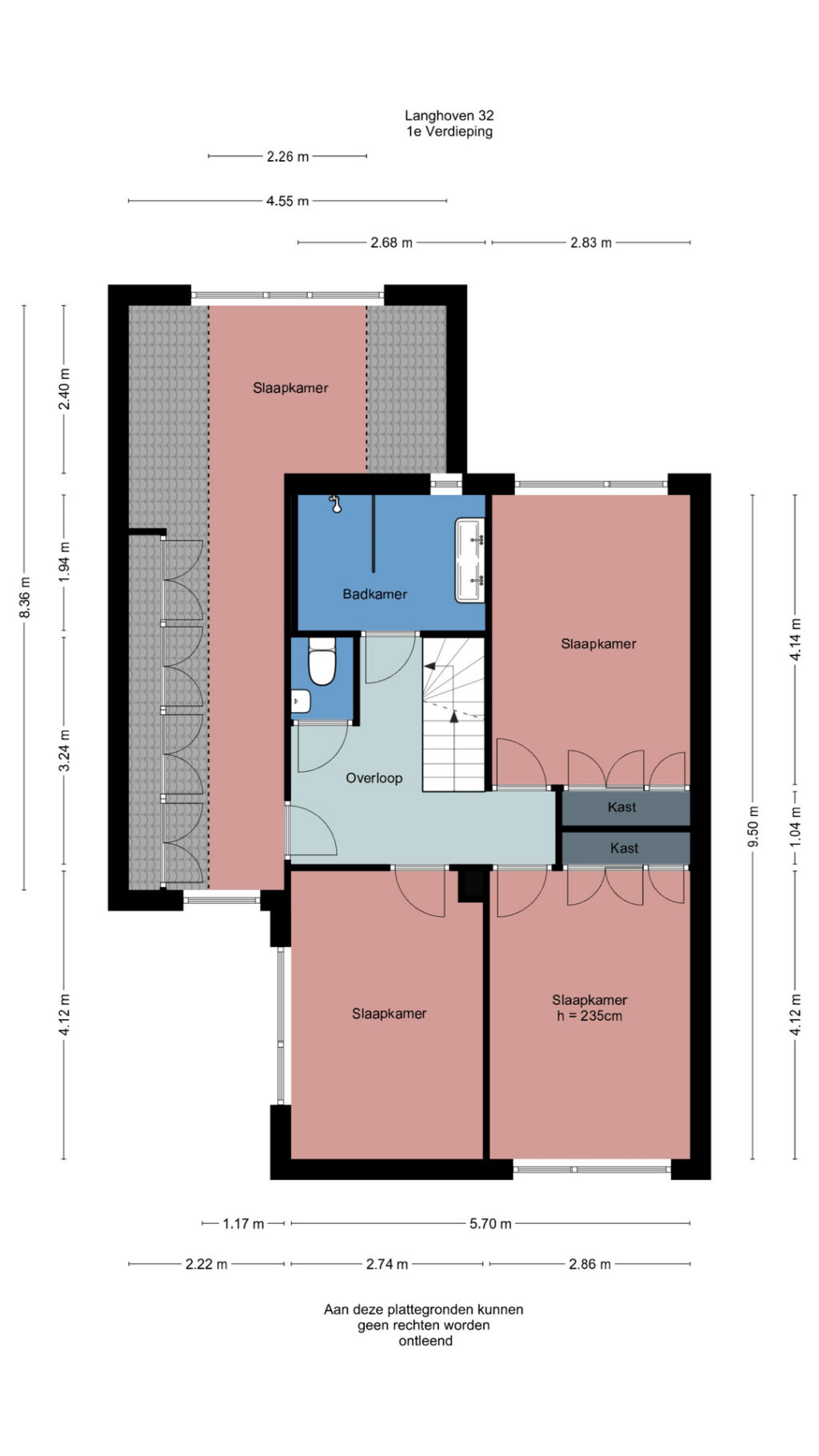
Eerste verdieping: Overloop met toegang tot alle vertrekken en vaste trap naar de tweede verdieping. De badkamer is voorzien van een dubbele wastafel en inloopdouche met hardglazen scherm. Daarnaast is er een separate toiletruimte met fonteintje.

Op deze verdieping bevinden zich vier slaapkamers, waarvan twee met vaste kastruimte. De ruimte boven de garage is in gebruik als vierde slaapkamer.

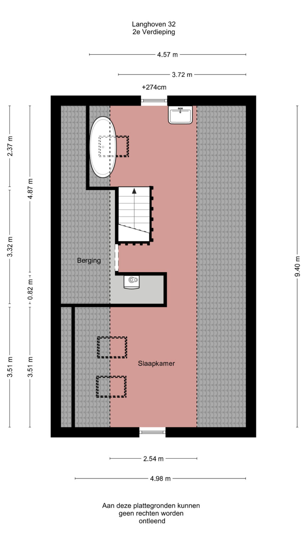
Tweede verdieping: Ruime vijfde slaapkamer met ligbad, wastafelmeubel en dakramen. Daarnaast is er een praktische bergruimte aanwezig met de cv-installatie.

Garage en tuin: De aangebouwde garage is thans in gebruik als bijkeuken en is voorzien van aansluitingen voor wasapparatuur. Daarnaast beschikt de ruimte over zowel een garagedeur als een loopdeur met directe toegang tot de achtertuin.

De zonnige achtertuin met houten veranda en tweede garage biedt volop privacy en heeft een eigen achterom.

Bijzonderheden:
– Ruime en lichte woonkamer;
– Royale keuken met moderne en luxe keukenopstelling;
– Maar liefst vijf slaapkamers;
– Energielabel B, geldig tot 05 november 2035;
– Voorzien van 15 zonnepanelen;
– Houten veranda en tweede garage in de achtertuin.

Aanvaarding in overleg.

Koperonderzoeksplicht:
* Barten Tiemessen NVM Makelaars B.V. heeft de opdracht tot verkoop van het onderhavige object. Hoewel gestreefd is naar een zo nauwkeurig mogelijke inventarisatie van de beschikbare gegevens, moet er van uitgegaan worden dat het bovenstaande slechts indicatief is. De gegevens (bedragen, jaartallen, omschrijvingen etc) zijn soms verkregen door mondelinge informatie, soms zijn ze vanuit het geheugen opgediept. De koper heeft zijn eigen onderzoeksplicht naar alle zaken die voor hem van belang zijn en kan zich nimmer beroepen op onbekendheid met feiten die hij zelf had kunnen waarnemen of die kenbaar waren uit de openbare registers. Desgewenst kan koper zich laten begeleiden door een adviseur of een bouwkundige bij de aankoop.

Disclaimer:
* Deze informatie is door ons met de nodige zorgvuldigheid samengesteld. Onzerzijds wordt echter geen enkele aansprakelijkheid aanvaard voor enige onvolledigheid, onjuistheid of anderszins, dan wel de gevolgen daarvan. Alle opgegeven maten en oppervlakten zijn indicatief.

Kenmerken

  • Status Verkocht onder voorbehoud
  • Vraagprijs € 775.000,- k.k.
  • Aanvaarding In overleg

Bouwvorm

  • Bouwvorm Bestaande bouw
  • Bouwjaar 1976
  • Ligging In woonwijk

Indeling

  • Woonoppervlakte 184m2
  • Inhoud 637m3
  • Aantal kamers 6
  • Aantal woonlagen 3
  • Perceeloppervlakte 347m2

Energie

  • Energieklasse B
  • Energie einddatum 11-05-2035
  • Isolatie Dakisolatie, muurisolatie, vloerisolatie, dubbel glas
  • Warmwater Cv ketel
  • Verwarming Cv ketel, open haard
  • Bouwjaar C.V.-Ketel 2003
  • Combiketel Nee
  • Brandstof Gas
  • Eigendom Eigendom

Buitenruimte

  • Tuin Achtertuin, voortuin, zijtuin
  • Hoofdtuin Achtertuin
  • Oppervlakte hoofdtuin 140m2 (15.5m bij 9.0m)

Parkeergelegenheid

  • Garage Aangebouwd steen, vrijstaand steen
  • Parkeerfaciliteiten Verwarming, elektra, water

Brochure

close

Reageren op deze woning

Afspraak maken

    Langhoven 32, Bennekom

    Geïnteresseerd geraakt?

    Wacht niet langer en plan direct een bezichtiging met ons in. U kunt ons tijdens kantooruren bereiken op 0317 - 422600 of stuur een e-mail naar info@barten- tiemessen.nl

    reageer op deze woning