Wageningen

Kees Mulderweg 71

€ 625.000,- k.k.

Omschrijving

Kees Mulderweg 71 te Wageningen, 6707 HC te Wageningen Royaal helft van een dubbel woonhuis met een grote vrijstaande stenen garage/berging, gelegen aan een brede straat met ruime groenstroken. Deze woning beschikt over een lichte en ruime woonkamer, vier slaapkamers en een riante, fraai aangelegde tuin op het noorden. Op...

lees verder

Kenmerken

  • Status Beschikbaar
  • Vraagprijs € 625.000,- k.k.
  • Bouwjaar 1972
  • Woonoppervlakte 139m²
  • Aantal kamers 5
Meer kenmerken

Omschrijving

Kees Mulderweg 71 te Wageningen, 6707 HC te Wageningen

Royaal helft van een dubbel woonhuis met een grote vrijstaande stenen garage/berging, gelegen aan een brede straat met ruime groenstroken. Deze woning beschikt over een lichte en ruime woonkamer, vier slaapkamers en een riante, fraai aangelegde tuin op het noorden. Op de eigen oprit is plaats voor meerdere auto’s. Aan de voorzijde geniet u van vrij uitzicht over een groen plantsoen, wat bijdraagt aan de prettige woonomgeving.

De ligging is ideaal: op korte loopafstand bevindt zich het bruisende historische stadscentrum van Wageningen met diverse winkels, horecagelegenheden en voorzieningen. Ook het busstation en meerdere supermarkten liggen in de directe nabijheid, waardoor u alle gemakken binnen handbereik heeft.

Woonopp. circa 139 m², inhoud circa 470 m³, perceelopp. 250 m², energielabel A en bouwjaar 1972.

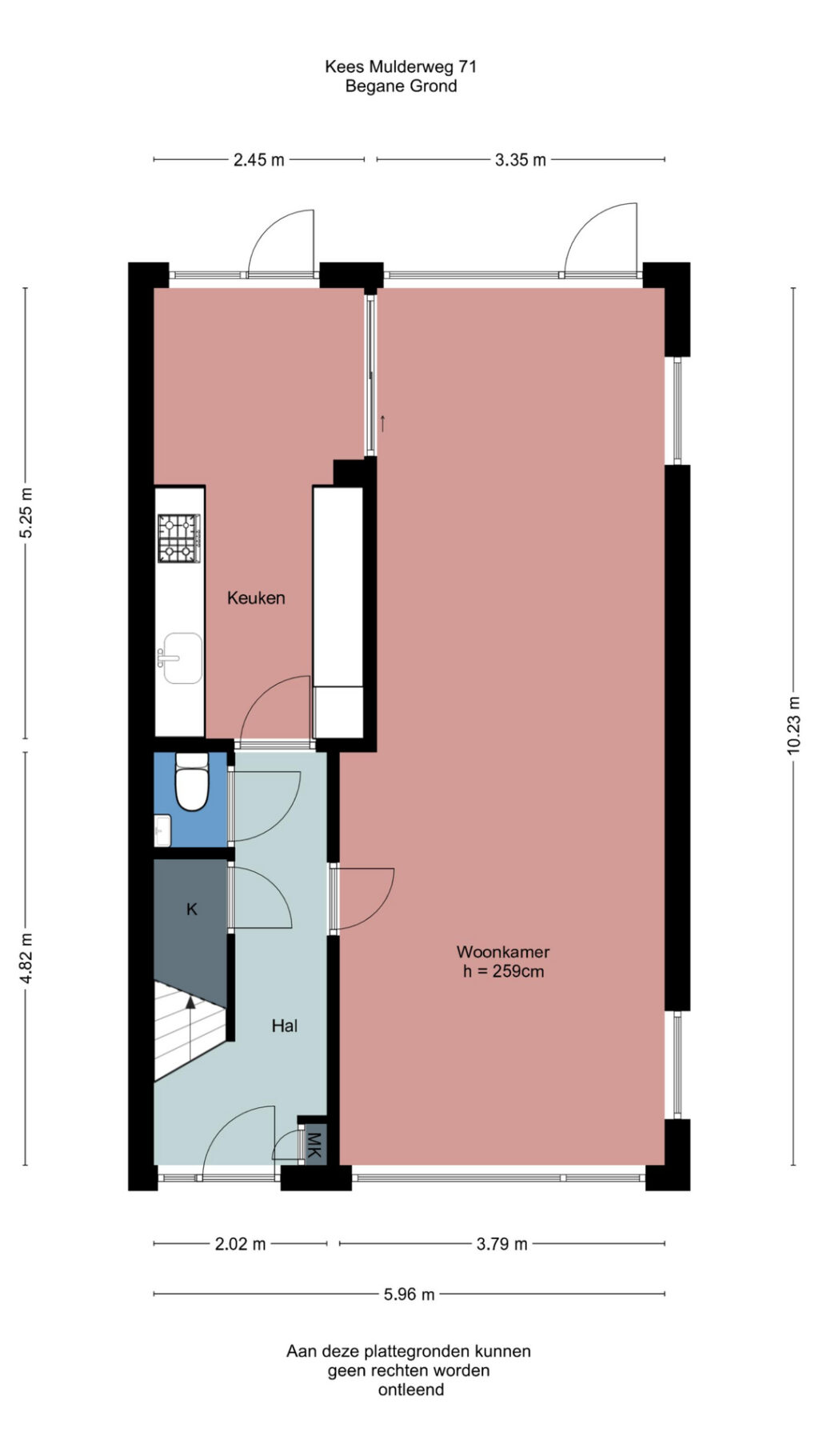
Indeling:

Begane grond:
Wanneer u de woning binnenstapt, komt u via de hal, waar zich de trapopgang naar de verdiepingen en een toilet met fonteintje bevinden, in de woonkamer en de keuken. De woonkamer is dankzij de zijramen heerlijk licht en biedt een prettige sfeer. Via een schuifdeur is de woonkamer gescheiden van de keuken.

De keuken is opgesteld langs twee wanden en voorzien van diverse inbouwapparatuur, waaronder een gasfornuis, afzuigkap, dubbele spoelbak, koelkast, oven, magnetron en vaatwasser. Daarnaast is er in de keuken een praktische aansluiting voor een wasmachine aanwezig. Zowel vanuit de woonkamer als de keuken heeft u directe toegang tot de tuin.

Eerste verdieping:
Via de overloop komt u uit in drie slaapkamers. Alle drie de slaapkamers zijn divers in formaat waardoor u de kamers naar wens kunt indelen als slaapkamer, logeerkamer of studeerkamer. De slaapkamers zijn voorzien van houten vloeren en brede ramen die veel daglicht naar binnen laten. ook zijn er inbouwkasten aanwezig. De betegelde badkamer is voorzien van een inloopdouche en een wastafel met wastafelmeubel. In de hal is er een separate toilet.

Tweede verdieping:
De tweede verdieping heeft een ruime vierde slaapkamer die ook uitstekend is in te richten als hobby- of werkkamer. Daarnaast bevindt zich hier de aansluiting voor de cv-ketel en extra bergruimte.

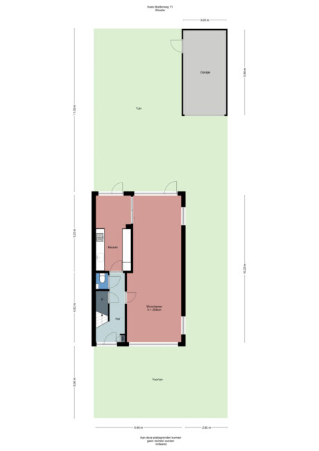
Tuin en berging:
De riante, groene tuin is gelegen op het noorden en is fraai aangelegd en goed onderhouden. Dankzij de rijke beplanting ervaart u hier een echt buitengevoel. De tuin is voorzien van een praktische achterom. In de tuin staat een ruime stenen berging/garage, die niet alleen geschikt is voor het parkeren van een auto, maar ook uitstekend kan dienen als werk- of klusruimte.

Bijzonderheden:
– Goed onderhouden helft van een dubbel woonhuis;
– Rustige, kindvriendelijke woonomgeving nabij scholen, winkels, sportvoorzieningen en openbaar vervoer;
– Vrij uitzicht aan de voorzijde op een groen plantsoen;
– Vier slaapkamers met mogelijkheid voor extra werk- of hobbyruimte;
– Voorzien van 18 zonnepanelen;
– Ruime, fraai aangelegde tuin op het noorden;
– Parkeren op eigen terrein en in eigen garage;
– Energielabel A, geldig tot 24-09-2035;
– Aanvaarding in overleg.

DISCLAIMER:
* Deze informatie is door ons met de nodige zorgvuldigheid samengesteld. Onzerzijds wordt echter geen enkele aansprakelijkheid aanvaard voor enige onvolledigheid, onjuistheid of anderszins, dan wel de gevolgen daarvan. Alle opgegeven maten en oppervlakten zijn indicatief.

* Barten Tiemessen NVM Makelaars B.V. heeft de opdracht tot verkoop van het onderhavige object. Hoewel gestreefd is naar een zo nauwkeurig mogelijke inventarisatie van de beschikbare gegevens, moet er van uitgegaan worden dat het bovenstaande slechts indicatief is. De gegevens (bedragen, jaartallen, omschrijvingen etc) zijn soms verkregen door mondelinge informatie, soms zijn ze vanuit het geheugen opgediept. De koper heeft zijn eigen onderzoeksplicht naar alle zaken die voor hem van belang zijn en kan zich nimmer beroepen op onbekendheid met feiten die hij zelf had kunnen waarnemen of die kenbaar waren uit de openbare registers. Desgewenst kan koper zich laten begeleiden door een adviseur of een bouwkundige bij de aankoop.

Kenmerken

  • Status Beschikbaar
  • Vraagprijs € 625.000,- k.k.
  • Aanvaarding In overleg

Bouwvorm

  • Bouwvorm Bestaande bouw
  • Bouwjaar 1972
  • Ligging In woonwijk

Indeling

  • Woonoppervlakte 139m2
  • Inhoud 470m3
  • Aantal kamers 5
  • Aantal woonlagen 3
  • Perceeloppervlakte 250m2

Energie

  • Energieklasse A
  • Energie einddatum 09-24-2035
  • Isolatie Dakisolatie, muurisolatie
  • Warmwater Cv ketel
  • Verwarming Cv ketel
  • Bouwjaar C.V.-Ketel 2011
  • Combiketel Ja
  • Brandstof Gas
  • Eigendom Eigendom

Buitenruimte

  • Tuin Achtertuin, voortuin
  • Hoofdtuin Achtertuin
  • Oppervlakte hoofdtuin 101m2 (11.4m bij 8.9m)
  • Ligging hoofdtuin Noord
  • Kwaliteit tuin Fraai aangelegd

Parkeergelegenheid

  • Garage Vrijstaand steen

Brochure

close

Reageren op deze woning

Afspraak maken

    Kees Mulderweg 71, Wageningen

    Geïnteresseerd geraakt?

    Wacht niet langer en plan direct een bezichtiging met ons in. U kunt ons tijdens kantooruren bereiken op 0317 - 422600 of stuur een e-mail naar info@barten- tiemessen.nl

    reageer op deze woning