Verkocht onder voorbehoud Wageningen

Jagerskamp 47

€ 595.000,- k.k.

Omschrijving

IN AANTREKKELIJKE GROENE EN RUSTIGE WOONWIJK GELEGEN ROYAAL HALFVRIJSTAAND WOONHUIS MET VRIJSTAANDE STENEN GARAGE, BESLOTEN TUIN EN PARKEERGELEGENHEID OP EIGEN TERREIN. Op loopafstand gelegen van landelijk gebied De Wageningse Eng. Scholen, supermarkten en openbaar vervoer zijn allen in de directe omgeving aanwezig. Het gezellige stadscentrum en Campus WUR liggen op...

lees verder

Kenmerken

  • Status Onder voorbehoud verkocht
  • Vraagprijs € 595.000,- k.k.
  • Bouwjaar 1956
  • Woonoppervlakte 147m²
  • Aantal kamers 6
Meer kenmerken

Omschrijving

IN AANTREKKELIJKE GROENE EN RUSTIGE WOONWIJK GELEGEN ROYAAL HALFVRIJSTAAND WOONHUIS MET VRIJSTAANDE STENEN GARAGE, BESLOTEN TUIN EN PARKEERGELEGENHEID OP EIGEN TERREIN.

Op loopafstand gelegen van landelijk gebied De Wageningse Eng. Scholen, supermarkten en openbaar vervoer zijn allen in de directe omgeving aanwezig. Het gezellige stadscentrum en Campus WUR liggen op circa 2 kilometer afstand. Bouwjaar 1956, perceeloppervlakte 287 m², woonoppervlakte 147 m² en inhoud 473 m³.

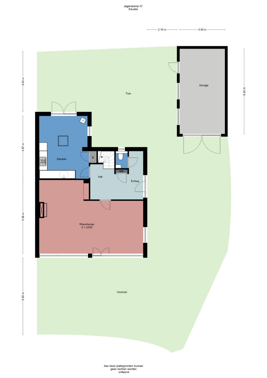
Indeling begane grond.
Hal, meterkast, toilet met fontein, royale en heerlijk lichte woonkamer met een houtkachel en openslaande deuren naar de voortuin, ruime uitgebouwde keuken voorzien van hoekopstelling met inbouwapparatuur, te weten: gaskookplaat, oven, afzuigkap en vaatwasser, in de keuken is een houtkachel aanwezig, kleine provisiekelder via keuken bereikbaar, deuren naar tuin.

1e Verdieping.
Overloop, oorspronkelijk badkamer met 2e toilet en wasmachineaansluiting thans in gebruik als wasruimte, hoofdslaapkamer met grote kast, 2e slaapkamer met vaste kast en deur naar balkon, 3e slaapkamer, vernieuwde badkamer met douche, toilet, wastafelmeubel, handdoek radiator, inbouwspots en raam voor licht en ventilatie.

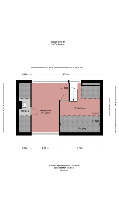
2e Verdieping.
Vaste trap naar overloop met dakkapel en bergruimte, ruime 4e slaapkamer met brede dakkapel en bergruimte achter knieschotten, bergruimte waar tevens cv-combiketel geplaatst is.

Stenen garage circa 20 m² voorzien van elektra.

Overige informatie:
• Goed gelegen, royale en energiezuinige woning.
• 6 zonnepanelen (2023) aanwezig.
• Energielabel C.
• Dakkapel aan de voor- en achterzijde aanwezig.
• Uitgebouwde woonkeuken voorzien van een lichtkoepel.
• Parkeergelegenheid voor meerdere auto’s op eigen terrein.

Aanvaarding in overleg.

DISCLAIMER
Deze informatie is door ons met de nodige zorgvuldigheid samengesteld. Onzerzijds wordt echter geen enkele aansprakelijkheid aanvaard voor enige onvolledigheid, onjuistheid of anderszins, dan wel de gevolgen daarvan. Alle opgegeven maten en oppervlakten zijn indicatief.

Barten Tiemessen NVM Makelaars B.V. heeft de opdracht tot verkoop van het onderhavige object. Hoewel gestreefd is naar een zo nauwkeurig mogelijke inventarisatie van de beschikbare gegevens, moet er van uitgegaan worden dat het bovenstaande slechts indicatief is. De gegevens (bedragen, jaartallen, omschrijvingen etc) zijn soms verkregen door mondelinge informatie, soms zijn ze vanuit het geheugen opgediept. De koper heeft zijn eigen onderzoeksplicht naar alle zaken die voor hem van belang zijn en kan zich nimmer beroepen op onbekendheid met feiten die hij zelf had kunnen waarnemen of die kenbaar waren uit de openbare registers of die bekend zijn bij de administrateur van een Vereniging van Eigenaars. Desgewenst kan koper zich laten begeleiden door een adviseur of een bouwkundige bij de aankoop. Indien het object een appartementsrecht betreft, raden wij u aan, vóór de aankoop contact op te nemen met de administrateur van de Vereniging van Eigenaars, teneinde een zo goed mogelijk beeld te krijgen van de solvabiliteit van de vereniging.

Kenmerken

  • Status Onder voorbehoud verkocht
  • Vraagprijs € 595.000,- k.k.
  • Aanvaarding In overleg

Bouwvorm

  • Bouwvorm Bestaande bouw
  • Bouwjaar 1956
  • Ligging Aan rustige weg, in woonwijk

Indeling

  • Woonoppervlakte 147m2
  • Inhoud 473m3
  • Aantal kamers 6
  • Aantal woonlagen 3
  • Perceeloppervlakte 287m2

Energie

  • Energieklasse C
  • Energie einddatum 08-31-2035
  • Isolatie Dakisolatie, muurisolatie, dubbel glas
  • Warmwater Cv ketel
  • Verwarming Cv ketel
  • Bouwjaar C.V.-Ketel 2009
  • Combiketel Ja
  • Eigendom Eigendom

Buitenruimte

  • Tuin Achtertuin, voortuin, zijtuin
  • Hoofdtuin Achtertuin
  • Oppervlakte hoofdtuin 57m2 (4.4m bij 13.0m)
  • Ligging hoofdtuin Noord
  • Kwaliteit tuin Normaal

Parkeergelegenheid

  • Garage Vrijstaand steen
  • Parkeerfaciliteiten Elektra

Brochure

close

Reageren op deze woning

Afspraak maken

    Jagerskamp 47, Wageningen

    Geïnteresseerd geraakt?

    Wacht niet langer en plan direct een bezichtiging met ons in. U kunt ons tijdens kantooruren bereiken op 0317 - 422600 of stuur een e-mail naar info@barten- tiemessen.nl

    reageer op deze woning