Verkocht Wageningen

Jagerskamp 111

€ 375.000,- k.k.

Omschrijving

** LET OP: Huurders van de Woningstichting voorrang. Dit geldt tot en met 16 april 2025: Dit is een voormalige sociale huurwoning die verkocht wordt door Woningstichting Wageningen. Dit betekent dat Woningstichting Wageningen wettelijk verplicht is deze woning gedurende de eerste vier weken te koop (t/m 16 april 2025) aan...

lees verder

Kenmerken

  • Status Verkocht
  • Vraagprijs € 375.000,- k.k.
  • Bouwjaar 1957
  • Woonoppervlakte 93m²
  • Aantal kamers 5
Meer kenmerken

Omschrijving

** LET OP: Huurders van de Woningstichting voorrang. Dit geldt tot en met 16 april 2025:
Dit is een voormalige sociale huurwoning die verkocht wordt door Woningstichting Wageningen. Dit betekent dat Woningstichting Wageningen wettelijk verplicht is deze woning gedurende de eerste vier weken te koop (t/m 16 april 2025) aan te bieden aan huurders van Woningstichting Wageningen en inwoners van Wageningen die in een zelfstandige huurwoning wonen.

Jagerskamp 111, 6706 EK Wageningen

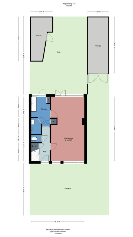
Gelegen in de geliefde wijk ‘De Bovenbuurt’. Vlakbij de Eng, in een rustige woonwijk, vindt u deze oorspronkelijke hoekwoning met grote berging in de op het oosten gelegen achtertuin.
De lichte HOEKWONING heeft 4 slaapkamers en is daardoor een ideaal familiehuis. In de omgeving vindt u verschillende basisscholen en speeltuinen en ook de supermarkt is op loopafstand aanwezig.

Bouwjaar: 1957, woonoppervlak: circa 93 m², inhoud: circa 376 m³, perceeloppervlak: 221 m².

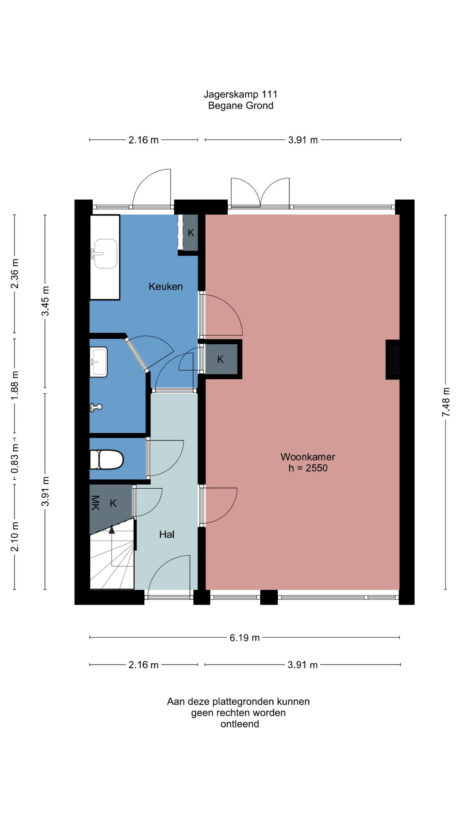
Indeling:
Begane grond: entree, hal met meter-/kelderkast en toiletruimte. De lichte woonkamer heeft aan de achterzijde openslaande deuren naar de tuin op het oosten. De keuken is zowel vanuit de hal als de woonkamer bereikbaar. Tevens is er vaste kast aanwezig, deur naar de achtertuin en toegang tot de oorspronkelijke badkamer. De tuin is voorzien van een ruime vrijstaande stenen berging en is tevens toegankelijk via een paadje achterom.

1e Verdieping: overloop met vaste kast, slaapkamer I van circa 9 m² met vaste kast, slaapkamer II van circa 12 m² met vaste kast, slaapkamer III van circa 10 m² met vaste kast en slaapkamer IV van circa 10 m².

Vliering: (ca 12 m² op stahoogte) middels vlizotrap te bereiken bergzolder met een klein dakraam en opstelling CV-combiketel.

Bijzonderheden:
– Heerlijk lichte hoekwoning gelegen in een rustige omgeving;
– Ruime achtertuin gelegen op het oosten met vrijstaande ruime stenen berging, houten berging en achterom;
– Energielabel D, geldig tot 03-01-2035;
– De huidige badkamer bevindt zich op de begane grond. Het is mogelijk om in 1 van de slaapkamers op de verdieping een badkamer te realiseren;
– Isolatie: volledig dubbel glas, behoudens dakraam deels muurisolatie en volledig dakisolatie.
– Aanvaarding: op korte termijn.

————————————————————-

BELANGRIJKE INFORMATIE
Deze woning maakt deel uit van een uitpondproject.
Uitponden wil zeggen: het verkopen van een huurwoning die leegstaat.
Dus als een huurder vertrekt, kan de woningcorporatie ervoor kiezen de huurwoning te verkopen. Vanaf 2024 is het wettelijk verplicht deze woning met voorrangsregels toe te wijzen zodat er meer doorstroom komt binnen de huurmarkt in Wageningen.

Deze woning wordt volgens onderstaande volgorde aangeboden;

1. Huurders van Woningstichting Wageningen die een zelfstandige huurwoning achterlaten. De huidige huurwoning vrij moet komen voor verhuur. Gezinnen bestaande uit 3 of meer personen krijgen voorrang op een 2 persoonshuishouden. Huurders van Woningstichting Wageningen kunnen kopen tegen de vaste vraagprijs.
2. Inwoners van Wageningen die een zelfstandige huurwoning, niet zijnde van Woningstichting Wageningen, achterlaten. De huidige huurwoning moet vrijkomen voor verhuur. Gezinnen bestaande uit 3 of meer personen krijgen voorrang op een 2 persoonshuishouden. Verkoop vindt plaats tegen vaste vraagprijs.
3. Daarna wordt de woning opengesteld voor alle overige geïnteresseerden binnen en buiten Wageningen en vindt er verkoop plaats op basis van bieding.

Waar moet je als huurder van Woningstichting Wageningen aan voldoen?
• Je moet als huurder van Woningstichting Wageningen een zelfstandige woning die je momenteel huurt van Woningstichting Wageningen achterlaten.
• Dit geldt voor huurders van een eengezinswoning maar ook van een appartement van Woningstichting Wageningen.
Dit geldt niet voor een inwonende huurder. Woon je in een huurwoning van Woningstichting Wageningen maar ben je inwonend dan laat je dus geen woning achter en heb je géén voorrang maar kun je wel een afspraak plannen na de termijn van 4 weken.

Waar moet je als huurder van een huurwoning, niet zijnde verhuurd door Woningstichting Wageningen, aan voldoen?
• Je moet als huurder binnen Wageningen een zelfstandige woning die je momenteel huurt achterlaten.
• Dit geldt voor huurders van een eengezinswoning maar ook van een appartement.
Dit geldt niet voor een inwonende huurder. Woon je in een huurwoning van maar ben je inwonend en dan laat je dus geen woning achter dan heb je géén voorrang maar kun je wel een afspraak plannen na de termijn van 4 weken.

De termijn
Je kan als huurder van Woningstichting Wageningen, en je voldoet aan de genoemde criteria, tot uiterlijk 4 weken na de start verkoop profiteren van dit voordeel.
*** Deze termijn loopt af op 16 april 2025 ***
Daarna kunnen de overige geïnteresseerden die geen woning huren én achterlaten (van Woningstichting Wageningen of andere verhuurder in Wageningen) een bezichtigingsafspraak met de makelaar plannen. Definitieve verkoopgunning en toewijzing zal plaatsvinden door Woningstichting Wageningen en is afhankelijk van de huishoudsamenstelling en de woonduur van de huurder (van Woningstichting Wageningen of andere verhuurder in Wageningen).

Wat is je voordeel?
• Je hebt voorrang met het inplannen van een bezichtigingsafspraak die je maakt met de verkopend makelaar “Barten Tiemessen NVM Makelaars”;
• Zodra de termijn van 4 weken voorbij is, verloopt deze voorrang en kunnen de overige geïnteresseerden die geen woning huren én achterlaten van Woningstichting Wageningen een bezichtigingsafspraak plannen;
• Definitieve verkoopgunning en toewijzing zal plaatsvinden door Woningstichting Wageningen en is afhankelijk van de huishoudsamenstelling en de woonduur van de huurder van Woningstichting Wageningen.

——————————————————–

De woning maakt deel uit van het verkoopprogramma van Woningstichting Wageningen;
• Genoemde koopsom is een vaste prijs, onderhandelingen zijn derhalve niet mogelijk.
• In de koopovereenkomst wordt een zelfbewoningsplichtartikel opgenomen.
• De eigendomsoverdracht zal plaatsvinden bij projectnotaris: Smit & Moormann notariaat te Wageningen.
• Aanvaarding: uiterlijk 10 weken na mondelinge overeenstemming.

BELANGRIJKE CLAUSULES IN DE KOOPOVEREENKOMST:

• Artikel Zelfbewoningplicht en anti-speculatiebeding
1. Koper verplicht zich jegens Woningstichting Wageningen het Verkochte daadwerkelijk als hoofdbewoner te zullen bewonen. Hij verplicht zich het Verkochte niet aan derden te zullen vervreemden of te verhuren of anderszins in gebruik af te staan, een en ander behoudens het vermelde in de hierna volgende leden.
In dit artikel is bewoning door eerstegraads bloed- of aanverwanten van Koper materieel gelijkgesteld aan eigen bewoning.
Onder vervreemding wordt mede begrepen toedeling en de vestiging van een beperkt zakelijk gebruiksrecht.
2. Het bepaalde in lid 1 is niet van toepassing in geval van:
a. executoriale verkoop op grond van artikel 268 Boek 3 van het Burgerlijk Wetboek;
b. verkoop op grond van een machtiging van de rechter als bedoeld in artikel 174 Boek 3 van het Burgerlijk Wetboek;
c. schriftelijke ontheffing als bedoeld in lid 4 sub a.
3. Het bepaalde in lid 1 en 2 vervalt nadat Koper het Verkochte gedurende vijf (5) achtereenvolgende jaren heeft bewoond. Als maatstaf geldt hierbij de datum waarop en de tijd gedurende welke de Koper als bewoner van het desbetreffende adres in de Gemeentelijke Basis Administratie is ingeschreven.
4. a. Woningstichting Wageningen kan schriftelijk ontheffing verlenen van het bepaalde in dit artikel voor de vervreemding van het Verkochte.
b. De ontheffing tot vervreemding wordt steeds verleend in geval van:
1. verandering van werkkring van Koper op grond waarvan redelijkerwijs dient te worden verhuisd;
2. overlijden van Koper of diens echtgeno(o)t(e) of partner;
3. ontbinding van het huwelijk van Koper of ontbinding van een geregistreerd partnerschap;
4. verhuizing waartoe wordt genoodzaakt door gezondheid van Koper of één van zijn gezinsleden.
c. Ingeval van ontheffing door Woningstichting Wageningen zal de in lid 3 bedoelde termijn geacht worden door de nieuwe verkrijger te worden voortgezet.
5. Indien Koper ingeval van ontheffing door Woningstichting Wageningen tot gehele of gedeeltelijke vervreemding van het Verkochte overgaat ten behoeve van anderen dan Woningstichting Wageningen, is hij gehouden het bepaalde in dit artikel, alsmede het bepaalde in het onderhavige lid, aan zijn rechtsverkrijger(s) op te leggen en voor en ten behoeve van Woningstichting Wageningen te bedingen, bij gebreke waarvan hij een door Woningstichting Wageningen vast te stellen, voor matiging door de rechter vatbare, terstond opeisbare boete aan Woningstichting Wageningen verschuldigd zal zijn van maximaal éénhonderd procent (100%) van de prijs waarvoor hij het Verkochte van Woningstichting Wageningen heeft verkregen.
Deze verplichting eindigt indien en zodra de termijn als bedoeld in lid 3 is verstreken, waarna het artikel ‘zelfbewoning’ niet meer in opvolgende akten hoeft te worden opgenomen.

• Artikel Niet zelf-bewoningsclausule / Feitelijk gebruik:
Koper is ermee bekend dat verkoper het verkochte nooit zelf feitelijk heeft gebruikt en dat verkoper derhalve koper niet kan informeren over eigenschappen respectievelijk gebreken aan het verkochte waarvan verkoper op de hoogte zou kunnen zijn geweest als hij het verkochte zelf feitelijk had gebruikt. In verband hiermee zijn partijen, in afwijking van artikel 6.3. van deze koopakte en artikel 7:17 lid 1 en 2 BW, overeengekomen dat dergelijke eigenschappen respectievelijk gebreken voor rekening en risico van koper komen en dat hier bij de vaststelling van de koopsom rekening mee is gehouden. Koper vrijwaart verkoper voor alle eventuele aanspraken van derden.

• Artikel Ouderdomsclausule:
Het is koper bekend dat de onroerende zaak oorspronkelijk gebouwd is in 1957, hetgeen betekent dat de eisen die aan de bouwkwaliteit gesteld mogen worden aanzienlijk lager liggen dan bij nieuwe woningen. In afwijking van artikel 6.3. van deze koopakte en artikel 7:17 lid 1 en 2 BW komt het geheel of ten dele ontbreken van één of meer eigenschappen van de onroerende zaak voor normaal en bijzonder gebruik en het eventueel anderszins niet-beantwoorden van de zaak aan de overeenkomst voor rekening en risico van koper.

• Artikel Asbest:
In de onroerende zaak kunnen asbesthoudende stoffen/materialen aanwezig zijn. Indien deze worden verwijderd dienen door koper maatregelen en voorzieningen te worden getroffen die de wetgeving voorschrijft. Koper verklaart met deze wetgeving bekend te zijn en aanvaardt alle aansprakelijkheid en gevolgen die uit de aanwezigheid van asbest en/of de verwijdering van asbest uit de onroerende zaak kan voortvloeien. In afwijking van artikel 6.3. van deze koopakte en artikel 7:17 lid 1 en 2 BW komt het geheel of ten dele ontbreken van één of meer eigenschappen van de onroerende zaak voor normaal en bijzonder gebruik en het eventueel anderszins niet-beantwoorden van de zaak aan de overeenkomst als gevolg van de aanwezigheid van enig asbest in welke samenstelling en/of op welke plaats dan ook voor rekening en risico van koper. Bij het vaststellen van de koopsom is hier rekening mee gehouden. (Zie voorts asbestinventarisatie-rapport).

• Artikel Meetinstructies
De oppervlakte van de woning is opgemeten aan de hand van de (BBMI) Meetinstructie. Deze meetinstructie is een afgeleide van de NEN2580. De meetinstructie is bedoeld om een meer eenduidige manier van meten toe te passen voor het geven van een indicatie van de gebruikersoppervlakte. De meetinstructie sluit verschillen in meetuitkomsten niet volledig uit, door bijvoorbeeld interpretatieverschillen, afrondingen of beperkingen bij het uitvoeren van de meting. De oppervlakte is een indicatie en de juistheid ervan wordt niet gegarandeerd. Koper is in de gelegenheid gesteld de woning en het perceel na te meten.

• Disclaimer
Deze informatie is door ons met de nodige zorgvuldigheid samengesteld. Onzerzijds wordt echter geen enkele aansprakelijkheid aanvaard voor enige onvolledigheid, onjuistheid of anderszins, dan wel de gevolgen daarvan. Alle opgegeven maten en oppervlakten zijn indicatief.

• Koperonderzoeksplicht
Barten Tiemessen NVM Makelaars B.V. heeft de opdracht tot verkoop van het onderhavige object. Hoewel gestreefd is naar een zo nauwkeurig mogelijke inventarisatie van de beschikbare gegevens, moet er van uitgegaan worden dat het bovenstaande slechts indicatief is. De gegevens (bedragen, jaartallen, omschrijvingen etc) zijn soms verkregen door mondelinge informatie, soms zijn ze vanuit het geheugen opgediept. De koper heeft zijn eigen onderzoeksplicht naar alle zaken die voor hem van belang zijn en kan zich nimmer beroepen op onbekendheid met feiten die hij zelf had kunnen waarnemen of die kenbaar waren uit de openbare registers of die bekend zijn bij de administrateur van een Vereniging van Eigenaars.

Kenmerken

  • Status Verkocht
  • Vraagprijs € 375.000,- k.k.
  • Aanvaarding In overleg

Bouwvorm

  • Bouwvorm Bestaande bouw
  • Bouwjaar 1957
  • Ligging Aan rustige weg, in woonwijk

Indeling

  • Woonoppervlakte 93m2
  • Inhoud 376m3
  • Aantal kamers 5
  • Aantal woonlagen 3
  • Perceeloppervlakte 221m2

Energie

  • Energieklasse D
  • Energie einddatum 01-03-2035
  • Isolatie Dakisolatie, muurisolatie, dubbel glas, hr glas
  • Warmwater Cv ketel
  • Verwarming Cv ketel
  • Combiketel Ja
  • Brandstof Gas
  • Eigendom Eigendom

Buitenruimte

  • Tuin Achtertuin, voortuin, zijtuin
  • Hoofdtuin Achtertuin
  • Oppervlakte hoofdtuin 81m2 (9.0m bij 9.0m)
  • Ligging hoofdtuin Noordoost
  • Kwaliteit tuin Verzorgd

Bergruimte

  • Schuur / Berging

Parkeergelegenheid

  • Garage Geen garage

Brochure

close

Reageren op deze woning

Afspraak maken

    Jagerskamp 111, Wageningen

    Geïnteresseerd geraakt?

    Wacht niet langer en plan direct een bezichtiging met ons in. U kunt ons tijdens kantooruren bereiken op 0317 - 422600 of stuur een e-mail naar info@barten- tiemessen.nl

    reageer op deze woning