Wageningen

Herenstraat 45

€ 287.000,- k.k.

Omschrijving

Herenstraat 45. 6701 DH Wageningen Turn-key/instapklaar! Een compleet nieuw gebouwd en sfeervol ingericht Turn-key 2-kamerappartement met een stijlvolle en smaakvolle afwerking. De woning is smaakvol afgewerkt met oog voor detail en kwaliteit. Door de strakke afwerking en het volledig uitgevoerde schilderwerk is het appartement volledig gebruiksklaar waardoor klussen of verven...

lees verder

Kenmerken

  • Status Beschikbaar
  • Vraagprijs € 287.000,- k.k.
  • Bouwjaar 1950
  • Woonoppervlakte 42m²
  • Aantal kamers 2
Meer kenmerken

Omschrijving

Herenstraat 45. 6701 DH Wageningen

Turn-key/instapklaar!
Een compleet nieuw gebouwd en sfeervol ingericht Turn-key 2-kamerappartement met een stijlvolle en smaakvolle afwerking.
De woning is smaakvol afgewerkt met oog voor detail en kwaliteit.
Door de strakke afwerking en het volledig uitgevoerde schilderwerk is het appartement volledig gebruiksklaar waardoor klussen of verven niet meer nodig is.

De moderne keuken is uitgevoerd in een elegante taupe kleurstelling en vormt een echte blikvanger in de woonruimte.
De vloeren in het appartement zijn afgewerkt met een prachtige eikenlook PVC vloer die zorgt voor een warme en moderne uitstraling en tegelijkertijd duurzaam en onderhoudsvriendelijk is.
De badkamer/douchegelegenheid heeft een tijdloze en rustige uitstraling met zachte, harmonieuze kleuren.

De locatie is top! Dit appartement is ideaal voor wie wil genieten van het bruisende leven in de binnenstad.
Gelegen midden in de gezellige winkelstraat van Wageningen en op steenworp afstand van het marktplein met diverse restaurants en cafés. Ook culturele voorzieningen zoals de schouwburg en het centrale busstation bevinden zich binnen handbereik.

Het complex bestaat uit 6 appartementen die verdeeld zijn over 3 verdiepingen.
Op de begane grond bevindt zich een winkel-/verkoopruimte met horecabestemming.

De afgesloten entree is gesitueerd aan de Herenstraat en is voorzien van een trappenhuis.
Elk appartement heeft een intercom en een eigen brievenbus.
Op de 1e verdieping is er een gezamenlijk dakterras aanwezig waarvan de bewoners van de 6 appartementen (in onderling overleg) gebruik van kunnen maken.

Alle appartementen beschikken over een energielabel A en zijn voorzien van zonnepanelen hetgeen bijdraagt aan comfortabel en energiezuinig wonen.
In de onderbouw is de eigen berging aanwezig. Hier is tevens de eigen meterkast geplaatst.

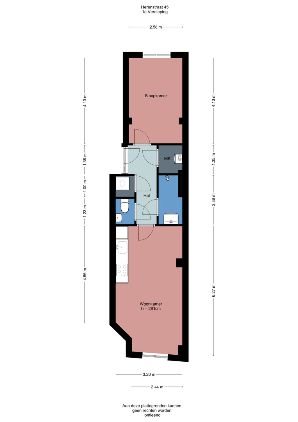
Herenstraat 45:
– Netto woonoppervlakte: ca. 42 m²
– Externe bergruimte: ca. 4 m²
– Inhoud: ca. 139 m³
– Energielabel: A
– Oorspronkelijk bouwjaar: 1950. Volledig vernieuwd en gerenoveerd in 2025/2026
– De geschatte servicekosten bedragen circa € 90,= per maand
– Ligging: op de 1e verdieping.
– Verwarming: elektrische verwarming;
– Warmwater voorziening: elektrische boiler (eigendom)

Indeling:
De entree is aan de Herenstraat.
Entree, hal, toilet met fontein, berging met aansluiting voor wasapparatuur, een separate bergkast met de elektrische boiler.
Luxe badkamer/douchegelegenheid met een wastafelmeubel, een spiegel, radiator en een inloopdouche, een lichte
woonkamer met zicht op de Hoogstraat, de hoofdwinkelstraat van Wageningen. De woonkamer is voorzien van een luxe uitgevoerde open keukenopstelling met een diverse inbouwapparatuur, te weten: inductiekookplaat, recirculatiekap, vaatwasser, koelkast en een oven. De tweepersoonsslaapkamer bevindt zich aan de achterzijde (aan de Herenstraat-zijde).

Kortom: een modern, stijlvol en instapklaar appartement op een levendige en centrale locatie in het hart van het centrum van Wageningen.

* EXTRA INFORMATIE*:

VVE:
De vermelde servicekosten voor dit appartement zijn richtbedragen.
Dit komt omdat het appartement zich in een recent gesplitst complex bevindt en de VvE (Vereniging van Eigenaars) nog in oprichting is. De definitieve servicekosten worden later – op basis van een definitieve begroting – vastgesteld, dus deze kunnen nog veranderen.

KOOPOVEREENKOMST & CLAUSULES:
In de koopovereenkomst worden extra clausules opgenomen zoals o.a.: ‘As is where is’, de ouderdomsclausule, de kopersonderzoeksplicht e.d.
* De eigendomsoverdracht dient plaats te vinden bij de vaste projectnotaris: Van Putten van Apeldoorn notarissen te Ede.
(de notariskosten voor de leveringsakte komen voor rekening van de koper)
* Aanvaarding: uiterlijk 10 weken na mondelinge overeenstemming.
* Koopovereenkomst volgens model koopovereenkomst voor een bestaand appartementsrecht.

* clausule: ouderdomsclausule
Het is koper bekend dat de onroerende zaak oorspronkelijk gebouwd is omstreeks 1950, hetgeen betekent dat de eisen die aan de bouwkwaliteit gesteld mogen worden aanzienlijk lager liggen dan bij nieuwe woningen. In afwijking van artikel 6.3. van deze koopakte en artikel 7:17 lid 1 en 2 BW komt het geheel of ten dele ontbreken van één of meer eigenschappen van de onroerende zaak voor normaal en bijzonder gebruik en het eventueel anderszins niet- beantwoorden van de zaak aan de overeenkomst voor rekening en risico van koper.

* clausule: ‘As is, where is’
Opleveringsniveau – feitelijke levering “As is, where is”:
Het verkochte wordt geleverd op basis van het principe “as is, where is”, dat wil zeggen in de feitelijke, juridische, technische en milieukundige staat ten tijde van levering, met alle daaraan verbonden zichtbare en onzichtbare gebreken, zonder enige garantie van verkoper, expliciet noch impliciet. Verkoper geeft geen garanties over onder meer: bouwkundige staat, installaties, aanwezigheid van asbest, verontreinigingen, (on)mogelijkheden tot herontwikkeling of gebruik, of bestaande rechten van derden.

* clausule: geen lijst van zaken:
Het is koper bekend dat er bij het hierbij verkochte registergoed geen lijst van zaken aanwezig is. Het registergoed wordt opgeleverd zoals men deze ten tijde van de bezichtiging heeft kunnen waarnemen inclusief de bestaande keuken en badkamerinrichting.

* clausule: asbest onbekend
6.4.3. Aan verkoper is niet bekend of/Aan koper is bekend dat* in de onroerende zaak asbest is verwerkt.
In aanvulling op dit artikel 6.4.3. is koper ermee bekend en aanvaardt hij dat de woning gebouwd is voor 1994 zodat het risico dat bestaat daarin asbest of asbesthoudende stoffen verwerkt zijn.

Indien asbesthoudende materialen (moeten) worden verwijderd, dan zal koper dat (laten) doen en dienen door koper maatregelen en voorzieningen te worden getroffen die de wetgeving voorschrijft. Koper verklaart met deze wetgeving bekend te zijn en aanvaardt alle aansprakelijkheid en gevolgen die uit de aanwezigheid van asbest en/of de verwijdering van asbest uit de onroerende zaak kan voortvloeien. Koper vrijwaart verkoper van alle mogelijke aanspraken ter zake.

* clausule: feitelijk gebruik
Koper is ermee bekend dat verkoper het verkochte nooit zelf feitelijk heeft gebruikt en dat verkoper derhalve koper niet kan informeren over eigenschappen respectievelijk gebreken aan het verkochte waarvan verkoper op de hoogte zou kunnen zijn geweest als hij het verkochte zelf feitelijk had gebruikt. In verband hiermee zijn partijen, in afwijking van artikel 6.3. van deze koopakte en artikel 7:17 lid 1 en 2 BW, overeengekomen dat dergelijke eigenschappen respectievelijk gebreken voor rekening en risico van koper komen en dat hier bij de vaststelling van de koopsom rekening mee is gehouden. Koper vrijwaart verkoper voor alle eventuele aanspraken van derden.

* clausule: meetinstructies
De oppervlakte van de woning is opgemeten aan de hand van de (BBMI) Meetinstructie. Deze meetinstructie is een afgeleide van de NEN2580. De meetinstructie is bedoeld om een meer eenduidige manier van meten toe te passen voor het geven van een indicatie van de gebruikersoppervlakte. De meetinstructie sluit verschillen in meetuitkomsten niet volledig uit, door bijvoorbeeld interpretatieverschillen, afrondingen of beperkingen bij het uitvoeren van de meting. De oppervlakte is een indicatie en de juistheid ervan wordt niet gegarandeerd. Koper is in de gelegenheid gesteld de woning en het perceel na te meten.

* clausule: kopersonderzoeksplicht
Barten Tiemessen NVM Makelaars B.V. heeft de opdracht tot verkoop van het onderhavige object. Hoewel gestreefd is naar een zo nauwkeurig mogelijke inventarisatie van de beschikbare gegevens, moet er van uitgegaan worden dat het bovenstaande slechts indicatief is. De gegevens (bedragen, jaartallen, omschrijvingen etc) zijn soms verkregen door mondelinge informatie, soms zijn ze vanuit het geheugen opgediept. De koper heeft zijn eigen onderzoeksplicht naar alle zaken die voor hem van belang zijn en kan zich nimmer beroepen op onbekendheid met feiten die hij zelf had kunnen waarnemen of die kenbaar waren uit de openbare registers. Desgewenst kan koper zich laten begeleiden door een adviseur of een bouwkundige bij de aankoop.

Disclaimer
Deze informatie is door ons met de nodige zorgvuldigheid samengesteld. Onzerzijds wordt echter geen enkele aansprakelijkheid aanvaard voor enige onvolledigheid, onjuistheid of anderszins, dan wel de gevolgen daarvan. Alle opgegeven maten en oppervlakten zijn indicatief.

Barten Tiemessen NVM Makelaars B.V. heeft de opdracht tot verkoop van het onderhavige object. Hoewel gestreefd is naar een zo nauwkeurig mogelijke inventarisatie van de beschikbare gegevens, moet er van uitgegaan worden dat het bovenstaande slechts indicatief is. De gegevens (bedragen, jaartallen, omschrijvingen etc) zijn soms verkregen door mondelinge informatie, soms zijn ze vanuit het geheugen opgediept. De koper heeft zijn eigen onderzoeksplicht naar alle zaken die voor hem van belang zijn en kan zich nimmer beroepen op onbekendheid met feiten die hij zelf had kunnen waarnemen of die kenbaar waren uit de openbare registers. Desgewenst kan koper zich laten begeleiden door een adviseur of een bouwkundige bij de aankoop.

Kenmerken

  • Status Beschikbaar
  • Vraagprijs € 287.000,- k.k.
  • Aanvaarding In overleg

Bouwvorm

  • Soort appartement Portiekflat
  • Bouwvorm Bestaande bouw
  • Bouwjaar 1950
  • Ligging In centrum

Indeling

  • Woonoppervlakte 42m2
  • Inhoud 139m3
  • Aantal kamers 2
  • Aantal woonlagen 1

Energie

  • Energieklasse A
  • Energie einddatum 11-13-2035
  • Isolatie Volledig geisoleerd
  • Warmwater Elektrische boiler eigendom
  • Verwarming Elektrische verwarming
  • Combiketel Ja

Buitenruimte

  • Tuin Geen tuin

Parkeergelegenheid

  • Garage Geen garage

Brochure

close

Reageren op deze woning

Afspraak maken

    Herenstraat 45, Wageningen

    Geïnteresseerd geraakt?

    Wacht niet langer en plan direct een bezichtiging met ons in. U kunt ons tijdens kantooruren bereiken op 0317 - 422600 of stuur een e-mail naar info@barten- tiemessen.nl

    reageer op deze woning