Verkocht Wageningen

Gruttoweide 97

€ 495.000,- k.k.

Omschrijving

Gruttoweide 97, 6708 BD te Wageningen Gelegen in de groene en kindvriendelijke wijk De Weiden, bevindt zich deze moderne en instapklare tussenwoning. De woning, gebouwd in 1978, combineert een praktische indeling met een verzorgde uitstraling en biedt met vier slaapkamers, een ruim dakterras en een fraai aangelegde tuin met sfeervolle...

lees verder

Kenmerken

  • Status Verkocht
  • Vraagprijs € 495.000,- k.k.
  • Bouwjaar 1978
  • Woonoppervlakte 132m²
  • Aantal kamers 6
Meer kenmerken

Omschrijving

Gruttoweide 97, 6708 BD te Wageningen

Gelegen in de groene en kindvriendelijke wijk De Weiden, bevindt zich deze moderne en instapklare tussenwoning. De woning, gebouwd in 1978, combineert een praktische indeling met een verzorgde uitstraling en biedt met vier slaapkamers, een ruim dakterras en een fraai aangelegde tuin met sfeervolle veranda volop ruimte en comfort voor het hele gezin.

De ligging is ideaal: op korte afstand vindt u scholen, winkels en sportvoorzieningen, terwijl het gezellige centrum van Wageningen met zijn terrassen, winkels en restaurants eenvoudig te bereiken is. Dankzij de goede aansluiting op de uitvalswegen A12, A30 en A50 bent u bovendien uitstekend verbonden met de omliggende steden.

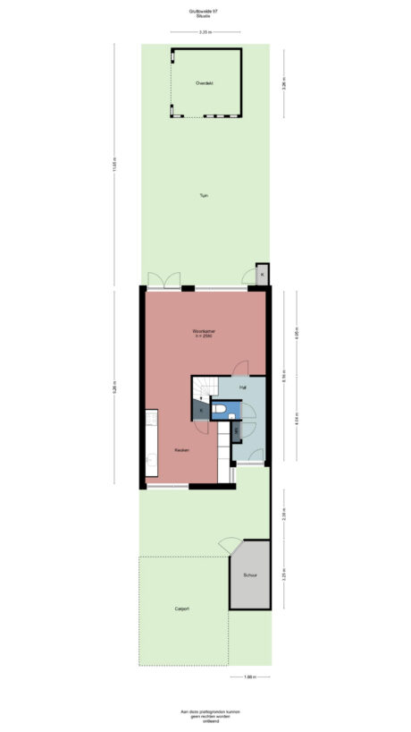
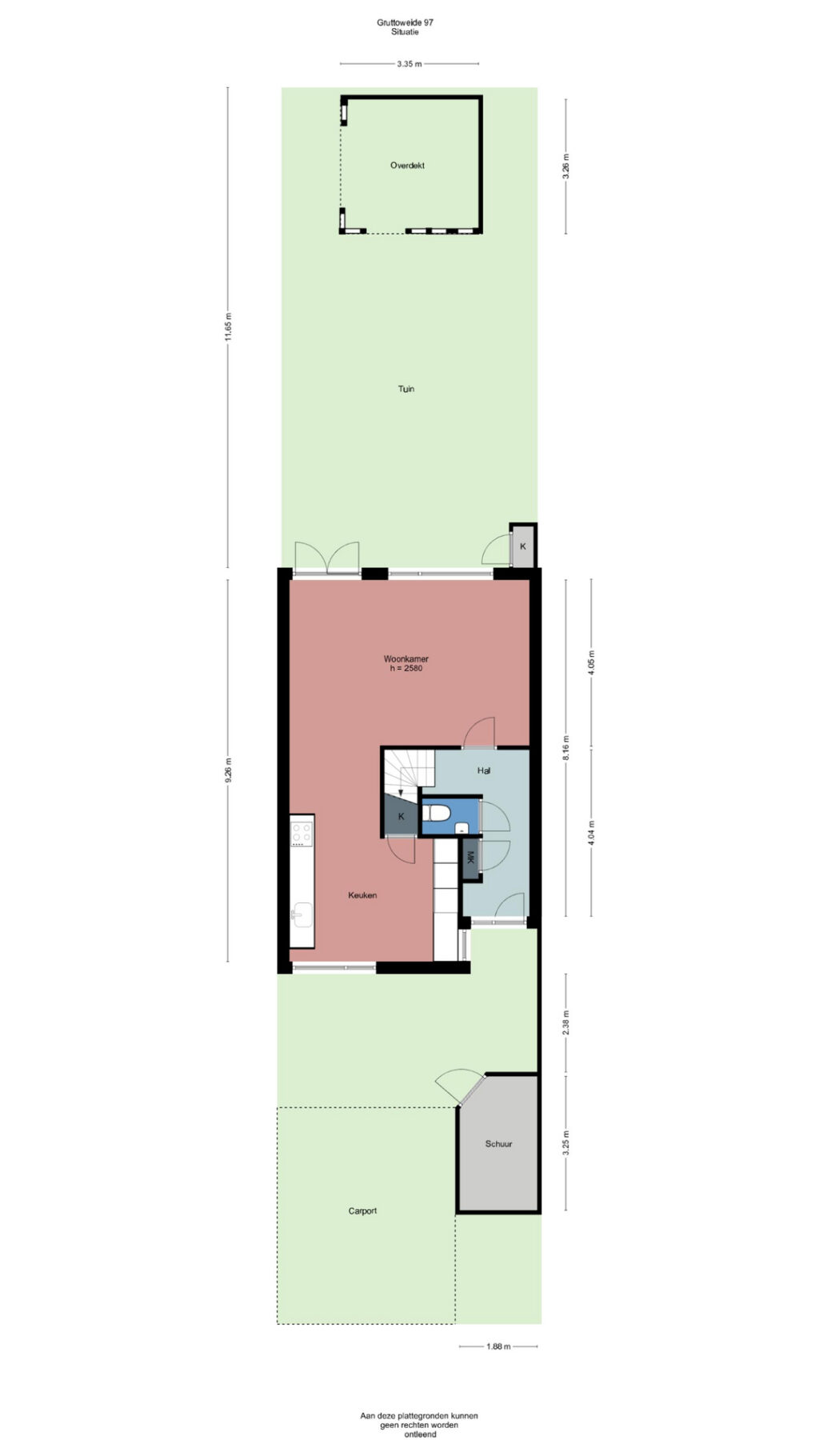
Perceeloppervlakte 172 m², Woonoppervlakte 132 m², Inhoud circa 467 m³ Energielabel B. Bouwjaar 1978

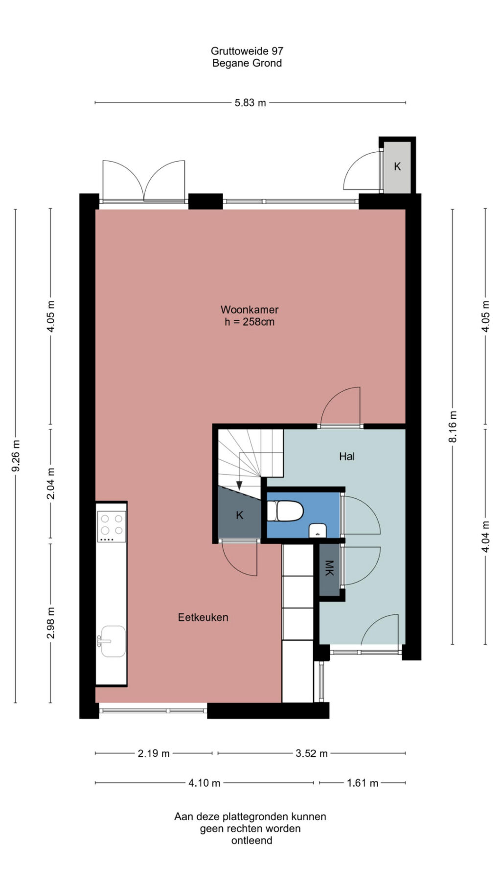
Indeling
Begane grond: Wanneer u de woning binnenstapt, komt u terecht in een hal met de trapopgang naar de eerste verdieping, de meterkast en een modern afgewerkte toiletruimte met fontein. Aan de voorzijde van de woning bevindt zich de open leefkeuken die in 2025 is vernieuwd. De keukenopstelling is verdeeld over twee wanden, wat niet alleen een ruimtelijk gevoel geeft, maar ook voldoende plaats biedt voor een eettafel. De keuken is uitgerust met diverse inbouwapparatuur, waaronder een kookplaat met geïntegreerd afzuigsysteem, oven, koel-vriescombinatie, vaatwasser en een Selsiuz heetwaterkraan.

De ruime woonkamer ligt aan de achterzijde van de woning en is heerlijk licht dankzij de grote raampartij. Via de openslaande deuren is de fraai aangelegde tuin bereikbaar, waardoor binnen en buiten mooi in elkaar overlopen.

Eerste verdieping:
Op deze verdieping bevinden zich drie (slaap-)kamers, die efficiënt zijn ingedeeld en daardoor optimaal benut kunnen worden. Twee (slaap-)kamers zijn voorzien van vaste kasten. De kamers beschikken over grote ramen die zorgen voor een prettige inval van daglicht. De in 2024 vernieuwde badkamer is voorzien van een inloopdouche met regendouche, wastafel met wastafelmeubel, ligbad en zwevend toilet.

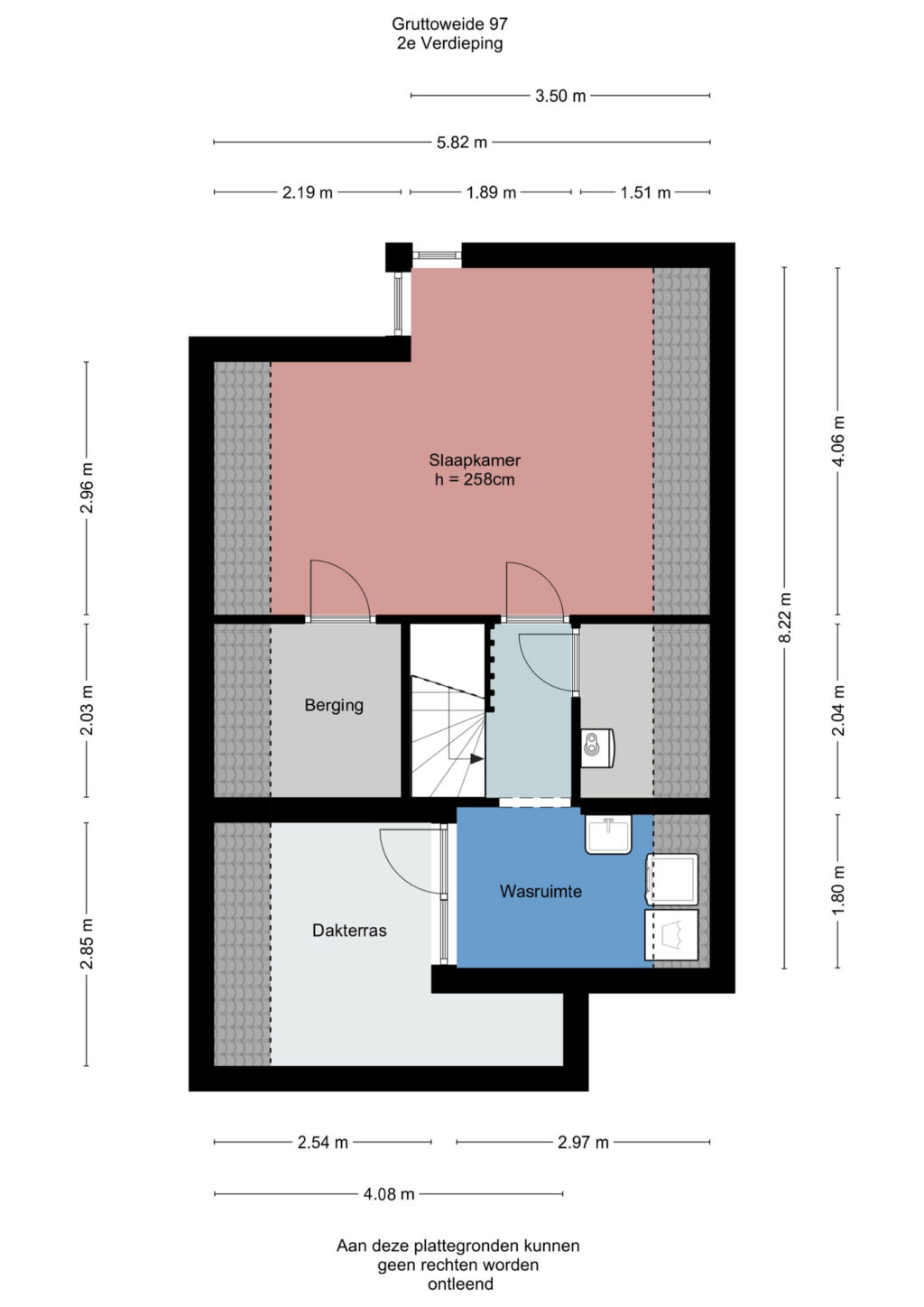
Tweede verdieping:
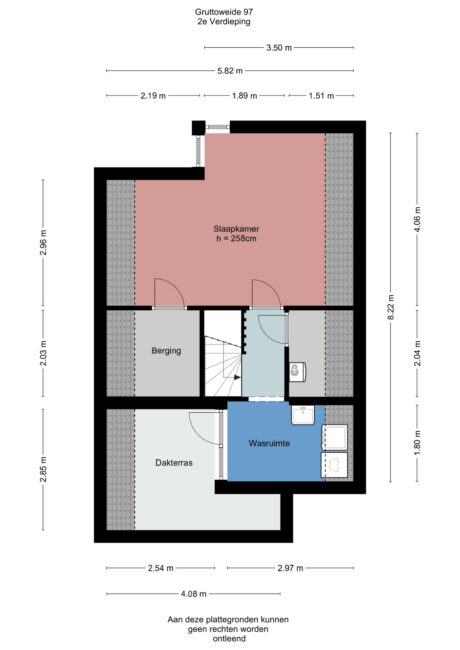
Op de tweede verdieping bevindt zich een vierde slaapkamer, die dankzij de ligging en indeling uitstekend te gebruiken is als slaap-, werk- of hobbykamer. Aangrenzend ligt een praktische berging, ideaal voor extra opbergruimte. Daarnaast is er een wasruimte, die direct toegang biedt tot het ruime dakterras. Het dakterras is een heerlijke plek om in alle rust van de zon te genieten. Ook is er op deze verdieping een aparte ruimte voor de cv-installatie.

Buitenruimte:
In de verzorgd aangelegde achtertuin is een mooie, gezellige overkapping gerealiseerd. De woning biedt aan de voorzijde uitzicht op een groen plantsoen en grenst aan de achterzijde aan een brede groenstrook.

Aan de voorzijde van de woning bevinden zich een aparte stenen berging en een carport.

Bijzonderheden:
– instapklare tussenwoning met vier slaapkamers;
– Moderne keuken vernieuwd in 2025;
– Moderne badkamer vernieuwd in 2024;
– Aparte stenen berging en carport;
– Rustige ligging met vrij uitzicht aan de voorzijde;
– De woning heeft zeven zonnepanelen;
– Gelegen in de groene en kindvriendelijke wijk De Weiden;
– Goede bereikbaarheid van uitvalswegen richting A12, A30 en A50;
– Energielabel B, geldig tot 10-10-2035;
– Aanvaarding in overleg.

* Disclaimer
Deze informatie is door ons met de nodige zorgvuldigheid samengesteld. Onzerzijds wordt echter geen enkele aansprakelijkheid aanvaard voor enige onvolledigheid, onjuistheid of anderszins, dan wel de gevolgen daarvan. Alle opgegeven maten en oppervlakten zijn indicatief.

* Koperonderzoeksplicht
Barten Tiemessen NVM Makelaars B.V. heeft de opdracht tot verkoop van het onderhavige object. Hoewel gestreefd is naar een zo nauwkeurig mogelijke inventarisatie van de beschikbare gegevens, moet er van uitgegaan worden dat het bovenstaande slechts indicatief is. De gegevens (bedragen, jaartallen, omschrijvingen etc) zijn soms verkregen door mondelinge informatie, soms zijn ze vanuit het geheugen opgediept. De koper heeft zijn eigen onderzoeksplicht naar alle zaken die voor hem van belang zijn en kan zich nimmer beroepen op onbekendheid met feiten die hij zelf had kunnen waarnemen of die kenbaar waren uit de openbare registers of die bekend zijn bij de administrateur van een Vereniging van Eigenaars. Desgewenst kan koper zich laten begeleiden door een adviseur of een bouwkundige bij de aankoop. Indien het object een appartementsrecht betreft, raden wij u aan, vóór de aankoop contact op te nemen met de administrateur van de Vereniging van Eigenaars, teneinde een zo goed mogelijk beeld te krijgen van de solvabiliteit van de vereniging.

Kenmerken

  • Status Verkocht
  • Vraagprijs € 495.000,- k.k.
  • Aanvaarding In overleg

Bouwvorm

  • Bouwvorm Bestaande bouw
  • Bouwjaar 1978
  • Ligging Aan rustige weg, in woonwijk

Indeling

  • Woonoppervlakte 132m2
  • Inhoud 467m3
  • Aantal kamers 6
  • Aantal woonlagen 3
  • Perceeloppervlakte 172m2

Energie

  • Energieklasse B
  • Energie einddatum 10-10-2035
  • Isolatie Dakisolatie, muurisolatie, dubbel glas
  • Warmwater Cv ketel
  • Verwarming Cv ketel
  • Bouwjaar C.V.-Ketel 2015
  • Combiketel Ja
  • Brandstof Gas
  • Eigendom Eigendom

Buitenruimte

  • Tuin Achtertuin, voortuin
  • Hoofdtuin Achtertuin
  • Oppervlakte hoofdtuin 60m2 (10.0m bij 6.0m)
  • Ligging hoofdtuin Noord

Bergruimte

  • Schuur / Berging

Parkeergelegenheid

  • Garage Carport

Brochure

close

Reageren op deze woning

Afspraak maken

    Gruttoweide 97, Wageningen

    Geïnteresseerd geraakt?

    Wacht niet langer en plan direct een bezichtiging met ons in. U kunt ons tijdens kantooruren bereiken op 0317 - 422600 of stuur een e-mail naar info@barten- tiemessen.nl

    reageer op deze woning