Verkocht onder voorbehoud Renkum

Groenendaalseweg 51

€ 595.000,- k.k.

Omschrijving

Groenendaalseweg 51, 6871 CN te Renkum Aan de rand van het natuurgebied Renkums Beekdal gelegen jaren '30 VRIJSTAAND WOONHUIS met vier slaapkamers, een lichte woon- en eetkamer, een keuken en een vrijstaande stenen berging. De woning is gelegen aan een rustige straat in een kindvriendelijke buurt, op loopafstand van zowel...

lees verder

Kenmerken

  • Status Onder voorbehoud verkocht
  • Vraagprijs € 595.000,- k.k.
  • Bouwjaar 1927
  • Woonoppervlakte 100m²
  • Aantal kamers 5
Meer kenmerken

Omschrijving

Groenendaalseweg 51, 6871 CN te Renkum

Aan de rand van het natuurgebied Renkums Beekdal gelegen jaren ’30 VRIJSTAAND WOONHUIS met vier slaapkamers, een lichte woon- en eetkamer, een keuken en een vrijstaande stenen berging. De woning is gelegen aan een rustige straat in een kindvriendelijke buurt, op loopafstand van zowel het centrum als de bossen van Oranje Nassau Oord.

Woonoppervlakte circa 100 m², inhoud circa 358 m³, bouwjaar 1927 en energielabel C.

Indeling
Begane grond:
Wanneer u de woning binnenstapt, komt u in de hal die toegang biedt tot de trapopgang naar de verdiepingen, de meterkast en een toiletruimte met fonteintje. Vanuit de hal bereikt u de woon- en eetkamer, een prettige en lichte ruimte dankzij de grote raampartijen. De karakteristieke houten, wit geschilderde balken en de glas-in-looddeur geven de woning extra sfeer en een authentieke uitstraling.

De keuken is voorzien van diverse inbouwapparatuur, te weten: een (inductie)fornuis, afzuigkap en vaatwasser. Aangrenzend bevindt zich de praktische bijkeuken met aansluitingen voor wasapparatuur en extra bergruimte.

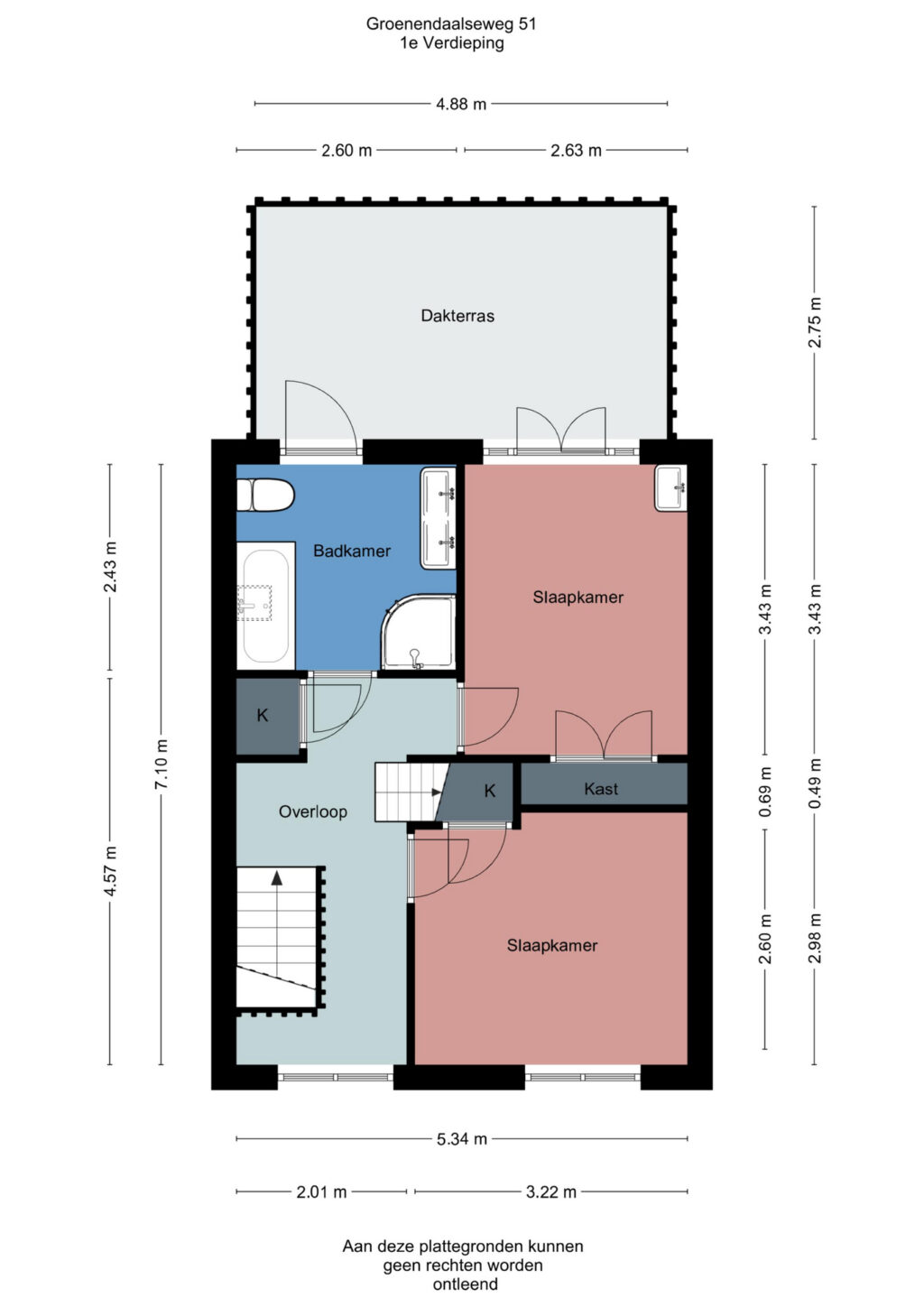
Eerste verdieping:
Via de overloop bereikt u twee slaapkamers, beide voorzien van vaste kasten. Eén van de slaapkamers grenst aan een ruim dakterras en is voorzien van een vaste wastafel.

De complete badkamer is ingericht met een ligbad, inloopdouche, een dubbele wastafel met wastafelmeubel en een toilet. Ook de badkamer grenst aan het dakterras; de deur kan worden geopend voor natuurlijke ventilatie en extra daglicht.

Tweede verdieping:
Op deze verdieping bevinden zich nog twee kamers, die uitstekend te gebruiken zijn als slaapkamers, werk- of hobbykamers. De dakramen zorgen voor natuurlijke lichtinval.

Daarnaast beschikt de woning over een kelder met stahoogte, ideaal voor extra opslag.

Tuin:
Rondom de woning ligt een groene en beschutte tuin, die diverse mogelijkheden biedt voor het creëren van een eetgedeelte, loungehoek of een plek voor ligbedden. In de tuin bevindt zich een vrijstaande stenen berging, geschikt voor het stallen van fietsen en tuingereedschap. Tevens is deze ruimte goed te gebruiken als thuiswerkplek of hobbyruimte. De berging beschikt over een praktische opbergvliering.

Bijzonderheden:
– Ligging op korte afstand van heringericht natuurgebied Renkumse Beek. Het natuurgebied vergoot het leefgebied van vogels, reptielen en insecten. U kunt er prachtig wandelen en genieten van het mooie landschap;
– Rustige en kindvriendelijke woonomgeving;
– Lichte woning;
– De woonkamer is voorzien van een massief houten vloer;
– Vier slaapkamers;
– Stenen berging voor opslag of hobbykamer;
– 14 zonnepanelen;
– Woning beschikt over een hybridewarmtepomp;
– Er is bodemisolatie aanwezig;
– Energielabel C, geldig tot 23-10-2033;
– Kortom een leuk en goed onderhouden vrijstaande woning op een mooie locatie aan de rand van het natuurgebied Renkums Beekdal en op fietsafstand van het centrum van Wageningen.

Aanvaarding in overleg.

* Disclaimer
Deze informatie is door ons met de nodige zorgvuldigheid samengesteld. Onzerzijds wordt echter geen enkele aansprakelijkheid aanvaard voor enige onvolledigheid, onjuistheid of anderszins, dan wel de gevolgen daarvan. Alle opgegeven maten en oppervlakten zijn indicatief.

* Koperonderzoeksplicht
Barten Tiemessen NVM Makelaars B.V. heeft de opdracht tot verkoop van het onderhavige object. Hoewel gestreefd is naar een zo nauwkeurig mogelijke inventarisatie van de beschikbare gegevens, moet er van uitgegaan worden dat het bovenstaande slechts indicatief is. De gegevens (bedragen, jaartallen, omschrijvingen etc) zijn soms verkregen door mondelinge informatie, soms zijn ze vanuit het geheugen opgediept. De koper heeft zijn eigen onderzoeksplicht naar alle zaken die voor hem van belang zijn en kan zich nimmer beroepen op onbekendheid met feiten die hij zelf had kunnen waarnemen of die kenbaar waren uit de openbare registers. Desgewenst kan koper zich laten begeleiden door een adviseur of een bouwkundige bij de aankoop.

Kenmerken

  • Status Onder voorbehoud verkocht
  • Vraagprijs € 595.000,- k.k.
  • Aanvaarding In overleg

Bouwvorm

  • Bouwvorm Bestaande bouw
  • Bouwjaar 1927
  • Ligging Aan rustige weg, in woonwijk

Indeling

  • Woonoppervlakte 100m2
  • Inhoud 358m3
  • Aantal kamers 5
  • Aantal woonlagen 4
  • Perceeloppervlakte 270m2

Energie

  • Energieklasse C
  • Energie einddatum 10-23-2033
  • Isolatie Dakisolatie, muurisolatie, dubbel glas
  • Warmwater Cv ketel
  • Verwarming Cv ketel, warmtepomp, houtkachel
  • Bouwjaar C.V.-Ketel 2023
  • Combiketel Nee
  • Brandstof Gas
  • Eigendom Eigendom

Buitenruimte

  • Tuin Tuin rondom
  • Hoofdtuin Tuin rondom

Bergruimte

  • Schuur / Berging

Parkeergelegenheid

  • Garage Geen garage

Brochure

close

Reageren op deze woning

Afspraak maken

    Groenendaalseweg 51, Renkum

    Geïnteresseerd geraakt?

    Wacht niet langer en plan direct een bezichtiging met ons in. U kunt ons tijdens kantooruren bereiken op 0317 - 422600 of stuur een e-mail naar info@barten- tiemessen.nl

    reageer op deze woning