Verkocht onder voorbehoud Wageningen

Gerdesstraat 23

€ 285.000,- k.k.

Omschrijving

Gerdesstraat 23, 6701 AE te Wageningen Op een leuke locatie aan de rand van het gezellige stadscentrum van Wageningen ligt dit ruime VIERKAMERAPPARTEMENT met balkon en separate BERGING op de eerste verdieping. Het appartement beschikt over drie slaapkamers, een woonkamer, een eetkeuken, een badkamer en balkon. Het appartement is bereikbaar...

lees verder

Kenmerken

  • Status Onder voorbehoud verkocht
  • Vraagprijs € 285.000,- k.k.
  • Bouwjaar 1963
  • Woonoppervlakte 77m²
  • Aantal kamers 4
Meer kenmerken

Omschrijving

Gerdesstraat 23, 6701 AE te Wageningen

Op een leuke locatie aan de rand van het gezellige stadscentrum van Wageningen ligt dit ruime VIERKAMERAPPARTEMENT met balkon en separate BERGING op de eerste verdieping. Het appartement beschikt over drie slaapkamers, een woonkamer, een eetkeuken, een badkamer en balkon.

Het appartement is bereikbaar via een net trappenhuis, en vanaf de eerste woonlaag is er een lift aanwezig.
Bezoekers kunnen zich beneden melden via de intercominstallatie.

Alle benodigde voorzieningen bevinden zich letterlijk op loopafstand zoals o.a. twee grote supermarkten, winkels, theater “Junushoff”, uitgaansgelegenheden en diverse restaurants. Vanuit het appartementencomplex loop je zo het busstation op, dat als centrale opstapplek dient voor openbaar vervoer in alle richtingen.

Netto woonoppervlakte: ca. 77 m², bouwkundige inhoud: ca. 245 m³, bouwjaar: 1963.

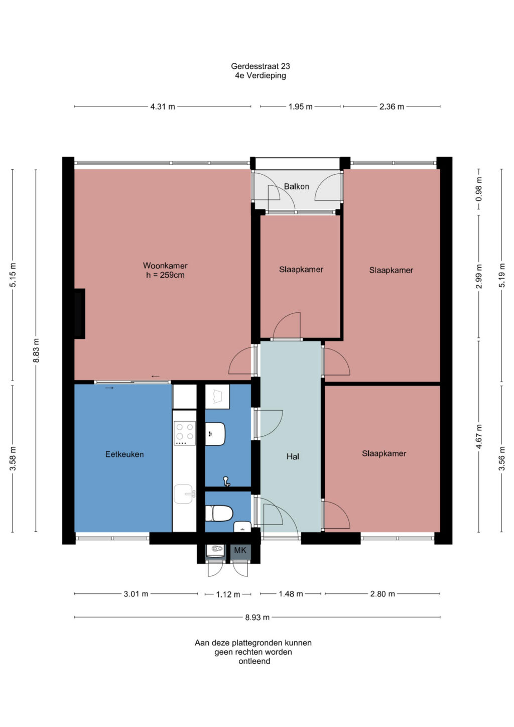
Indeling:
Via de entree komt u in de hal, waar zich het toilet met fonteintje bevindt. Vanuit de hal heeft u toegang tot de lichte woonkamer, die dankzij de grote raampartijen prettig veel daglicht ontvangt. Vanuit de woonkamer is er toegang tot het balkon.

De eetkeuken grenst aan de woonkamer en biedt een prettige ruimte om te koken en te dineren. De keuken is voorzien van diverse apparatuur, waaronder een kookplaat, afzuigkap, koelkast en vriezer. De betegelde badkamer beschikt over een douche, wastafel en aansluitingen voor wasapparatuur.

Het appartement beschikt over drie slaapkamers, waarvan twee slaapkamers toegang bieden tot het balkon en over een eigen berging op de eerste verdieping.

Bijzonderheden:
– Het betreft een ruim appartement met drie slaapkamers;
– Een eigen berging gelegen op de eerste verdieping;
– Gelegen op loopafstand van het centrum en alle voorzieningen;
– Verzorgd appartementencomplex met liftinstallatie;
– Servicekosten bedragen € 208,65 per maand (woning + berging);
– Energielabel C, geldig tot 13-06-2032;

Aanvaarding in overleg.

Disclaimer:
Deze informatie is door ons met de nodige zorgvuldigheid samengesteld. Onzerzijds wordt echter geen enkele aansprakelijkheid aanvaard voor enige onvolledigheid, onjuistheid of anderszins, dan wel de gevolgen daarvan. Alle opgegeven maten en oppervlakten zijn indicatief.

* Koperonderzoeksplicht:
Barten Tiemessen NVM Makelaars B.V. heeft de opdracht tot verkoop van het onderhavige object. Hoewel gestreefd is naar een zo nauwkeurig mogelijke inventarisatie van de beschikbare gegevens, moet er van uitgegaan worden dat het bovenstaande slechts indicatief is. De gegevens (bedragen, jaartallen, omschrijvingen etc) zijn soms verkregen door mondelinge informatie, soms zijn ze vanuit het geheugen opgediept. De koper heeft zijn eigen onderzoeksplicht naar alle zaken die voor hem van belang zijn en kan zich nimmer beroepen op onbekendheid met feiten die hij zelf had kunnen waarnemen of die kenbaar waren uit de openbare registers of die bekend zijn bij de administrateur van een Vereniging van Eigenaars. Desgewenst kan koper zich laten begeleiden door een adviseur of een bouwkundige bij de aankoop. Indien het object een appartementsrecht betreft, raden wij u aan, vóór de aankoop contact op te nemen met de administrateur van de Vereniging van Eigenaars, teneinde een zo goed mogelijk beeld te krijgen van de solvabiliteit van de vereniging.

* Ouderdomsclausule
Het is koper bekend dat de onroerende zaak oorspronkelijk gebouwd is in 1961, hetgeen betekent dat de eisen die aan de bouwkwaliteit gesteld mogen worden aanzienlijk lager liggen dan bij nieuwe woningen. In afwijking van artikel 6.3. van deze koopakte en artikel 7:17 lid 1 en 2 BW komt het geheel of ten dele ontbreken van één of meer eigenschappen van de onroerende zaak voor normaal en bijzonder gebruik en het eventueel anderszins niet-beantwoorden van de zaak aan de overeenkomst voor rekening en risico van koper.

* Niet zelf-bewoningsclausule / Feitelijk gebruik
Koper is ermee bekend dat verkoper het verkochte nooit zelf feitelijk heeft gebruikt en dat verkoper derhalve koper niet kan informeren over eigenschappen respectievelijk gebreken aan het verkochte waarvan verkoper op de hoogte zou kunnen zijn geweest als hij het verkochte zelf feitelijk had gebruikt. In verband hiermee zijn partijen, in afwijking van artikel 6.3. van deze koopakte en artikel 7:17 lid 1 en 2 BW, overeengekomen dat dergelijke eigenschappen respectievelijk gebreken voor rekening en risico van koper komen en dat hier bij de vaststelling van de koopsom rekening mee is gehouden. Koper vrijwaart verkoper voor alle eventuele aanspraken van derden.

* Opkoopbescherming:
Per 17 februari 2022 voert de gemeente Wageningen een opkoopbescherming in. Dit betekent dat een woning niet mag worden gekocht om daarna te verhuren. Wie de woning koopt, moet hier in principe zelf in gaan wonen (zelfbewoningsplicht). De opkoopbescherming geldt niet voor alle wijken in Wageningen en ook niet voor alle prijsklassen. Het geldt alleen voor huizen met een WOZ-waarde tot € 355.000 in de wijken: Binnenstad/Centrum, Boven- en Benedenbuurt, De Buurt-West en Nude.

De landelijke Opkoopwet verplicht gemeenten een aantal uitzonderingen te maken. Deze maken het toch mogelijk de koopwoning te verhuren. Deze uitzonderingen zijn:

– Verhuur aan 1e of 2e graad familieleden. Bijvoorbeeld uw zoon of dochter. Of broer of kleinkind.
– Verhuur voor maximaal 1 jaar als u zelf al 12 maanden of langer in de woning woont. Bijvoorbeeld als u een jaar naar het buitenland gaat.
– Verhuur van woonruimte die zich bevindt in een winkel, kantoor of bedrijfsruimte.

Als uw situatie zo’n uitzondering is, kunt u via deze website van de gemeente Wageningen een vergunning aanvragen. (vergunning tijdelijke verhuur van woning (opkoopwet) aanvragen).
Wij verwijzen u naar de website van de gemeente Wageningen voor meer informatie.

Kenmerken

  • Status Onder voorbehoud verkocht
  • Vraagprijs € 285.000,- k.k.
  • Aanvaarding In overleg

Bouwvorm

  • Soort appartement Galerijflat
  • Bouwvorm Bestaande bouw
  • Bouwjaar 1963
  • Ligging In centrum, vrij uitzicht

Indeling

  • Woonoppervlakte 77m2
  • Inhoud 245m3
  • Aantal kamers 4
  • Aantal woonlagen 1

Energie

  • Energieklasse C
  • Energie einddatum 06-13-2032
  • Isolatie Dubbel glas
  • Warmwater Cv ketel
  • Verwarming Cv ketel
  • Combiketel Ja
  • Brandstof Gas

Buitenruimte

  • Tuin Geen tuin

Bergruimte

  • Schuur / Berging

Parkeergelegenheid

  • Garage Geen garage

Brochure

close

Reageren op deze woning

Afspraak maken

    Gerdesstraat 23, Wageningen

    Geïnteresseerd geraakt?

    Wacht niet langer en plan direct een bezichtiging met ons in. U kunt ons tijdens kantooruren bereiken op 0317 - 422600 of stuur een e-mail naar info@barten- tiemessen.nl

    reageer op deze woning