Verkocht onder voorbehoud Wageningen

Dolderstraat 10

€ 619.000,- k.k.

Omschrijving

Dolderstraat 10, 6706 JE Wageningen; Deze in een aantrekkelijke woonomgeving met veel groen, nabij uitvalswegen en het centrum van Wageningen gelegen uitgebouwde HALFVRIJSTAANDE jaren dertig woning ligt op een royaal perceel van 370 m² met parkeerplaats op eigen terrein en is voorzien van een stenen berging en een veranda. De...

lees verder

Kenmerken

  • Status Onder voorbehoud verkocht
  • Vraagprijs € 619.000,- k.k.
  • Bouwjaar 1934
  • Woonoppervlakte 109m²
  • Aantal kamers 4
Meer kenmerken

Omschrijving

Dolderstraat 10, 6706 JE Wageningen;

Deze in een aantrekkelijke woonomgeving met veel groen, nabij uitvalswegen en het centrum van Wageningen gelegen uitgebouwde HALFVRIJSTAANDE jaren dertig woning ligt op een royaal perceel van 370 m² met parkeerplaats op eigen terrein en is voorzien van een stenen berging en een veranda. De woning is rustig gelegen op loopafstand van het bos en landelijk gebied “De Wageningse Eng”. In de nabijheid zijn diverse scholen en uitvalswegen richting de A-12 en A-50.

Er is een mogelijkheid tot het creëren van een slaap/- werkkamer met badkamer op de begane grond.

Bouwjaar: 1934, perceel oppervlakte: 370 m2, woonoppervlakte: circa 109 m2, inhoud: circa 443 m3.

Indeling:
Begane grond: entree, hal met trapopgang naar de eerste verdieping, toilet en een ruime kelder. Vanuit de hal toegang tot de ruime uitgebouwde woonkamer voorzien van een parketvloer, houtkachel en openslaande deuren naar de achtertuin gesitueerd op het zuiden, dichte keuken voorzien van een rechte keukenopstelling met inbouwapparatuur te weten: een 5 pits gaskookplaat, oven, vaatwasser, koelkast en afzuigkap. Vanuit de keuken toegang tot de bijkeuken voorzien van vaste bergkasten, aansluiting voor wasapparatuur en een loopdeur naar de achtertuin. Het zonnige terras aan de achterzijde is uitgerust met een veranda – de perfecte plek om te barbecueën tijdens lange zomeravonden.

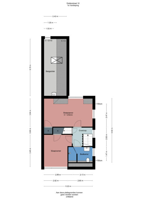
Eerste verdieping: overloop, twee ruime slaapkamers beide voorzien van een vaste kast, airco, laminaatvloer en dakkapel. Badkamer voorzien van wastafelmeubel, inloopdouche en een tweede toilet.

Tweede verdieping: Zolderruimte met een derde slaap/- werkkamer voorzien van een laminaatvloer, airco en twee dakramen.

Bijzonderheden:
– Ruime jaren dertig woning, in 2017 volledig gerenoveerd;
– Gelegen op een royaal perceel van 370 m2;
– De diepe en zonnige achtertuin ligt heerlijk op het zuiden met veranda;
– Vergunningsvrij openbaar parkeren alsmede parkeergelegenheid op eigen terrein;
– Verwarming en warm watervoorziening middels een C.V.-gas combiketel, merk: Nefit, bouwjaar: 2017;
– Gelegen in nabijheid van de uitvalswegen, scholen, in een groene omgeving en op loopafstand van het bos en landelijk gebied “De Wageningse Eng”.

Aanvaarding in overleg.

* Disclaimer
Deze informatie is door ons met de nodige zorgvuldigheid samengesteld. Onzerzijds wordt echter geen enkele aansprakelijkheid aanvaard voor enige onvolledigheid, onjuistheid of anderszins, dan wel de gevolgen daarvan. Alle opgegeven maten en oppervlakten zijn indicatief.

* Koperonderzoeksplicht
Barten Tiemessen NVM Makelaars B.V. heeft de opdracht tot verkoop van het onderhavige object. Hoewel gestreefd is naar een zo nauwkeurig mogelijke inventarisatie van de beschikbare gegevens, moet er van uitgegaan worden dat het bovenstaande slechts indicatief is. De gegevens (bedragen, jaartallen, omschrijvingen etc.) zijn soms verkregen door mondelinge informatie, soms zijn ze vanuit het geheugen opgediept. De koper heeft zijn eigen onderzoeksplicht naar alle zaken die voor hem van belang zijn en kan zich nimmer beroepen op onbekendheid met feiten die hij zelf had kunnen waarnemen of die kenbaar waren uit de openbare registers. Desgewenst kan koper zich laten begeleiden door een adviseur of een bouwkundige bij de aankoop.

Kenmerken

  • Status Onder voorbehoud verkocht
  • Vraagprijs € 619.000,- k.k.
  • Aanvaarding In overleg

Bouwvorm

  • Bouwvorm Bestaande bouw
  • Bouwjaar 1934
  • Ligging In woonwijk

Indeling

  • Woonoppervlakte 109m2
  • Inhoud 482m3
  • Aantal kamers 4
  • Aantal woonlagen 3
  • Perceeloppervlakte 386m2

Energie

  • Energieklasse C
  • Energie einddatum 06-26-2035
  • Isolatie Dakisolatie, vloerisolatie, dubbel glas
  • Warmwater Cv ketel
  • Verwarming Cv ketel
  • Bouwjaar C.V.-Ketel 2017
  • Combiketel Ja
  • Brandstof Gas
  • Eigendom Eigendom

Buitenruimte

  • Tuin Achtertuin, voortuin, zijtuin

Parkeergelegenheid

  • Garage Geen garage

Brochure

close

Reageren op deze woning

Afspraak maken

    Dolderstraat 10, Wageningen

    Geïnteresseerd geraakt?

    Wacht niet langer en plan direct een bezichtiging met ons in. U kunt ons tijdens kantooruren bereiken op 0317 - 422600 of stuur een e-mail naar info@barten- tiemessen.nl

    reageer op deze woning