Verkocht onder voorbehoud Wageningen

Diedenweg 5

€ 675.000,- k.k.

Omschrijving

Diedenweg 5, 6703 GR Wageningen; Deze charmante twee-onder-een-kapwoning is gelegen bovenaan aan de Diedenweg. Een prachtige weg met karakteristieke woningen en perfect gelegen voor natuurliefhebbers. Zo ligt het arboretumpark Belmonte met haar botanische tuinen en vergezichten over de Nederrijn, de uitgestrekte bossen en de Wageningse Eng op wandelafstand. Het stadscentrum...

lees verder

Kenmerken

  • Status Onder voorbehoud verkocht
  • Vraagprijs € 675.000,- k.k.
  • Bouwjaar 1947
  • Woonoppervlakte 134m²
  • Aantal kamers 6
Meer kenmerken

Omschrijving

Diedenweg 5, 6703 GR Wageningen;

Deze charmante twee-onder-een-kapwoning is gelegen bovenaan aan de Diedenweg.
Een prachtige weg met karakteristieke woningen en perfect gelegen voor natuurliefhebbers. Zo ligt het arboretumpark Belmonte met haar botanische tuinen en vergezichten over de Nederrijn, de uitgestrekte bossen en de Wageningse Eng op wandelafstand. Het stadscentrum is ook nabij gelegen en zowel per fiets als lopend goed te bereiken.

De gevel valt direct op door de elegante licht geboogde ramen. De vele ramen met roedeverdeling geven de woning een eigen identiteit. De voortuin, met veel groen, zorgt voor een prettige en rustige sfeer die je meteen verwelkomt. Binnen gaat de warme sfeer moeiteloos verder door de aanwezigheid van vele paneeldeuren en de vaste inbouwkasten.

De woning is voorzien van een diepe achtertuin van maar liefst 18 meter en is gesitueerd op het zuidwesten.
Hierdoor komt de zon iedere middag en avond op haar mooiste. De authentieke perenboom staat trots in het midden van de tuin. Een vrijstaande stenen berging is in de achtertuin aanwezig

Netto woonoppervlakte: ca. 134 m², overige inpandige ruimte: ca. 10 m², bouwkundige inhoud: ca. 509 m³, perceeloppervlakte: 375 m², bouwjaar: 1947.

Indeling:
Begane grond: entree, hal, royale woonkamer met aan de voorzijde de riante licht geboogde ramen waardoor en veel lichtinval aanwezig is en een extra zijraam. De eetkamer bevindt zich aan de achterzijde en is voorzien van een groot raampartij met een tuindeur die toegang geeft tot het terras in de achtertuin.

De hal heeft een kelder op stahoogte (ca. 9 m²). Toilet met fontein en een dichte keuken voorzien van een achterdeur.

1e verdieping: overloop, slaapkamer 1 (ca 8,5 m²), slaapkamer 2 (ca. 15 m²) met twee praktische inbouwkasten, slaapkamer 3 (ca. 10 m²) met twee praktische inbouwkasten, badkamer voorzien een douchehoek, 2e toilet, wastafel en deur naar een ruim balkon aan de achterzijde van het woonhuis.

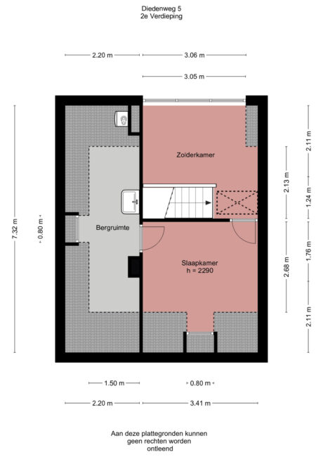
2e verdieping: via een vaste trap is zolderverdieping te bereiken.
Werkkamer met een grote dakkapel, slaapkamer 4 (ca. 9 m²) met een dakkapel.
Via deze slaapkamer is ook de bergruimte met dakkapel te betreden met de opstelling van de C.V.-gas combiketel en een wastafel.

Er is nog een extra bergvliering aanwezig die via een vlizotrap is te bereiken.

Bijzonderheden:
– Isolatie voorzieningen: muur- en dakisolatie:
– Beglazing: grotendeels dubbele beglazing (behoudens kelderraam, toiletraam en voordeur);
– Verwarming en warmwatervoorziening: via een C.V.-gas combiketel, Remeha Avanta, bouwjaar: ca. 2010;
– De houten buitenkozijnen zijn in 1e kwartaal 2025 geschilderd;
– Glasvezel internet aanwezig;
– Extra provisieruimte in de kelder;
– Zolder met extra bergvliering;
– Mooie karakteristieke details zijn aanwezig zoals: licht geboogde ramen, roedeverdeling in de ramen, paneeldeuren;
– Een heerlijke diepe achtertuin op het zuidwesten van ca. 18 meter diepte;
– Een prachtige locatie bovenaan de Wageningse Berg;
– Prachtig wandelgebied en bosrijke omgeving is binnen handbereik.

DISCLAIMER:
* Deze informatie is door ons met de nodige zorgvuldigheid samengesteld. Onzerzijds wordt echter geen enkele aansprakelijkheid aanvaard voor enige onvolledigheid, onjuistheid of anderszins, dan wel de gevolgen daarvan. Alle opgegeven maten en oppervlakten zijn indicatief.

* Barten Tiemessen NVM Makelaars B.V. heeft de opdracht tot verkoop van het onderhavige object. Hoewel gestreefd is naar een zo nauwkeurig mogelijke inventarisatie van de beschikbare gegevens, moet er van uitgegaan worden dat het bovenstaande slechts indicatief is. De gegevens (bedragen, jaartallen, omschrijvingen etc) zijn soms verkregen door mondelinge informatie, soms zijn ze vanuit het geheugen opgediept. De koper heeft zijn eigen onderzoeksplicht naar alle zaken die voor hem van belang zijn en kan zich nimmer beroepen op onbekendheid met feiten die hij zelf had kunnen waarnemen of die kenbaar waren uit de openbare registers. Desgewenst kan koper zich laten begeleiden door een adviseur of een bouwkundige bij de aankoop.

Kenmerken

  • Status Onder voorbehoud verkocht
  • Vraagprijs € 675.000,- k.k.
  • Aanvaarding In overleg

Bouwvorm

  • Bouwvorm Bestaande bouw
  • Bouwjaar 1947
  • Ligging In woonwijk

Indeling

  • Woonoppervlakte 134m2
  • Inhoud 509m3
  • Aantal kamers 6
  • Aantal woonlagen 3
  • Perceeloppervlakte 375m2

Energie

  • Energieklasse C
  • Energie einddatum 09-19-2034
  • Isolatie Dakisolatie, muurisolatie, grotendeels dubbelglas
  • Warmwater Cv ketel
  • Verwarming Cv ketel
  • Bouwjaar C.V.-Ketel 2011
  • Combiketel Ja
  • Brandstof Gas
  • Eigendom Eigendom

Buitenruimte

  • Tuin Achtertuin, voortuin, zijtuin
  • Hoofdtuin Achtertuin
  • Oppervlakte hoofdtuin 198m2 (18.0m bij 11.0m)
  • Ligging hoofdtuin Zuidwest
  • Kwaliteit tuin Verzorgd

Parkeergelegenheid

  • Garage Geen garage

Brochure

close

Reageren op deze woning

Afspraak maken

    Diedenweg 5, Wageningen

    Geïnteresseerd geraakt?

    Wacht niet langer en plan direct een bezichtiging met ons in. U kunt ons tijdens kantooruren bereiken op 0317 - 422600 of stuur een e-mail naar info@barten- tiemessen.nl

    reageer op deze woning