Verkocht onder voorbehoud Ede

Braambeshof 32

€ 585.000,- k.k.

Omschrijving

Braambeshof 32, 6711 WJ te Ede Aan de rand van het bos, in de groene wijk De Gelderse Stadstuin, staat deze moderne en duurzame tussenwoning (bouwjaar 2024). De woning is uitgerust met een warmtepomp, 12 zonnepanelen en volledige vloerverwarming en beschikt daarmee over energielabel A+++. Instapklaar, comfortabel en helemaal klaar...

lees verder

Kenmerken

  • Status Onder voorbehoud verkocht
  • Vraagprijs € 585.000,- k.k.
  • Bouwjaar 2024
  • Woonoppervlakte 104m²
  • Aantal kamers 4
Meer kenmerken

Omschrijving

Braambeshof 32, 6711 WJ te Ede

Aan de rand van het bos, in de groene wijk De Gelderse Stadstuin, staat deze moderne en duurzame tussenwoning (bouwjaar 2024). De woning is uitgerust met een warmtepomp, 12 zonnepanelen en volledige vloerverwarming en beschikt daarmee over energielabel A+++. Instapklaar, comfortabel en helemaal klaar voor de toekomst.

De wijk is kindvriendelijk en biedt volop speelgelegenheden. Scholen en kinderopvang zijn dichtbij, en met het centrum en station Ede-Wageningen op loopafstand woon je hier rustig, maar toch heel centraal. Ook steden als Arnhem, Utrecht en Amsterdam zijn uitstekend bereikbaar met trein of auto.

Het World Food Center groeit uit tot een levendige, nieuwe wijk in Ede. Een unieke plek waar alles draait om voedsel, waar de natuur van de Veluwe naadloos overgaat in de stad en waar de rijke militaire geschiedenis duidelijk zichtbaar blijft. Eén van de buurten binnen dit gebied is De Gelderse Stadstuin, een groene, ontspannen woonomgeving met het bos letterlijk om de hoek.

Bouwjaar 2024, woonopp. circa 104 m², inhoud circa 356 en energielabel A+++.

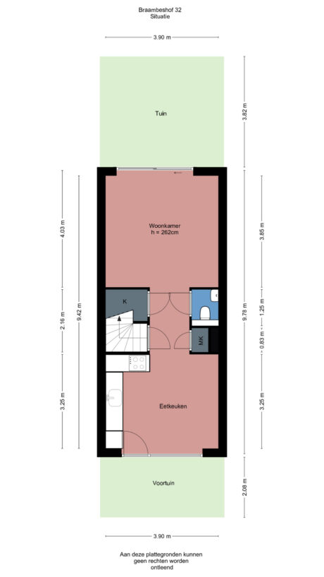
Indeling
Begane grond:
Bij binnenkomst stap je direct de lichte en zonnige leefkeuken in. De hoekopstelling heeft een frisse uitstraling en is voorzien van moderne inbouwapparatuur, waaronder inductiekookplaat, combi-oven, vaatwasser, koel-vriescombinatie en een Quooker. De keuken biedt ruimte voor een gezellige eethoek en staat in open verbinding met de woonkamer. De lichte vloer met vloerverwarming loopt door in de woonkamer en zorgt voor een ruimtelijk gevoel.

De woonkamer ligt aan de achterzijde (zuidwesten) en heeft een royale schuifpui naar de tuin. Dit zorgt voor veel licht en een prachtig zicht op het terras en het toekomstige voedselbos dat volgend jaar aangelegd gaat worden.

In het hart van de woning bevinden zich de trapopgang, de trapkast met praktische ingebouwde voorraadkast, de meterkast en een modern zwevend toilet met fonteintje.

Eerste verdieping:
Op de eerste verdieping bevinden zich twee ruime slaapkamers, beide met veel daglicht door de grote ramen. De slaapkamers zijn strak en verzorgd afgewerkt. De badkamer is modern en voorzien van een inloopdouche, zwevend toilet en wastafel.

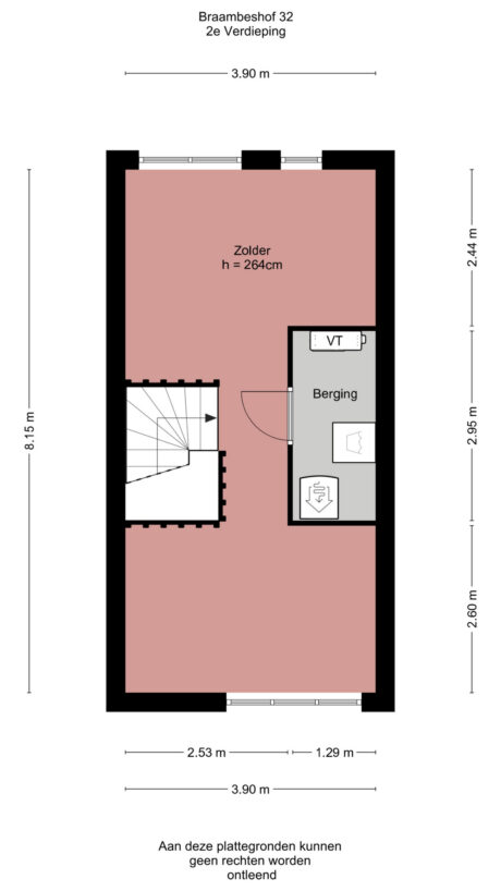
Tweede verdieping:
De tweede verdieping is een royale open ruimte die geheel naar eigen wens in te delen is als extra slaapkamer, een comfortabele werkkamer of hobbyruimte. Daarnaast beschikt deze verdieping over een royale inpandige berging, waar zich de warmtepomp, het boilervat, ventilatiesysteem met warmteterugwinning, de omvormer voor de 12 zonnepanelen en de aansluitingen voor wasapparatuur bevinden.

Exterieur:
De achtertuin met terras is onderhoudsvriendelijk en voorzien van een buitenkeuken, om zo in de zonnige maanden binnen en buiten echt met elkaar te verbinden. Daarnaast is er toegang tot de gezamenlijke binnentuin met moestuin en speelplekken. Een fijne plek om elkaar te ontmoeten. Bij de woning hoort een privé parkeerplaats en een berging in het naastgelegen gebouw. Ook is er een gezamenlijke overdekte fietsenstalling.

Bijzonderheden:
– Moderne, hoogwaardig afgewerkte woning, volledig instapklaar;
– Veel lichtinval door grote ramen en schuifpui en gunstige zonligging;
– Twee ruime slaapkamers, met mogelijkheid voor extra (slaap)kamers;
– Rustige ligging direct aan het Sysseltse Bos en nabij de Ginkelse Heide;
– Kindvriendelijke buurt met scholen, opvang en speelplekken in de omgeving;
– Op loopafstand van station Ede-Wageningen, het centrum en diverse voorzieningen;
– Gezamenlijke binnentuin met o.a. moestuin en ontmoetingsplek voor bewoners;
– Eigen parkeerplaats in de straat en berging in het naastgelegen gebouw (servicekosten €10,72 p/m);
– Voorzien van warmtepomp, zonnepanelen en vloerverwarming. Energielabel A+++, geldig tot 30-05-2034;
– Aanvaarding in overleg.

* Disclaimer
Deze informatie is door ons met de nodige zorgvuldigheid samengesteld. Onzerzijds wordt echter geen enkele aansprakelijkheid aanvaard voor enige onvolledigheid, onjuistheid of anderszins, dan wel de gevolgen daarvan. Alle opgegeven maten en oppervlakten zijn indicatief.

* Koperonderzoeksplicht
Barten Tiemessen NVM Makelaars B.V. heeft de opdracht tot verkoop van het onderhavige object. Hoewel gestreefd is naar een zo nauwkeurig mogelijke inventarisatie van de beschikbare gegevens, moet er van uitgegaan worden dat het bovenstaande slechts indicatief is. De gegevens (bedragen, jaartallen, omschrijvingen etc) zijn soms verkregen door mondelinge informatie, soms zijn ze vanuit het geheugen opgediept. De koper heeft zijn eigen onderzoeksplicht naar alle zaken die voor hem van belang zijn en kan zich nimmer beroepen op onbekendheid met feiten die hij zelf had kunnen waarnemen of die kenbaar waren uit de openbare registers. Desgewenst kan koper zich laten begeleiden door een adviseur of een bouwkundige bij de aankoop.

Kenmerken

  • Status Onder voorbehoud verkocht
  • Vraagprijs € 585.000,- k.k.
  • Aanvaarding In overleg

Bouwvorm

  • Bouwvorm Bestaande bouw
  • Bouwjaar 2024
  • Ligging In woonwijk

Indeling

  • Woonoppervlakte 104m2
  • Inhoud 356m3
  • Aantal kamers 4
  • Aantal woonlagen 3
  • Perceeloppervlakte 79m2

Energie

  • Energieklasse A ppp
  • Energie einddatum 05-30-2034
  • Isolatie Dakisolatie, muurisolatie, vloerisolatie, dubbel glas, volledig geisoleerd, hr glas
  • Warmwater Aardwarmte
  • Verwarming Vloerverwarming geheel, warmtepomp, warmte terugwininstallatie
  • Combiketel Nee

Buitenruimte

  • Tuin Achtertuin
  • Kwaliteit tuin Verzorgd

Parkeergelegenheid

  • Garage Geen garage

Brochure

close

Reageren op deze woning

Afspraak maken

    Braambeshof 32, Ede

    Geïnteresseerd geraakt?

    Wacht niet langer en plan direct een bezichtiging met ons in. U kunt ons tijdens kantooruren bereiken op 0317 - 422600 of stuur een e-mail naar info@barten- tiemessen.nl

    reageer op deze woning