Verkocht onder voorbehoud Wageningen

Bennekomseweg 150

€ 875.000,- k.k.

Omschrijving

Bennekomseweg 150 te Wageningen Een plek waar natuur en rust samenkomen. Op een van de mooiste locaties van Wageningen, aan de groene en karakteristieke Bennekomseweg, ligt deze fantastische TWEE-ONDER-EEN-KAP-WONING. Deze mooie woning heeft een perfecte balans tussen wonen en de natuur. Deze unieke plek is rijk aan statige bomen, sfeervolle...

lees verder

Kenmerken

  • Status Onder voorbehoud verkocht
  • Vraagprijs € 875.000,- k.k.
  • Bouwjaar 1925
  • Woonoppervlakte 146m²
  • Aantal kamers 6
Meer kenmerken

Omschrijving

Bennekomseweg 150 te Wageningen

Een plek waar natuur en rust samenkomen.

Op een van de mooiste locaties van Wageningen, aan de groene en karakteristieke Bennekomseweg, ligt deze fantastische TWEE-ONDER-EEN-KAP-WONING.

Deze mooie woning heeft een perfecte balans tussen wonen en de natuur.
Deze unieke plek is rijk aan statige bomen, sfeervolle lanen en mooie landelijke omgeving.
Of je nu houdt van wandelen, fietsen of gewoon genieten van het uitzicht: dit is een plek die elke dag weer inspireert.

Vanuit huis wandel je zo het prachtige bosrijke wandelgebied in maar ook de Wageningse Eng ligt op korte afstand.
Tegelijkertijd ben je binnen enkele minuten in het gezellige centrum van Wageningen maar ook in de dorpskern van Bennekom met een groot aanbod aan winkels.

Deze twee-onder-een-kap-woning heeft een karakteristieke uitstraling en komt uit het bouwjaar 1925 en is
gelegen op een royaal perceel van 825 m² met een achtertuin van maar liefst (ca) 58 meter diepte.
Er zijn diverse houten bergingen aanwezig. Aan de voorzijde is er voldoende parkeergelegenheid op eigen terrein en de auto kan droog staan onder de carport.

Bouwjaar: 1925, perceel oppervlakte: 825 m2, woonoppervlakte: circa 146 m2, inhoud: circa 603 m3.

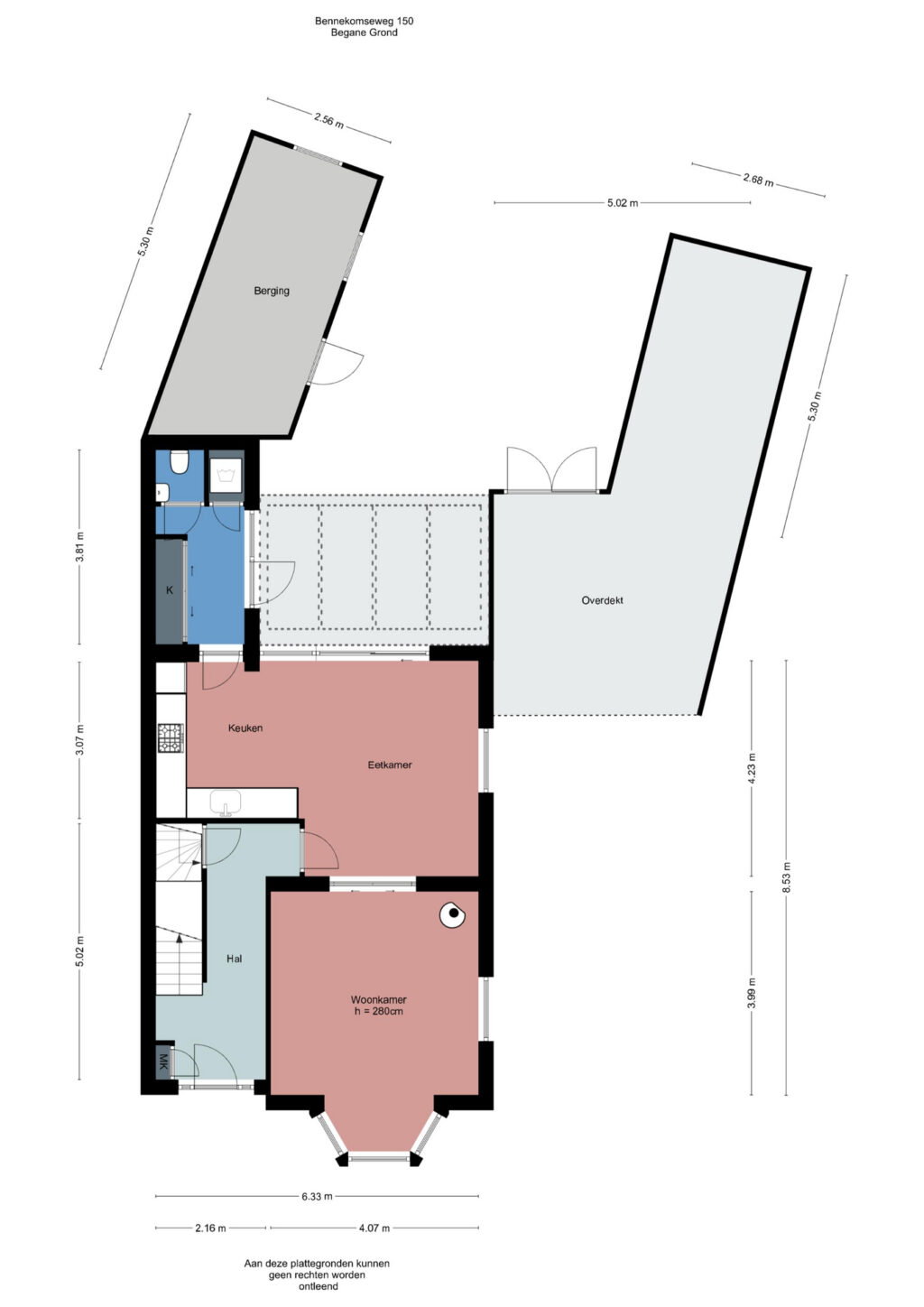
Indeling:
Begane grond: entree, hal met glas-in-lood ramen, trapopgang naar de 1e verdieping, ruime kelder (op stahoogte).
Vanuit de hal toegang tot de sfeervolle kamer-en-suite met glas-in-lood schuifdeuren. Aan de voorzijde is de woonkamer gelegen die voorzien is van een gezellige erker en de kamer heeft diverse glas-in-lood ramen.

De achterkamer is ingericht als royale woonkeuken. De grote schuifpui geeft niet alleen toegang tot de achtertuin met overkapping maar zorgt ook nog eens voor veel lichtinval. Ook is er een sfeervolle glas-in-lood raam aanwezig.
De keukenopstelling is L-vormig en voorzien van inbouwapparatuur, te weten: een 4 pits gaskookplaat, combi-oven, vaatwasser, koelkast en een RVS afzuigkap. Vanuit de keuken toegang tot de bijkeuken voorzien van vloerverwarming, schuifdeurkast, een separate bergkast met aansluiting voor wasapparatuur en een modern toilet met fontein. Via de bijkeuken is ook de achtertuin te bereiken.

Het terras aan de achterzijde is uitgerust met een overkapping. De perfecte plek om te genieten van de tuin, de rust of samen door te brengen met familie of bezoek.

1e verdieping: overloop, totaal drie ruime slaapkamers met elk een eigen wastafel. Eén slaapkamer aan de achterzijde is voorzien van een balkon. Moderne badkamer met een ligbad, inloopdouche, wastafelmeubel en een tweede toilet.

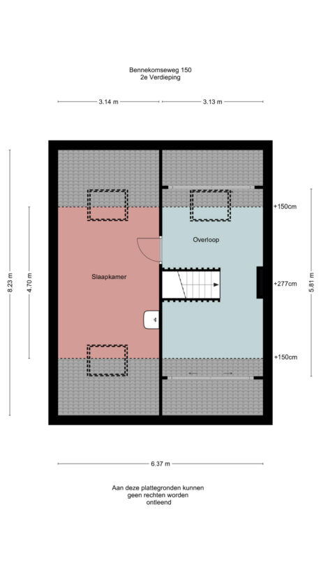
2e verdieping: overloop/voorzolder met een dakraam en diverse opbergruimte achter schuifdeuren, royale vierde slaapkamer met aan weerzijde een dakraam en een wastafel.

Bijzonderheden:
– Gelegen op een droomplek!
– Fantastische omgeving; bosrijk, landelijk en toch ook dichtbij het centrum;
– Royaal perceel van 825 m2;
– Diepe achtertuin van circa 58 meter diepte;
– Diverse houten schuren/berging;
– Openbaar parkeren alsmede parkeergelegenheid op eigen terrein voor meerdere auto’s;
– Volledig dubbel glas HR++, dakisolatie en muurisolatie;
– Alle pannen van het woonhuis zijn in 2020 vernieuwd;
– Verwarming via een C.V.-combiketel, Remeha, bouwjaar 2022;
– De bijkeuken met toiletruimte en waskast zijn voorzien van vloerverwarming;
– 13 stuks zonnepanelen;
– Zolderverdieping heeft meerdere dakramen;
– Aanvaarding in overleg.

* Disclaimer
Deze informatie is door ons met de nodige zorgvuldigheid samengesteld. Onzerzijds wordt echter geen enkele aansprakelijkheid aanvaard voor enige onvolledigheid, onjuistheid of anderszins, dan wel de gevolgen daarvan. Alle opgegeven maten en oppervlakten zijn indicatief.

* Koperonderzoeksplicht
Barten Tiemessen NVM Makelaars B.V. heeft de opdracht tot verkoop van het onderhavige object. Hoewel gestreefd is naar een zo nauwkeurig mogelijke inventarisatie van de beschikbare gegevens, moet er van uitgegaan worden dat het bovenstaande slechts indicatief is. De gegevens (bedragen, jaartallen, omschrijvingen etc.) zijn soms verkregen door mondelinge informatie, soms zijn ze vanuit het geheugen opgediept. De koper heeft zijn eigen onderzoeksplicht naar alle zaken die voor hem van belang zijn en kan zich nimmer beroepen op onbekendheid met feiten die hij zelf had kunnen waarnemen of die kenbaar waren uit de openbare registers. Desgewenst kan koper zich laten begeleiden door een adviseur of een bouwkundige bij de aankoop.

Kenmerken

  • Status Onder voorbehoud verkocht
  • Vraagprijs € 875.000,- k.k.
  • Aanvaarding In overleg

Bouwvorm

  • Bouwvorm Bestaande bouw
  • Bouwjaar 1925
  • Ligging Aan rustige weg, in woonwijk, in bosrijke omgeving, landelijk gelegen

Indeling

  • Woonoppervlakte 146m2
  • Inhoud 603m3
  • Aantal kamers 6
  • Aantal woonlagen 4
  • Perceeloppervlakte 825m2

Energie

  • Energieklasse C
  • Energie einddatum 09-24-2035
  • Isolatie Dakisolatie, muurisolatie, dubbel glas
  • Warmwater Cv ketel
  • Verwarming Cv ketel, vloerverwarming gedeeltelijk
  • Bouwjaar C.V.-Ketel 2022
  • Combiketel Ja
  • Brandstof Gas
  • Eigendom Eigendom

Buitenruimte

  • Tuin Achtertuin, voortuin, zijtuin
  • Hoofdtuin Achtertuin
  • Oppervlakte hoofdtuin 580m2 (58.0m bij 10.0m)
  • Ligging hoofdtuin Oost
  • Kwaliteit tuin Verzorgd

Parkeergelegenheid

  • Garage Geen garage

Brochure

close

Reageren op deze woning

Afspraak maken

    Bennekomseweg 150, Wageningen

    Geïnteresseerd geraakt?

    Wacht niet langer en plan direct een bezichtiging met ons in. U kunt ons tijdens kantooruren bereiken op 0317 - 422600 of stuur een e-mail naar info@barten- tiemessen.nl

    reageer op deze woning