Verkocht Wageningen

Jan J. de Goedestraat 2

€ 899.500,- k.k.

Omschrijving

Jan J. de Goedestraat 2 te Wageningen Duurzaam wonen in Wageningen. Een mooi & royale energiezuinige woning met een bodem warmtepomp en uitstekende isolatie. Energielabel A+++. Royale, aan de achterzijde uitgebouwde, VRIJSTAANDE WONING met aangebouwde stenen GARAGE is gelegen in de wijk "Nieuw Kortenoord" met vrij uitzicht op een plantsoen...

lees verder

Kenmerken

  • Status Verkocht
  • Vraagprijs € 899.500,- k.k.
  • Bouwjaar 2012
  • Woonoppervlakte 193m²
  • Aantal kamers 7
Meer kenmerken

Omschrijving

Jan J. de Goedestraat 2 te Wageningen

Duurzaam wonen in Wageningen.
Een mooi & royale energiezuinige woning met een bodem warmtepomp en uitstekende isolatie. Energielabel A+++.

Royale, aan de achterzijde uitgebouwde, VRIJSTAANDE WONING met aangebouwde stenen GARAGE is gelegen in de wijk “Nieuw Kortenoord” met vrij uitzicht op een plantsoen aan de voorzijde.

De ruime, vrijstaande woning heeft een gezellige woonkeuken aan de voorzijde. Aan de achterzijde is de woonkamer gesitueerd voorzien van dubbele openslaande terrasdeuren naar de tuin. Op de verdieping zijn drie ruime slaapkamers, een luxe badkamer en separaat toilet aanwezig. De tweede verdieping bestaat uit een ruime overloop, twee slaapkamers en berging. Alle ruimtes hebben een heel prettige lichtinval door de grote ramen, dit in combinatie met de hoge plafonds zorgen voor een ruimtelijk effect.

Bouwjaar: 2012, woonoppervlakte: circa 193 m², inhoud: circa 736 m³, perceeloppervlakte: 315 m².

In de nabije omgeving van de woning vindt u kinderspeelplaatsen, scholen en sportaccommodaties.
De woonwijk Kortenoord is groen en ruim opgezet, zeer kind- en fietsvriendelijk en je bent zo in de binnenstad van Wageningen. Vanuit deze woning stap je zo het prachtige stiltegebied in met zijn schat aan flora en fauna.

Duurzaam wonen met vloerverwarming & vloerverkoeling
Alle woningen in Kortenoord zijn voorzien van een energiezuinig verwarmingssysteem (bodem warmtepomp) door middel van warmte en koudeopslag in de bodem.
Dat betekent standaard overal vloerverwarming en lage stookkosten.
Het moderne systeem voorziet in zowel warmte als koeling. Zo heb je in de zomerperiode ‘gratis’ koeling.
Je geniet het hele jaar door van maximaal wooncomfort en draagt een steentje bij aan een beter milieu zonder dat je daar verder iets aan hoeft te doen.

Nieuw Kortenoord ‘een familie van huizen’
Door de verschillende erkers, daken, raampartijen en kleurstellingen is er een familie van huizen ontstaan met elk een eigen identiteit.
Het straatbeeld is zeer gevarieerd en het heeft de sfeer van een dorp.
De brede lanen met grote bomen geven Mozaïekpark een koninklijke binnenkomst.
Het is een statige en toch speelse buurt geworden met veel groen.

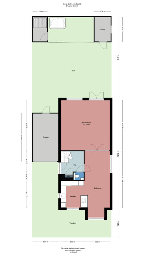
Indeling:
Begane grond: overdekte entree, hal met provisie-/trapkast, meterkast en toiletruimte voorzien van zwevend toilet en fonteintje. Een moderne zwart stalen schuifdeur geeft toegang tot de royale living met aan de achterzijde de heerlijk lichte woonkamer met dubbele openslaande deuren naar het terras en de achtertuin. Aan de voorzijde is de sfeervolle woonkeuken gesitueerd met een in hoogglans wit uitgevoerd kookeiland en keukenopstelling. De keuken is voorzien van diverse inbouwapparatuur, te weten een koel-/vriescombinatie, vaatwasser, combi-oven en inductiekookplaat met afzuigkap.

Eerste verdieping: ruime overloop met toiletruimte voorzien van zwevend toilet, ruime ouderslaapkamer gesitueerd aan de voorzijde van de woning. Twee slaapkamers aan de achterzijde. De luxe badkamer beschikt over een ligbad, dubbele vaste wastafel met meubel en ruime inloopdouche.

Tweede verdieping: ruime overloop met de aansluitingen voor de wasapparatuur, de warmtepompinstallatie en mechanische ventilatie unit. Een separate berging en twee slaapkamers.

De verzorgde tuin is voorzien van een terras, fijn gazon, beplanting en een gezellige terrasoverkapping met jacuzzi en sauna. De garage is vanuit de tuin bereikbaar via een enkele deur, vanaf de oprit is de garage toegankelijk via een elektrische garagedeur.

Bijzonderheden:
– Ruime en heerlijk lichte uitgebouwde vrijstaande woning;
– Gezellige woonkeuken met kookeiland;
– Royale woonkamer met dubbele openslaande tuindeuren naar de achtertuin;
– Verzorgd aangelegde tuin met sfeervolle terrasoverkapping;
– De gehele woning is voorzien van vloerverwarming;
– Garage naast de woning en oprit met ruimte voor het parkeren van meerdere auto’s.

Aanvaarding in overleg

* Disclaimer
Deze informatie is door ons met de nodige zorgvuldigheid samengesteld. Onzerzijds wordt echter geen enkele aansprakelijkheid aanvaard voor enige onvolledigheid, onjuistheid of anderszins, dan wel de gevolgen daarvan. Alle opgegeven maten en oppervlakten zijn indicatief.

* Koperonderzoeksplicht
Barten Tiemessen NVM Makelaars B.V. heeft de opdracht tot verkoop van het onderhavige object. Hoewel gestreefd is naar een zo nauwkeurig mogelijke inventarisatie van de beschikbare gegevens, moet er van uitgegaan worden dat het bovenstaande slechts indicatief is. De gegevens (bedragen, jaartallen, omschrijvingen etc) zijn soms verkregen door mondelinge informatie, soms zijn ze vanuit het geheugen opgediept. De koper heeft zijn eigen onderzoeksplicht naar alle zaken die voor hem van belang zijn en kan zich nimmer beroepen op onbekendheid met feiten die hij zelf had kunnen waarnemen of die kenbaar waren uit de openbare registers. Desgewenst kan koper zich laten begeleiden door een adviseur of een bouwkundige bij de aankoop.

Kenmerken

  • Status Verkocht
  • Vraagprijs € 899.500,- k.k.
  • Aanvaarding In overleg

Bouwvorm

  • Bouwvorm Bestaande bouw
  • Bouwjaar 2012
  • Ligging In woonwijk, vrij uitzicht

Indeling

  • Woonoppervlakte 193m2
  • Inhoud 736m3
  • Aantal kamers 7
  • Aantal woonlagen 3
  • Perceeloppervlakte 315m2

Energie

  • Energieklasse A ppp
  • Energie einddatum 02-28-2035
  • Isolatie Volledig geisoleerd
  • Warmwater Centrale voorziening, aardwarmte
  • Verwarming Vloerverwarming geheel, warmtepomp, aardwarmte
  • Combiketel Nee

Buitenruimte

  • Tuin Achtertuin, voortuin, zijtuin
  • Hoofdtuin Achtertuin
  • Oppervlakte hoofdtuin 120m2 (10.0m bij 12.0m)
  • Ligging hoofdtuin Noordwest
  • Kwaliteit tuin Fraai aangelegd

Parkeergelegenheid

  • Garage Aangebouwd steen
  • Parkeerfaciliteiten Elektra, water

Brochure

close

Reageren op deze woning

Afspraak maken

    Jan J. de Goedestraat 2, Wageningen

    Geïnteresseerd geraakt?

    Wacht niet langer en plan direct een bezichtiging met ons in. U kunt ons tijdens kantooruren bereiken op 0317 - 422600 of stuur een e-mail naar info@barten- tiemessen.nl

    reageer op deze woning