Verkocht Renkum

Meester van Damweg 12

€ 415.000,- k.k.

Omschrijving

Meester van Damweg 12, 6871 HN Renkum Op een centrale en kindvriendelijke locatie in Renkum ligt deze ruime en goed onderhouden tussenwoning aan de Meester van Damweg 12. De woning biedt volop leefruimte, met onder andere vier slaapkamers en een prettige achtertuin. De ligging is ideaal: op korte loopafstand bevinden...

lees verder

Kenmerken

  • Status Verkocht
  • Vraagprijs € 415.000,- k.k.
  • Bouwjaar 1972
  • Woonoppervlakte 123m²
  • Aantal kamers 5
Meer kenmerken

Omschrijving

Meester van Damweg 12, 6871 HN Renkum

Op een centrale en kindvriendelijke locatie in Renkum ligt deze ruime en goed onderhouden tussenwoning aan de Meester van Damweg 12. De woning biedt volop leefruimte, met onder andere vier slaapkamers en een prettige achtertuin.

De ligging is ideaal: op korte loopafstand bevinden zich diverse scholen, sportvoorzieningen (waaronder een zwembad) en openbaar vervoer. Ook voor natuurliefhebbers zijn er veel mogelijkheden: het bos, de uiterwaarden en natuurgebied Het Beekdal liggen op wandelafstand.

Bouwjaar: 1972, perceeloppervlakte 129 m², netto woonoppervlakte circa 123 m², inhoud circa 399 m³ en energielabel B.

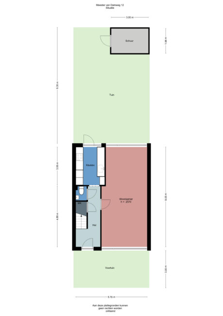
Indeling:
Begane grond:
Bij binnenkomst in de entreehal tref je een aparte toiletruimte en de trap naar de eerste verdieping. De lichte, ruime woonkamer is tevens vanuit de hal bereikbaar en wordt gekenmerkt door twee grote ramen die zorgen voor natuurlijk licht. Een fijne leefruimte waar comfort en sfeer samenkomen. De moderne keuken ligt aan de achterzijde van de woning en is voorzien van diverse inbouwapparatuur, waaronder een kookplaat, afzuigkap, combi-oven/magnetron, koel-vriescombinatie, vaatwasser én een Quooker. Vanuit de keuken is er directe toegang tot de tuin.

Eerste verdieping:
Via de trap in de hal kom je op de overloop van de eerste verdieping. Hier bevinden zich drie comfortabele slaapkamers, elk met een eigen formaat en karakter. Dit biedt volop mogelijkheden voor het inrichten van bijvoorbeeld een hoofdslaapkamer, kinderkamer, werkkamer of logeerkamer. Dankzij de grote ramen zijn de kamers heerlijk licht en voelen ze ruim aan. De nette vloerbedekking op de overloop loopt door in alle slaapkamers.

Op deze verdieping vind je bovendien een tweede, separate toiletruimte. De badkamer is praktisch ingericht met een modern wastafelmeubel met opbergruimte en een inloopdouche met een glazen wand, wat bijdraagt aan een open sfeer.

Tweede verdieping:
De woning beschikt over een volwaardige zolderverdieping, bereikbaar via een vaste trap. Hier tref je een vierde slaapkamer. Hier bevindt zich een ruime vierde slaapkamer, die dankzij het dakraam natuurlijk daglicht binnenlaat. Daarnaast is er op deze verdieping een apart washok aanwezig, voorzien van een aansluiting voor de wasmachine en voldoende ruimte voor het opbergen van wasmiddelen en huishoudelijke spullen. Ook is er op de overloop een vaste kast te vinden, wat zorgt voor extra bergruimte.

Tuin:
Deze woning beschikt over een ruime tuin met een lichte ophoging, ideaal voor het creëren van verschillende zitgedeeltes. Dankzij de royale afmetingen is er meer dan genoeg plek voor een comfortabele loungehoek, speelruimte of een tuinset om in de zon te genieten. Achterin de tuin bevindt zich een praktische stenen berging, perfect voor het opbergen van fietsen, tuingereedschap of extra opslag

Bijzonderheden:
– Voorzien van zonnepanelen;
– Energielabel B, geldig tot 23-05-2035;
– Moderne keuken met diverse inbouwapparatuur en Quooker;
– Ruime tussenwoning met 4 slaapkamers;
– Gelegen in een rustige, kindvriendelijke wijk met scholen, sportvoorzieningen en natuur op loopafstand;
– Bouwjaar 1972;
– Achtertuin met verhoogd terras en stenen schuur.

DISCLAIMER:
* Deze informatie is door ons met de nodige zorgvuldigheid samengesteld. Onzerzijds wordt echter geen enkele aansprakelijkheid aanvaard voor enige onvolledigheid, onjuistheid of anderszins, dan wel de gevolgen daarvan. Alle opgegeven maten en oppervlakten zijn indicatief.

* Barten Tiemessen NVM Makelaars B.V. heeft de opdracht tot verkoop van het onderhavige object. Hoewel gestreefd is naar een zo nauwkeurig mogelijke inventarisatie van de beschikbare gegevens, moet er van uitgegaan worden dat het bovenstaande slechts indicatief is. De gegevens (bedragen, jaartallen, omschrijvingen etc) zijn soms verkregen door mondelinge informatie, soms zijn ze vanuit het geheugen opgediept. De koper heeft zijn eigen onderzoeksplicht naar alle zaken die voor hem van belang zijn en kan zich nimmer beroepen op onbekendheid met feiten die hij zelf had kunnen waarnemen of die kenbaar waren uit de openbare registers. Desgewenst kan koper zich laten begeleiden door een adviseur of een bouwkundige bij de aankoop.

Kenmerken

  • Status Verkocht
  • Vraagprijs € 415.000,- k.k.
  • Aanvaarding In overleg

Bouwvorm

  • Bouwvorm Bestaande bouw
  • Bouwjaar 1972
  • Ligging Aan rustige weg, in woonwijk

Indeling

  • Woonoppervlakte 123m2
  • Inhoud 399m3
  • Aantal kamers 5
  • Aantal woonlagen 3
  • Perceeloppervlakte 129m2

Energie

  • Energieklasse B
  • Energie einddatum 05-23-2035
  • Isolatie Dakisolatie, dubbel glas
  • Warmwater Cv ketel
  • Verwarming Cv ketel
  • Combiketel Nee

Buitenruimte

  • Tuin Achtertuin, voortuin

Parkeergelegenheid

  • Garage Geen garage

Brochure

close

Reageren op deze woning

Afspraak maken

    Meester van Damweg 12, Renkum

    Geïnteresseerd geraakt?

    Wacht niet langer en plan direct een bezichtiging met ons in. U kunt ons tijdens kantooruren bereiken op 0317 - 422600 of stuur een e-mail naar info@barten- tiemessen.nl

    reageer op deze woning